绿地西站A户型样板间
426
作品说明
- 项目类型:地产
- 项目地点:重庆市
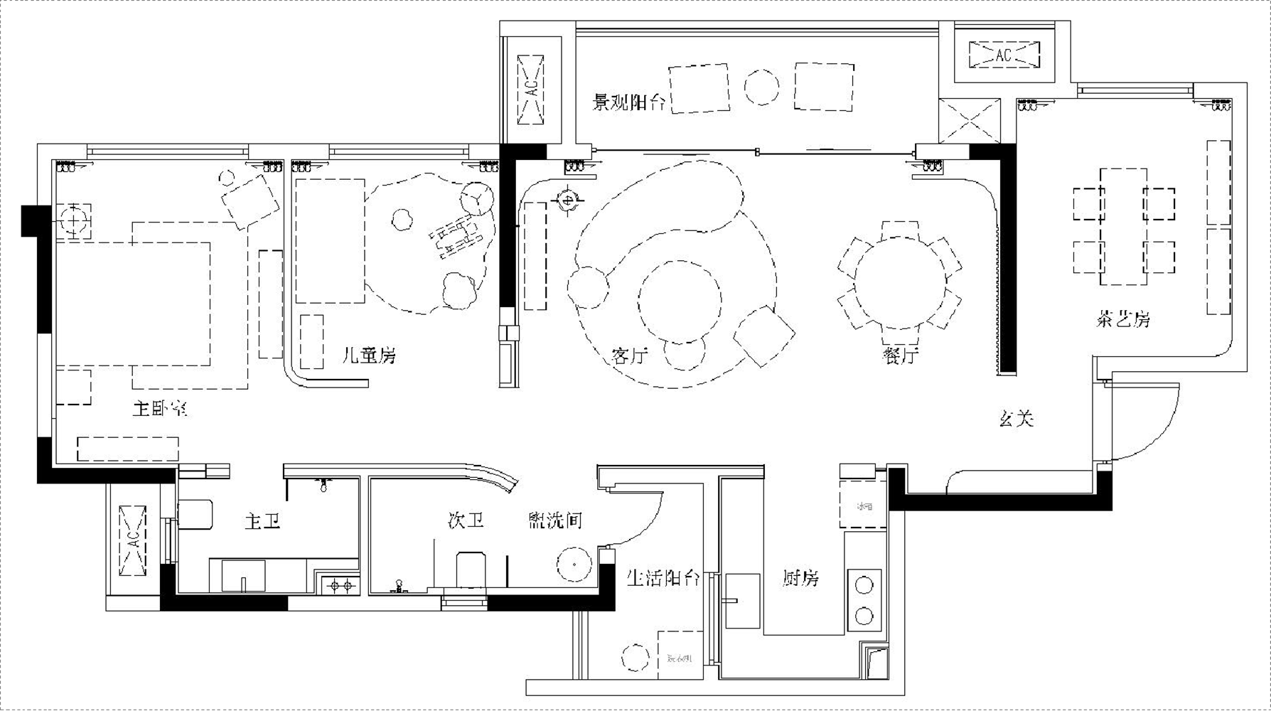
- 建筑面积:85㎡
- 项目造价:28万元
- 参与设计师:庞一飞 张婧 万霞 刘昕晨 刘春燕
- 竣工时间:2021-03-20
- 设计机构:品辰设计
-
项目定位:本案由古驰发布《无边序曲》时装系列为灵感,窥视生活和幻想,以及私人时光。一窥生命中各种令人振奋的奇迹之窗,串联起无形与有形,串联起微不足道的事物带来的悸动 ,形成生命中的悸动不可预期。
“自然”也是空间的主题,贯穿整个场景的核心,客厅,乌克兰设计师品牌NOOM天鹅绒面料沙发椅自然的清新之绿与木色基调相结合,再加入的现代元素,就如同跳圆舞曲一样律动欢快,在自由的家居空间享受美好生活。自然的赠予省却了繁复的人为设计,这些无法人为刻画的东西成为空间最具魅力的所在。
-
空间意境:素雅、平淡的春色中,回归生活的诗意本真,界面视觉关系的材质与配色层次完美匹配,将空间的重心转向与外部景色的交互之中。借助户型优势,设计师尽可能地利用并形成引导,规划了整个空间的动线走向、功能分布及材质关系。
将空间“观”、“赏”的动作放大到极致,由阳台造景的有意引导,让人将视线聚焦于窗外无尽舒朗的景致中。餐厅相邻阳台的推拉门可全部打开,解锁新的空间界面来满足不同用餐方式。一个理想的早晨,一杯咖啡,一本杂志,如此简单。或者忙碌了一天后的夜深时刻,和家人一起坐下来,在音乐声中品味一杯红酒的温暖场所。 -
空间布局:将空间“观”、“赏”的动作放大到极致,由阳台造景的有意引导,让人将视线聚焦于窗外无尽舒朗的景致中。餐厅相邻阳台的推拉门可全部打开,解锁新的空间界面来满足不同用餐方式。一个理想的早晨,一杯咖啡,一本杂志,如此简单。或者忙碌了一天后的夜深时刻,和家人一起坐下来,在音乐声中品味一杯红酒的温暖场所。
-
设计选材:主卧舒适大床背板采用棉麻软包,融现代化的生活方式与艺术的生活气息于一室,给人一种简单优雅的感觉,在视觉上,这是一种自然的、精心设计的美学。从生活为出发点,精致典雅与简约实用的平衡,成为居住生活的最佳状态。
为营造自由、灵动的成长空间,不限制儿童的活动和想象力,以丛林冒险为主题,可爱的儿童床与玩偶来丰富空间的艺术性与趣味性,落地式月亮阅收纳柜,一切都尽可能地靠近儿童身份特征与天性。
软装饰品在延续空间体系的同时。赋予空间一些经典现代主义的人文情怀,让现代化的生活方式与艺术的生活气息得以兼顾,经典且温馨舒适的内核则通过各个细节展现,满足我们与生俱来的奇妙与无边无际的感知力! -
用户体验:将空间“观”、“赏”的动作放大到极致,由阳台造景的有意引导,让人将视线聚焦于窗外无尽舒朗的景致中。餐厅相邻阳台的推拉门可全部打开,解锁新的空间界面来满足不同用餐方式。一个理想的早晨,一杯咖啡,一本杂志,如此简单。或者忙碌了一天后的夜深时刻,和家人一起坐下来,在音乐声中品味一杯红酒的温暖场所。
这里还陈列着主人爱好的抽象艺术画作,调皮的小猫、连续的水平线条理性而优雅,具有强烈的秩序感。入户右边的茶室,充满了仪式感,透明的置物架在阳光下散发着熠熠的小光芒,那些看似平凡寻常的小器物摆放在一起,给观看者提供了唤醒给予世界另种解释可能性的机会。同时,空间又可根据使用者,功能变化,可以是直播工作间,客房,书房,花房等等承载生活。
0
0

认证 · 让您身份增值