以自由之心,重塑对生活的渴望


- 项目类型:酒店
- 项目地点:重庆市
- 建筑面积:400.0000㎡
- 项目造价:80.0000万元
- 参与设计师:无
- 竣工时间:2020-05-01
- 设计机构:重庆江北赫森软装设计机构
-
项目定位:喧嚣都市,自有安心之所。我们对于时下的发展自顾不暇,当面对空间的空白与信任时,我们摒弃陈旧的枷锁,排除一切束缚,将成长与生活重新解构。这是对现代生活的包容,亦是对未来生活的塑造。生活在同一个维度中,丰富的细节层次让人感受到由内而外迸发出的空间律动。借由灰与白的墙面将整体基调立体起来,以黑色落地灯为视觉载体,与墙面艺术画保持了相应的局部统一。不拘泥于一格的湖蓝色沙发椅是屋主对艺术形态的渴求,在沉稳中传达出理性的时髦气质。
-
空间意境:如今,家居设计充斥了太多同质化的陈设摆件,因此,一个有“家”味的空间是我们所渴求的。入户玄关,往往是为整个空间带去主题的通道,不拘泥于传统的换鞋凳破除了常规化的定制,让空间在无限可能下去探寻更多的变化。
-
空间布局:有着抽象艺术般的异形玄关桌很好的契合了现代风格的审美,与艺术圆形壁灯相呼应,是超越时空的和谐共生。而水墨丹青的极简一笔,将神秘的东方韵味扩展开来,这是表达自我的全新方式。
-
设计选材:一个有灵魂的空间,往往可以从细节处看到户主的思考。打破以往的循规蹈矩,在玄关柜的造型设计中融合了夫妻两人的姓氏字母,瞬间契合了“家”这个温暖又独一无二的字,带着情绪的起承转合去记录着简单的生活点滴。
-
用户体验:自由,从古至今都是人们所追求的,在此,我们以家为基石,重塑对自由的向往与人格的独立,将风格打碎,去寻求原始欲望对家的期许。
时间之外,内心之中。诗意的情愫随着光的裹挟在敞开的窗沿折射而入,黑暗的空间瞬间充满了鲜活的气息。纯粹的绿,荡涤出神圣的生命与高雅的气质,天然纹理的石灰墙,有着褪去的原始野性。这些被阳光叫醒的细节充斥着无边的蓬勃与生机。
微风掀起窗帘的一角,随之而来的轻音乐随着客厅蔓延而至,摇晃着手中的红酒,头脑微醺,当生活给予了我们太多的压力,在此刻感受到的自由与惬意是那么的珍贵与充盈。
有时,古与今的联动皆是设计突发的灵感。木质雕刻出的荷叶墙饰贴合了屋主的喜好,表面处理成年轮形状的丰富纹理,通过艺术化的转变让自然之美呈现出来,中间经由设计师原创的DIY的白色贝母弱化了深色的墙面背景,从而营造出灵动的空间起伏。
打破以往的循规蹈矩,在玄关柜的造型设计中融合了夫妻两人的姓氏字母,瞬间契合了“家”这个温暖又独一无二的字,带着情绪的起承转合去记录着简单的生活点滴。
散落在大理石岛台的灯光折射入杯中,为空间带去一抹闲散的安宁。
有仪式感的用餐是我们赋予餐厅独有的意义,用色大胆的黄铜吊灯在黑白灰的空间中凸显出轻松的细节维度,抽象的人像画恰如其分的表现出时代的张力,极具现代感餐桌布椅的配搭,营造出永不过时的都市美学。这样的空间氛围满足日常用餐的同时还能在闲暇时找上三五好友谈笑风生。
不拘泥于一格的湖蓝色沙发椅是屋主对艺术形态的渴求,在沉稳中传达出理性的时髦气质。
入户玄关,往往是为整个空间带去主题的通道,不拘泥于传统的换鞋凳破除了常规化的定制,让空间在无限可能下去探寻更多的变化。
有着抽象艺术般的异形玄关桌很好的契合了现代风格的审美,与艺术圆形壁灯相呼应,是超越时空的和谐共生。而水墨丹青的极简一笔,将神秘的东方韵味扩展开来,这是表达自我的全新方式。
我们在屋内,追求感官的体验与对自然的敬畏。以此在石与木的原始材质基础上,将纹理揉碎重组,给予了此地独处与静谧的空间,月色之下,带去了私密与温暖,留驻了时光岁月。
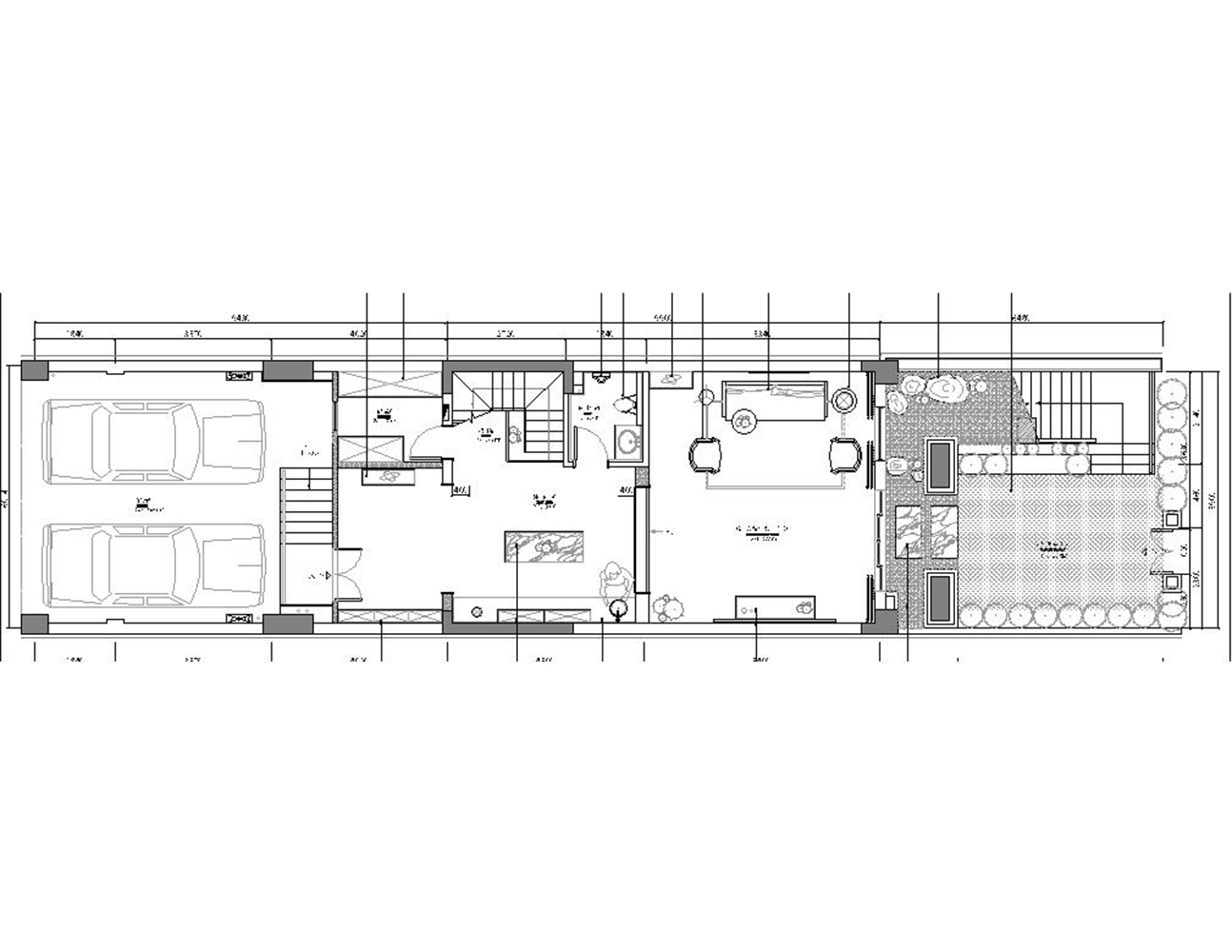
负一楼
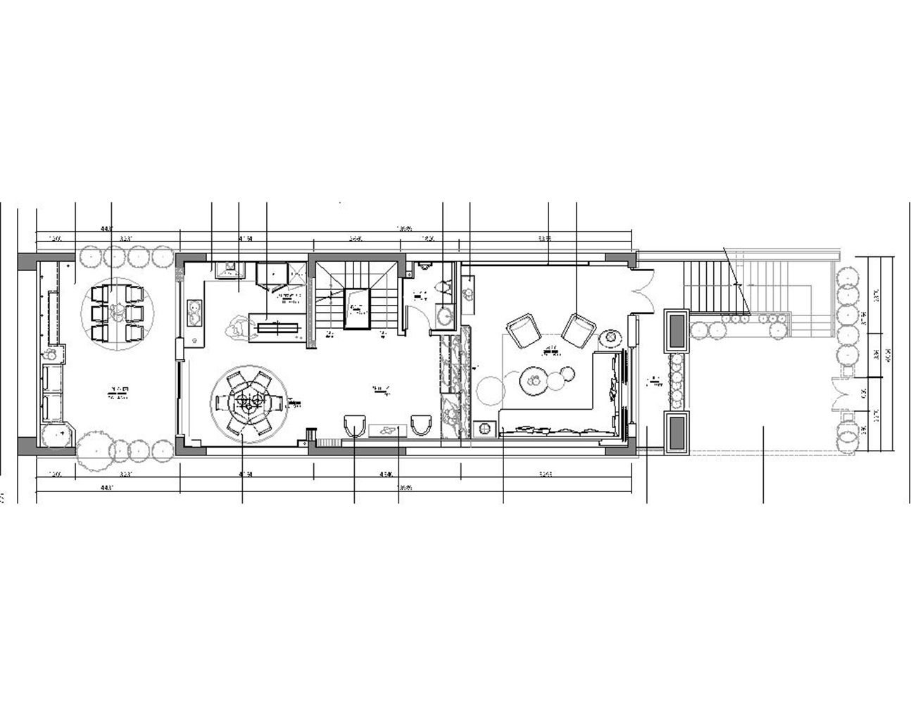
一楼
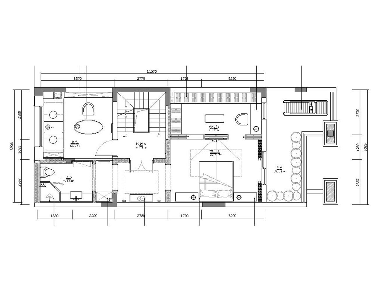
二楼
三楼

