流金岁月 奢雅精致的梦


作品说明
- 项目类型:私宅
- 项目地点:重庆市
- 建筑面积:1300.0000㎡
- 项目造价:3000000.0000万元
- 参与设计师:王九九
- 竣工时间:2021-07-15
- 设计机构:江北区赫森软装设计工作室
-
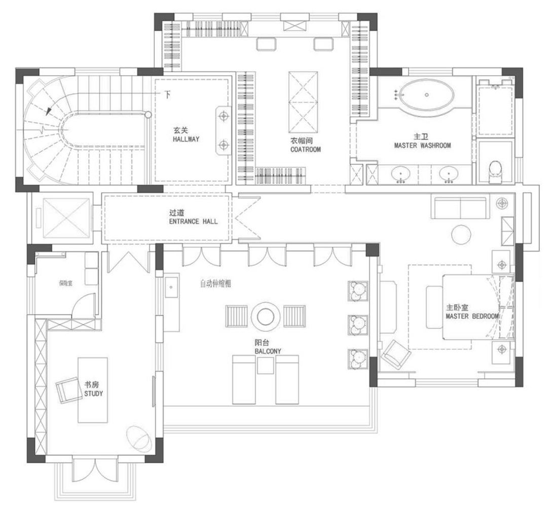
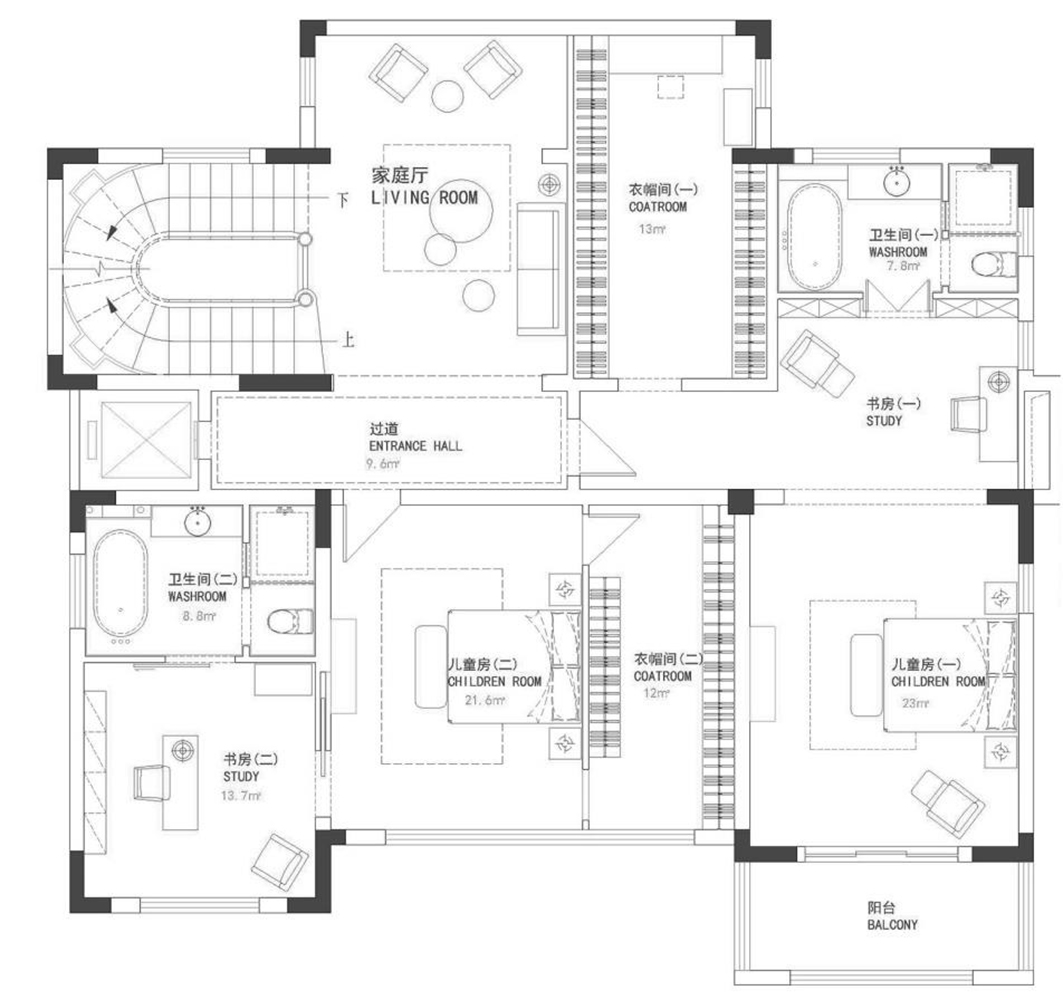
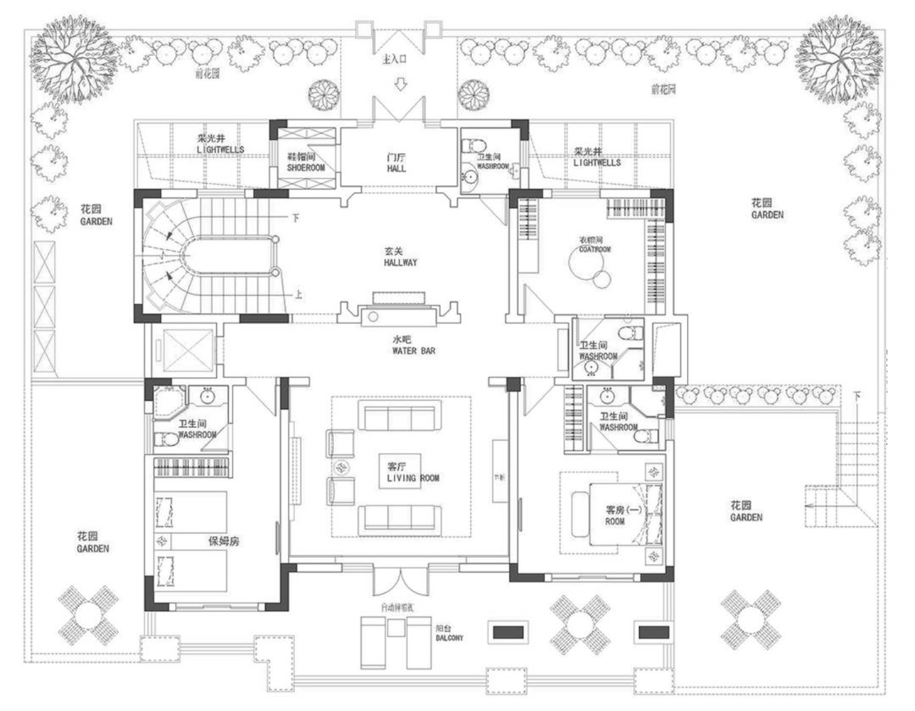
项目定位:所有的设计离不开人与环境的相辅相成,当想象最大限度的纳入空间,伴随门厅处的镂空隔断,阳光如约而至。遵循简奢的原则,我们以灰度作为设计基调,放弃传统式的摆放,透过圆弧形沙发混合木槿紫单人沙发,在流畅的空间中晕开动人的旋律。
-
空间意境:设计在简单纯粹中,找寻人文艺术与美学功能的二者平衡。从门厅进入,延展的同色系环境给予的宁静让人的视线感官在某处停驻,流线性的空间轮廓造就出精致的审美比例。
-
空间布局:风格的调性与色彩的搭配成为屋主重要的社交需求。大理石餐桌打磨成两种形状属性,以贴合不同的待客场景。当完美的轮廓结合顶级的工艺,细节处彰显出客户低调奢雅的生活品味。
-
设计选材:手绘的艺术台面,简练的线条、细腻的做工、独特的手绘图案都在陈述着Rugiano的品牌哲学——贵族文化。
所用手绘面主要吸取了意大利文艺复兴时期名画的元素,同时又赋予新的表现手法,尤其突出地表现在用著名画作的灵感来处理台面,把画中的色调、图形等抽象元素移植到家具装饰上,形成了意大利文艺复兴式家具的风格。 -
用户体验:华侨城业主感受:
我们已经入住3年,越来越喜爱我的家,越来越喜欢高级灰的格调。
刚开始我是有一点担心,家里大面积的灰会不会单调冷清,但抱着尊重设计的态度同意了方案。现在坐在客厅里,春夏秋冬,无论清晨与傍晚,无论阴晴雨雪,不同光线下灰度呈现出丰富生动的变化,我常常静静地欣赏,幸福与满足充满心头。
好设计,让家更舒适,让家人幸福美满地享受生活的馈赠。

