小灰


作品说明
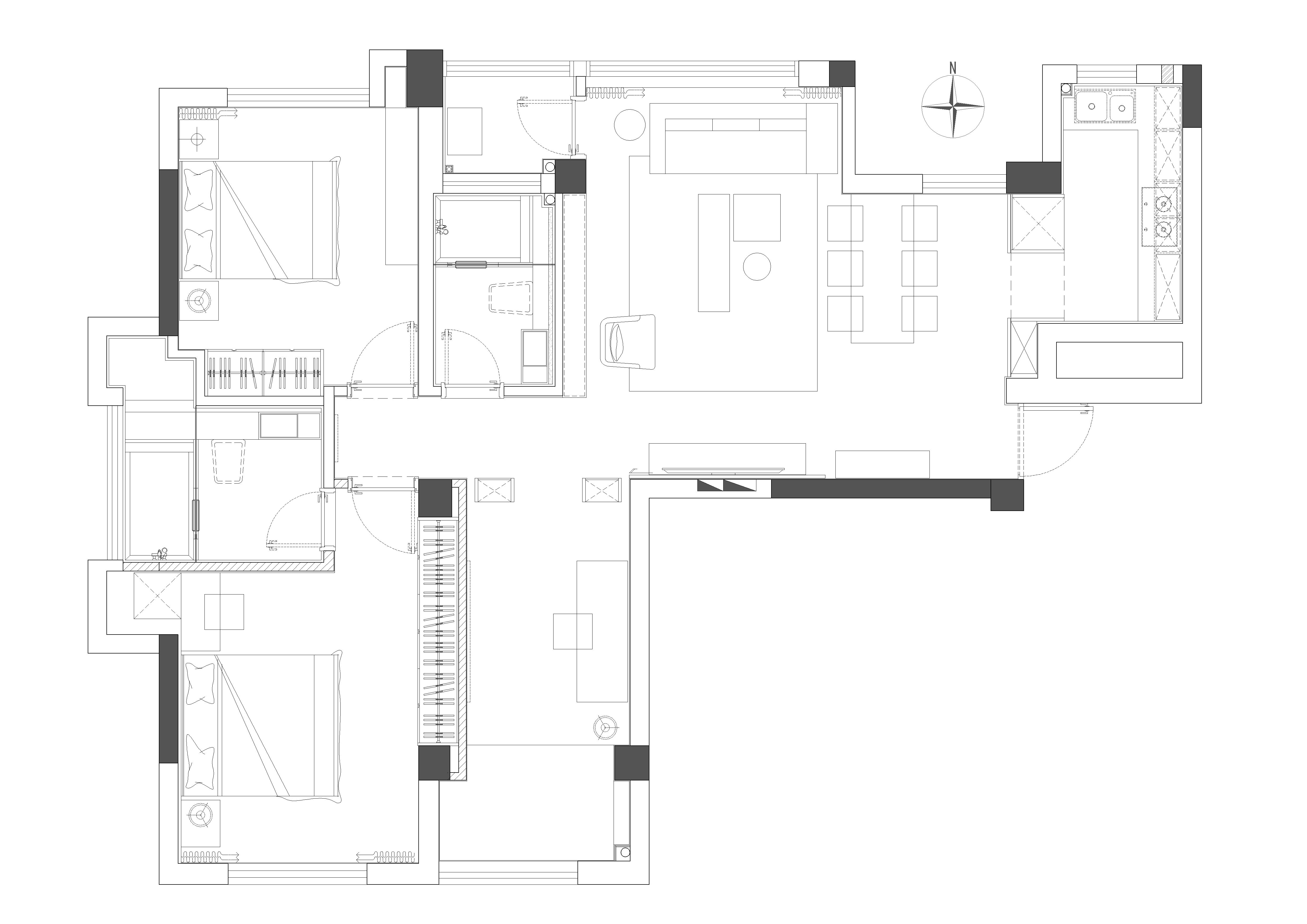
- 项目类型:住宅公寓
- 项目地点:南宁市
- 建筑面积:110.0000㎡
- 项目造价:35.0000万元
- 竣工时间:2019-07-08
- 设计机构:广西汉辉建筑设计有限公司
-
项目定位:“小灰”这个名儿源于项目主人打小就叫“小辉”,希望住的房子能有一个鲜明的个性、简朴的气质和旺盛的生命力。
-
空间意境:这套空间作品里,有严谨、有洒脱,有质朴有华美,有文化有传承。在其中,包含了我期望的精神层面上的主题,希望住在这个空间的人,能找到良好的交互状态、生活的状态以及学习的状态。
-
空间布局:原有室内建筑条件空间与空间之间错位、功能尺度局限以及楼板梁位交错底下,在在规划梳理中,希望能规避现有建筑问题,将原有的室内建筑条件成空间设计成属于这个空间特有的个性与优点。将室内空间的错位表现空间的虚实,体现空间的通透,将空间的疏密关系表现于软硬装之间,使得室内的秩序更加井然有序,空间色彩主要以灰色主导下的色彩关系,整个室内的虚实、疏密、色彩关系形成了这个空间特有的个性与质朴的气质,文质彬彬的同时也具有内心想要创新的个性。
-
设计选材:遵循设计逻辑,以高能效低成本达到最佳效果
-
用户体验:收纳功能强大,居住舒适、高级雅致气质。

