暖域



作品说明
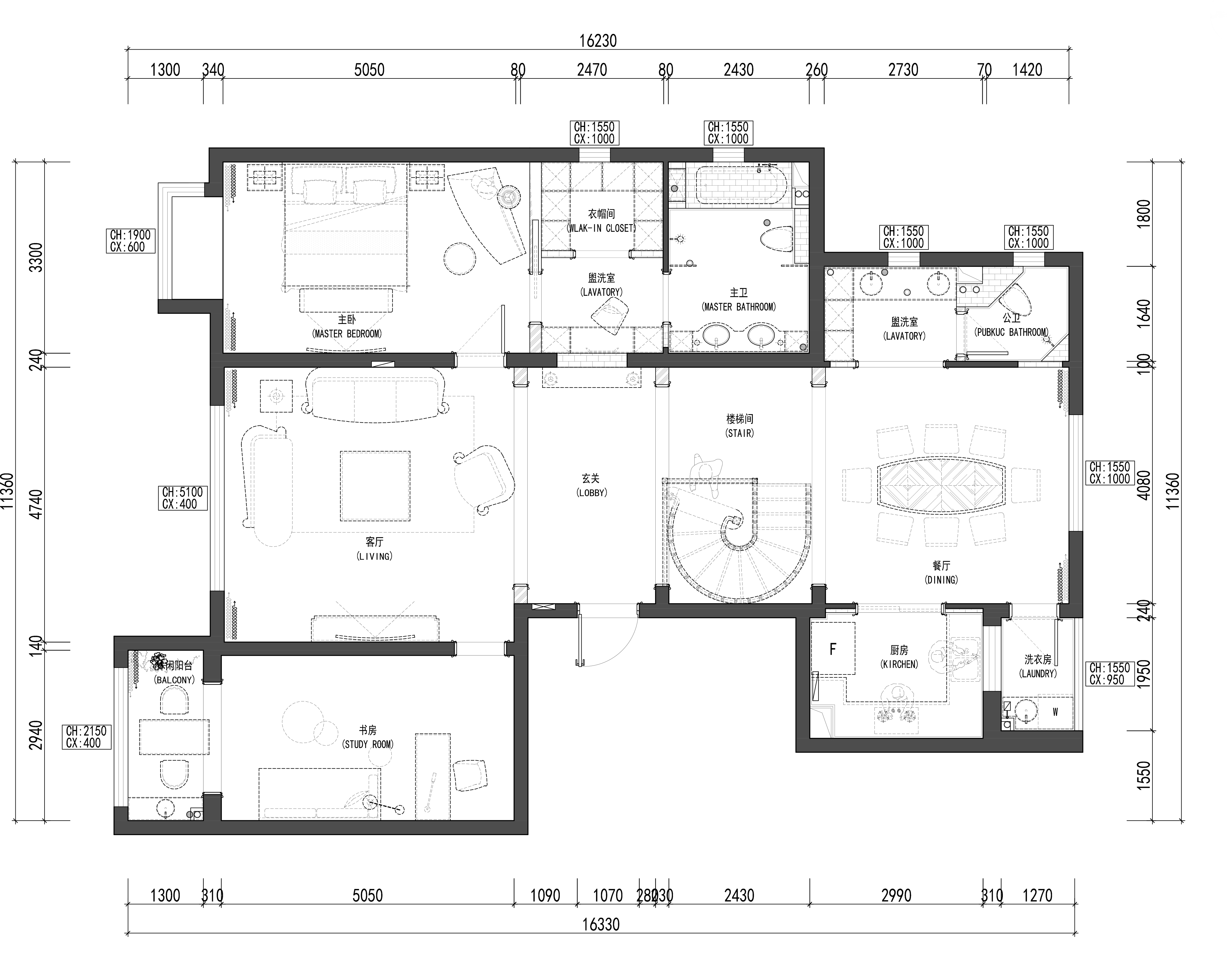
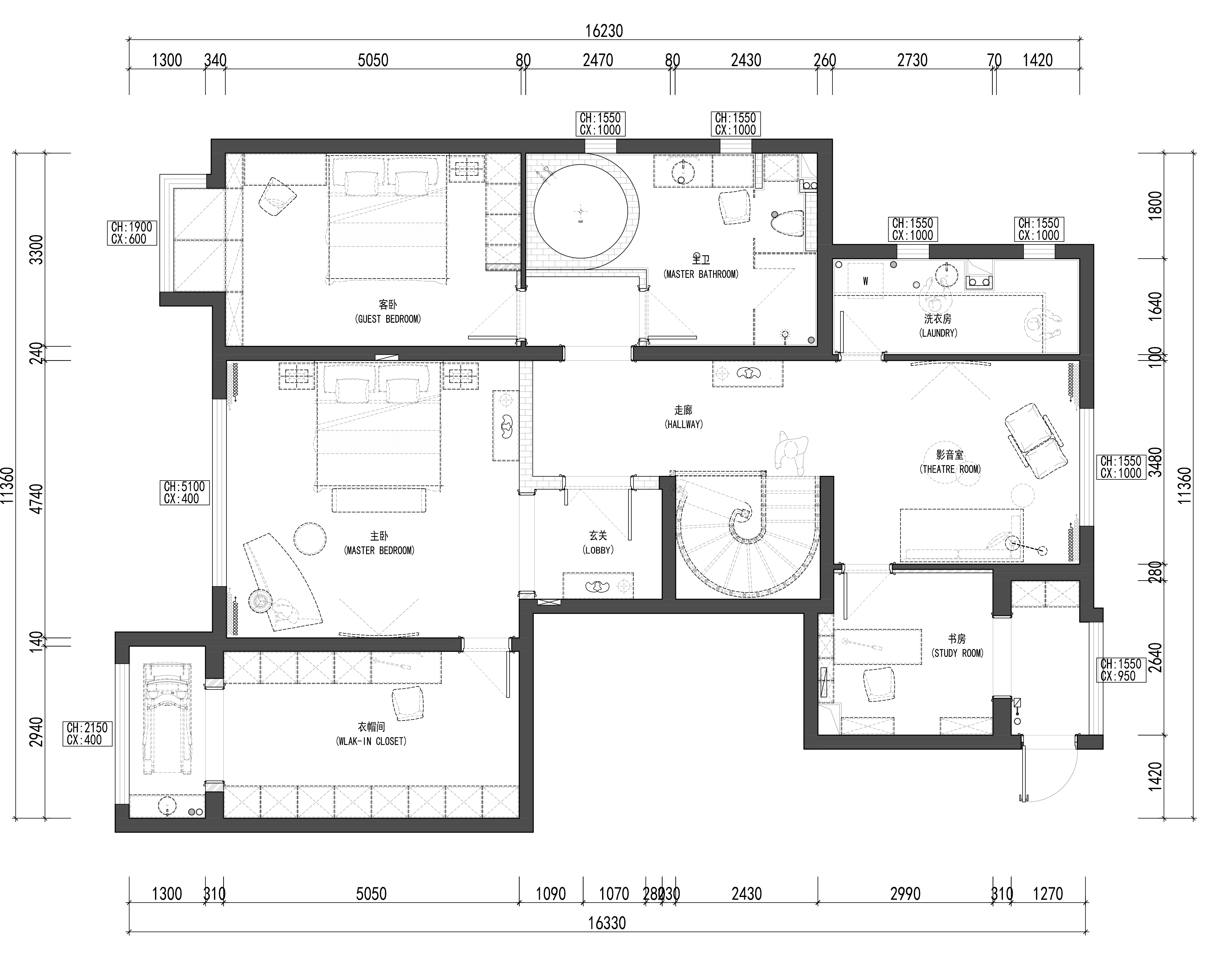
- 项目类型:住宅公寓
- 项目地点:沧州市
- 建筑面积:320.0000㎡
- 项目造价:25.0000万元
- 主案设计师: 韩景轩
- 参与设计师:韩景轩设计小组
- 竣工时间:2021-09-10
- 设计机构:大朴空间设计
-
项目定位:每个空间的划分从对景和功能都合理的利用了空间。
-
空间意境:作品最大的创新点是柱子,顶梁的柱子为多立克柱式,意为男子顶天立地,背景墙用的是爱奥尼优美柱式,意为女主人的精致优美。
-
空间布局:二楼设立临时会客厅,方便促进家庭的和谐关系,同时也方便会客。
-
设计选材:金属的穿插,大大提高了空间的精致感。
-
用户体验:业主对卧室和卫生间由为满意,居住起来身心放松。

