家是浪漫的冗长,温暖亲密的繁复
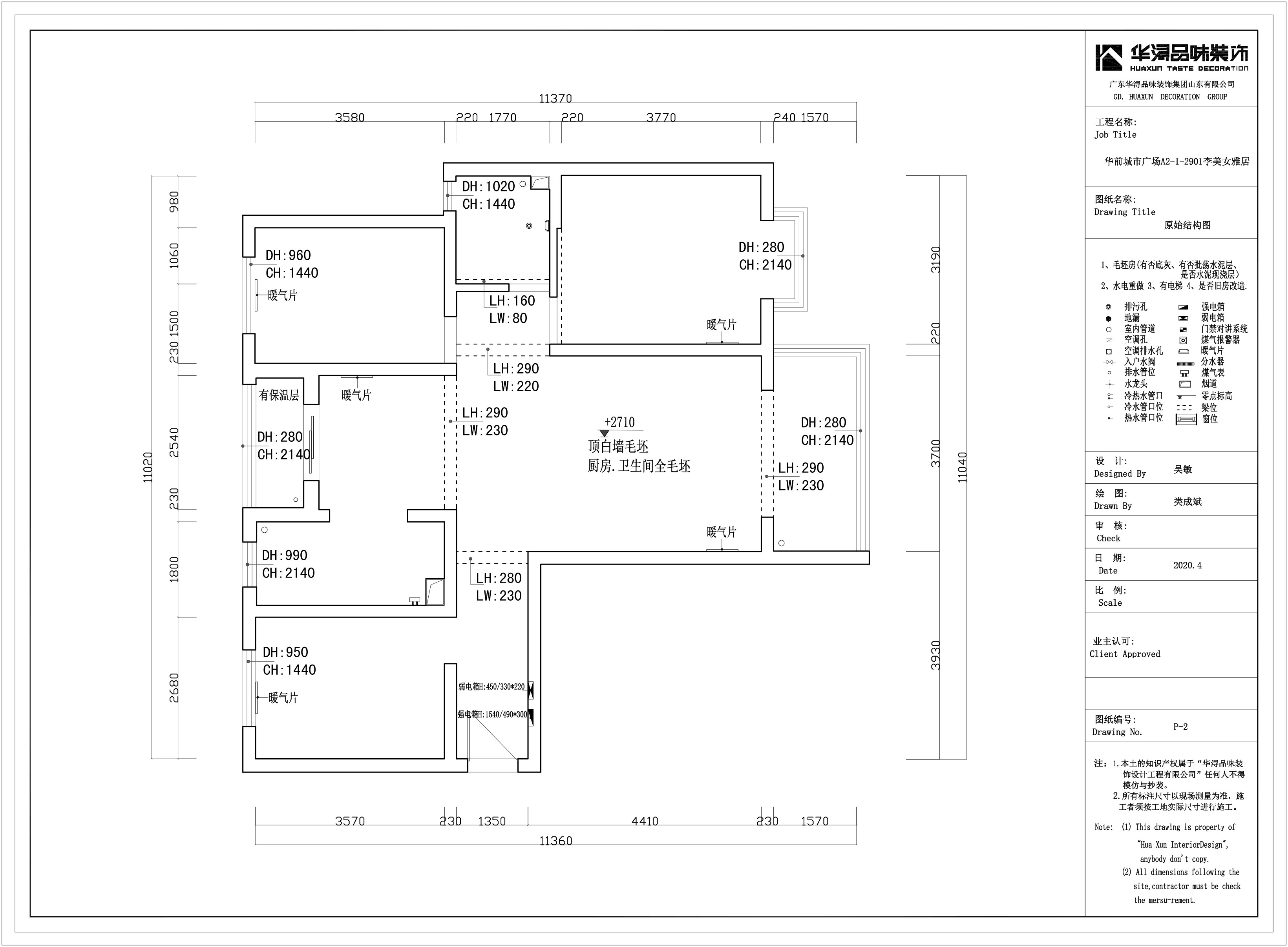
803 - 项目类型:住宅公寓
- 项目地点:临沂市
- 建筑面积:130.0000㎡
- 项目造价:300000.0000万元
- 主案设计师: 吴敏
- 参与设计师:吴敏
- 竣工时间:2021-03-31
- 设计机构:华浔品味装饰
-
项目定位:当我们称赞一把椅子或是一幢房子美的时候,我们其实是在说,我们喜欢这把椅子或这幢房子向我们暗示出来的那种生活方式。
生活本就是自己的,而“家”能够最好地去诠释本质生活
-
空间意境:让装饰画、植物、陈设、声音和光,重新解构了我们日常生活的场景,让一切有机的、无机的物体在这里相遇!
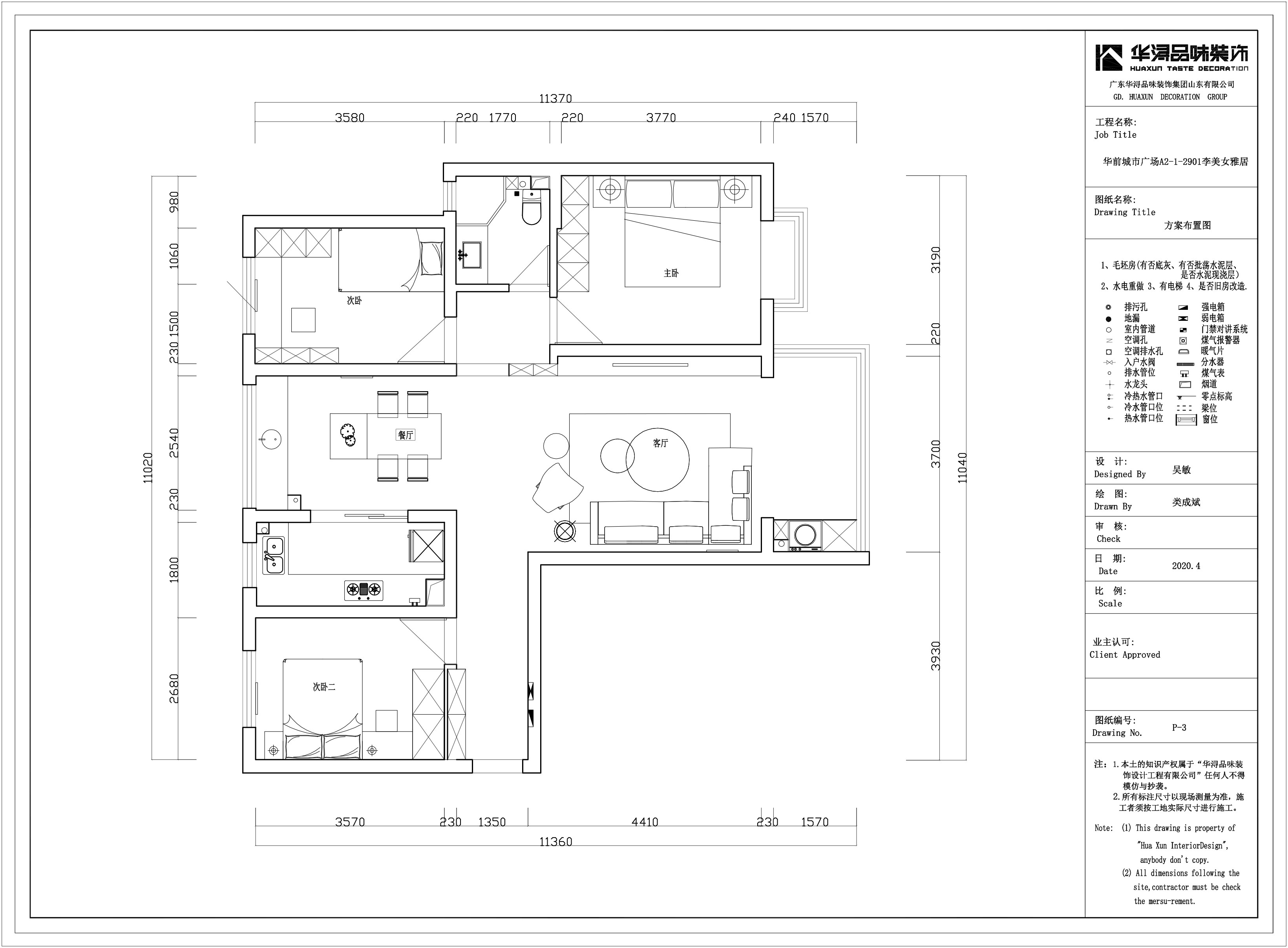
通透感的客餐厅,塑造空间的流畅度,大面积木饰面和大理石的运用,使得整体空间纯粹、安静、不张扬,具有微妙的视觉感知力。家具选择低矮的沙发组合,岛台边靠长条餐桌,散落在各个角落的陈设和绿植,这一切都将“自由流动”的理念贯穿始终,无形中提升空间。
-
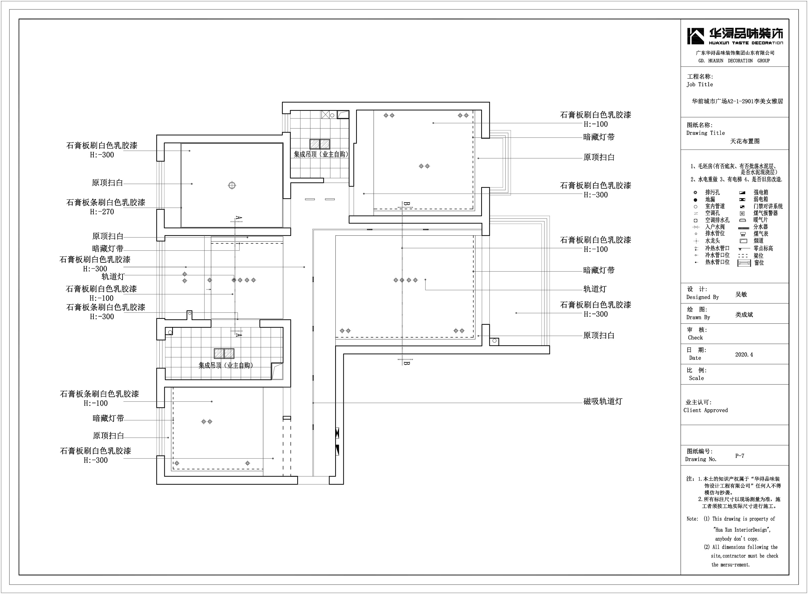
空间布局:空间的流动性自然的分割了室内的功能,开放式的阳台通透、高冷又时尚的质感,落地书柜简洁的造型与材质关系诠释了空间一以贯之的理性、有序和简约之美,为整个家增加了一丝沉静与温厚的气息。
-
设计选材:用餐区明亮而纯粹,干净简约的装饰与整个空间呼应,水晶与金属材质的餐盘,精致细腻,碰撞出强大的视觉冲击力,让用餐极富格调。
如果说整个空间的主调由初入时的开阔观感所决定,那么最贴近人的舒适体验则通过对每个软装细节的严格掌握而呈现。
主卧在石纹硬包与浅木色的统一中,软装将空间的柔和气氛延展到灯饰、及布艺家居中,融现代化的生活方式与艺术的生活气息于一室。
次卧延续空间调性,触感极佳的皮革,搭配金属线条细节的床头柜组合,以及墙面的皮革挂画,共同组合出丰富的层次关系,却不臃肿,而是简洁地表达出了属于空间的温度。
-
用户体验:可爱治愈的沙发增加了空间的轻盈安全感,同时也加强了空间的艺术表现力与感染力。创造一个家的童真童趣。看似小小的一方天地,也能撑起一个家的欢声笑语。
项目名称丨中国.临沂.华前城市广场私宅 硬装设计丨华浔品味装饰-山东临沂公司 项目主创丨吴敏 完成时间丨2020.12
用餐区明亮而纯粹,干净简约的装饰与整个空间呼应,水晶与金属材质的餐盘,精致细腻,碰撞出强大的视觉冲击力,让用餐极富格调。 如果说整个空间的主调由初入时的开阔观感所决定,那么最贴近人的舒适体验则通过对每个软装细节的严格掌握而呈现。
家具选择低矮的沙发组合,岛台边靠长条餐桌,散落在各个角落的陈设和绿植,这一切都将“自由流动”的理念贯穿始终,无形中提升空间。
通透感的客餐厅,塑造空间的流畅度,大面积木饰面和大理石的运用,使得整体空间纯粹、安静、不张扬,具有微妙的视觉感知力。
主卧在石纹硬包与浅木色的统一中,软装将空间的柔和气氛延展到灯饰、及布艺家居中,融现代化的生活方式与艺术的生活气息于一室。
生活本就是自己的,而“家”能够最好地去诠释本质生活
让装饰画、植物、陈设、声音和光,重新解构了我们日常生活的场景,让一切有机的、无机的物体在这里相遇!
次卧延续空间调性,触感极佳的皮革,搭配金属线条细节的床头柜组合,以及墙面的皮革挂画,共同组合出丰富的层次关系,却不臃肿,而是简洁地表达出了属于空间的温度。
可爱治愈的沙发增加了空间的轻盈安全感,同时也加强了空间的艺术表现力与感染力。创造一个家的童真童趣。看似小小的一方天地,也能撑起一个家的欢声笑语。
空间的流动性自然的分割了室内的功能,开放式的阳台通透、高冷又时尚的质感,落地书柜简洁的造型与材质关系诠释了空间一以贯之的理性、有序和简约之美,为整个家增加了一丝沉静与温厚的气息。
当我们称赞一把椅子或是一幢房子美的时候,我们其实是在说,我们喜欢这把椅子或这幢房子向我们暗示出来的那种生活方式。
0
0

认证 · 让您身份增值