焯菲美业


作品说明
- 项目类型:休闲娱乐
- 项目地点:泉州市
- 建筑面积:380.0000㎡
- 项目造价:1200000.0000万元
- 主案设计师: 黄汉良
- 参与设计师:陆明 潘诗云
- 竣工时间:2021-05-15
- 设计机构:本言设计
-
项目定位:艺术并非富余追求,也可融于大众。然而我们并不是艺术的诠释者,我们只是美跟艺术的追求者。
颜色她是有生命的,不同的颜色在空间中传递的情感跟氛围是不同的。方案中以酡红色为亮色,我们认为她是一种既有成熟的韵味,又有年轻的俏皮。也是我们想在方案中传递的情感。是我们业主服务的群体年龄阶段比较受欢迎的色系。 -
空间意境:造型方面,我们想展现女性柔美的姿态。通过一些我们认为的艺术性的手法融合在空间中。于是方案《游·离》 以弧为骨,酡红色为墨。勾画出建筑与造型的柔美与感知。
-
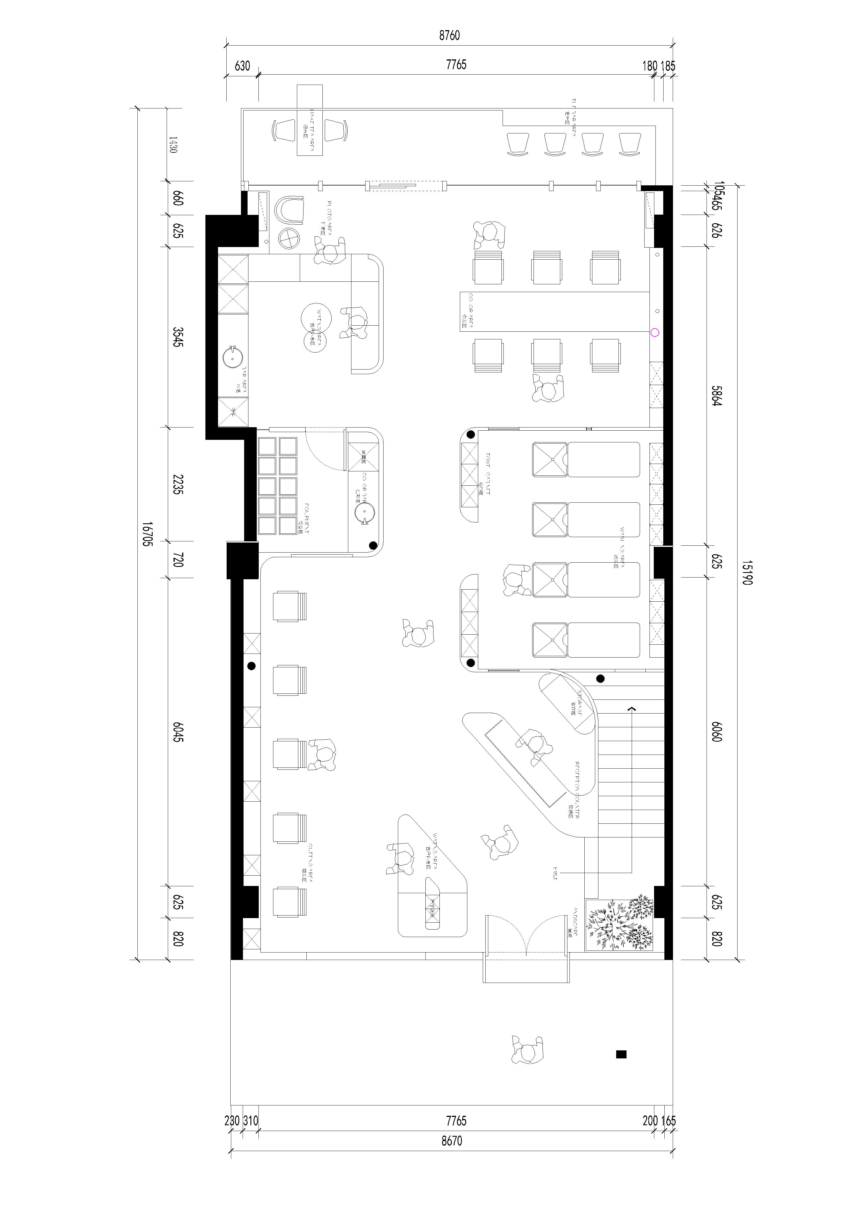
空间布局:楼梯与前台我们想把它打造成空间的焦点。通过酡红色将其融为一体,纯粹而单调。其形翩若惊鸿,扶摇而上。
天花线形灯是整个空间的点睛之处,其形宛若游龙,照影而来。阁楼下方通过天花的反射,创造了另一个维度的空间,从视觉方面削弱阁楼下方的压抑感。墙面通过大面积的镜面,延伸地板与天花的边界。
空间的界定并非是视野的遮挡,而是通过天花的圈围。室内的地砖延伸到室外,淡化内外的关系。染发桌也是相同颜色的水磨石使得空间更加整体。酡红色为点缀,不多不少。墙面大面积的铝单板颜色也与地面相同 使得空间更加纯粹。
因为空间中女性顾客较多,空间中陈设的不锈钢球柔化整个空间,使得空间更具趣味性。 -
设计选材:水性涂料,镜面不锈钢,铝板
-
用户体验:成为当地美发店的新星,形成一个网红打卡空间
楼梯与前台我们想把它打造成空间的焦点
通过酡红色将其融为一体,纯粹而单调。其形翩若惊鸿,扶摇而上。
造型方面,我们想展现女性柔美的姿态。通过一些我们认为的艺术性的手法融合在空间中。于是方案《游·离》 以弧为骨,酡红色为墨。勾画出建筑与造型的柔美与感知。
天花线形灯是整个空间的点睛之处,其形宛若游龙,照影而来。阁楼下方通过天花的反射,创造了另一个维度的空间,从视觉方面削弱阁楼下方的压抑感。墙面通过大面积的镜面,延伸地板与天花的边界。
艺术并非富余追求,也可融于大众。然而我们并不是艺术的诠释者,我们只是美跟艺术的追求者。
空间的界定并非是视野的遮挡,而是通过天花的圈围。室内的地砖延伸到室外,淡化内外的关系。染发桌也是相同颜色的水磨石使得空间更加整体。酡红色为点缀,不多不少。墙面大面积的铝单板颜色也与地面相同 使得空间更加纯粹。

