中梁·恒哲时光128公馆
1292
作品说明
- 项目类型:样板间/售楼处
- 项目地点:东莞市
- 建筑面积:416.0000㎡
- 项目造价:117.0000万元
- 参与设计师:范婷婷
- 竣工时间:2021-05-01
- 设计机构:成仕间设计
-
项目定位:本案将黑键比作勾勒空间的点与线,串联纯白色块凸显出极具序列与张力的内空间。提取经典的黑白色调,去风格化,用纯粹的体块来分割功能,回归设计本源,打造纯净臻雅的美学空间。
-
空间意境:钢琴的88键,是固定的数字。指尖落于琴键上,却能弹奏出无限的音乐。电影中1900坚守着纯净的内心,忠于自我,繁华都市的诱惑不及海上漂流的自如与安逸。在纸醉金迷、穷奢极侈的环境下,依然守护着本心,为音乐而悲喜。借由1900的人生态度,重塑设计,回归本源。将黑键比作勾勒空间的点与线,串联纯白色块凸显出极具序列与张力的内空间。提取黑白色调,主张去风格化,通过纯粹的体块来分割功能。
-
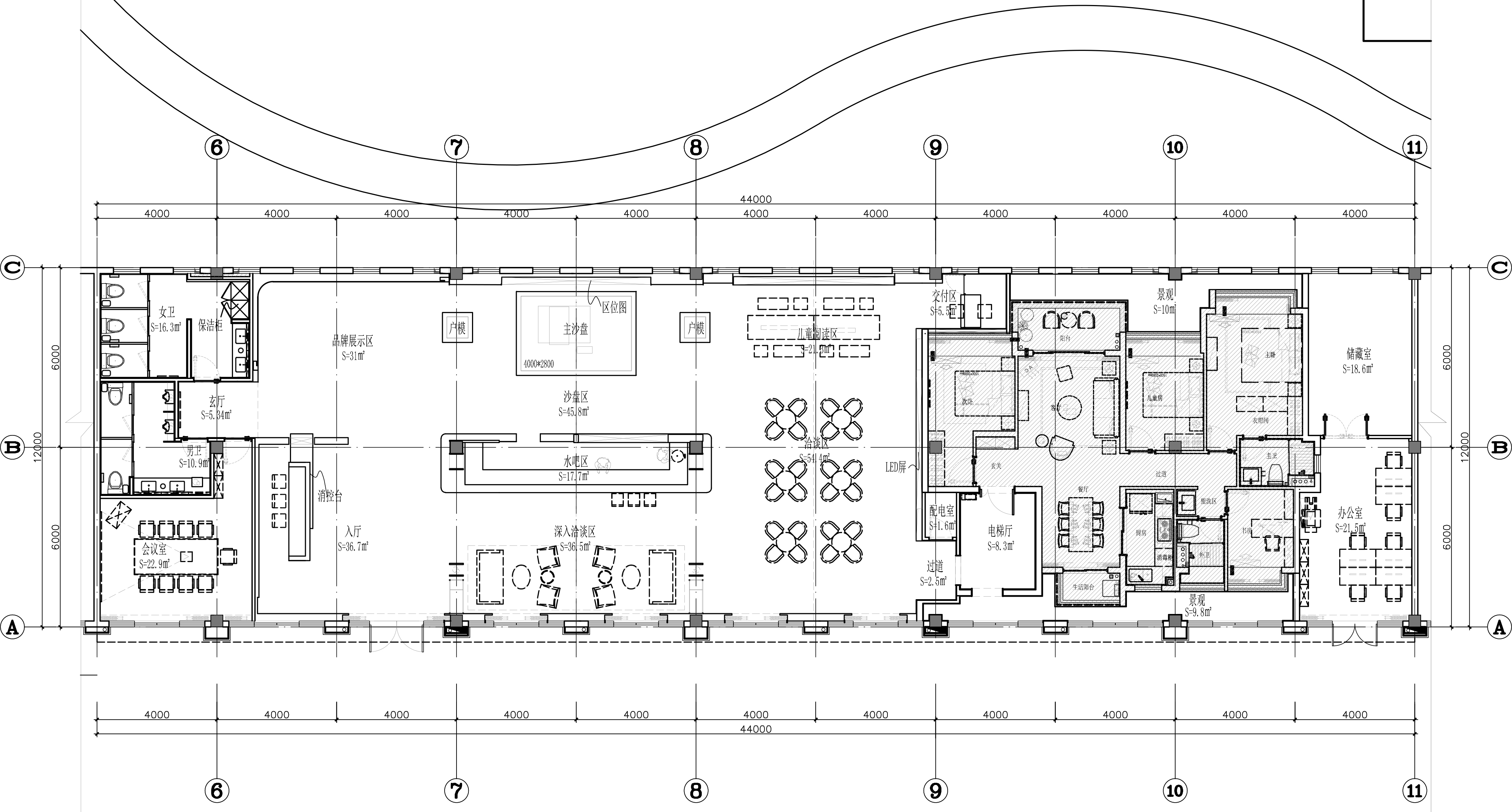
空间布局:从主入口五光十色的“纸飞机”化作指挥官,指引着参观者来到属于自己的舒适圈。空间的白似是一张张白纸,等待需要的人画上故事。直线与折线划分出空间功能,大胆运用纯色材质搭配金属线条,勾勒细节弱化单色的干枯感。挑台的递进,艺术品的互动,为空间带来雀跃的生命力。作为焦点的环岛吧台打破空间的秩序,在原有光洁硬朗的环境下融入生活气息,侧壁采用独特的石材片,天然而不粗犷。布局将洽谈区与儿童书吧合并,延伸空间同时增添一份童趣与活力。
-
设计选材:空间内大面积的白由人造石、壁布、烤漆板组成,环保可再生资源。作为临展性质的商业空间运用环保快捷的材料进行设计,搭配深色金属以及少量天然石材,增添空间多样性与品质感。
-
用户体验:空间干净利落,为参观者提供清爽的观赏环境。
0
0

认证 · 让您身份增值