开通会员
* 不支持7天无理由退货
五大会员回报
一、五种秒生图 · 让您秒速谈单
文生图、全屋设计、线稿变精装、毛坯变精装、旧房翻新
——自研Ai、前期提案0成本,以图锁客、签单神器
二、秒生爆款文案 · 让您轻松日更
Ai秒生小红书爆款文案、专业级参赛文案
三、小程序分发 · 让您直达业主
V网站小程序支持多平台分享、高效引流
四、个人主页 · 让您专属展示
个人作品专属展示,设计师私属商务名片
五、红认证 · 让您身份增值
“行业奥斯卡”金堂奖加认证,让您增值
限时优惠,免费试用3天
金堂奖会员
399/ ¥880
终身会员2980元(不限年份、永久使用)
在线支付

在线支付安全认证

安全可靠

您的信息将完全加密

即买即用

享受更多优质会员服务

应付金额: 399

已扫码

请在手机上完成支付

点击刷新
请用微信扫码支付

支付即同意并接受

《金堂奖个人订阅服务协议》
恭喜,您已成功开通金堂奖VIP会员!
会员到期时间:2025-03-10
将于 10秒后,跳转至 秒景AI设计,立即跳转
关闭
简介
报名
记录
V网站简介
我的V网站
主页
发布作品
金堂奖
秒景AI
V网站
我的
立即红认证,享会员五大回报
您免费试用时间已到期,
立即红认证,享会员五大回报
您的体验仅剩2天,立即认证享无限使用!
您的体验仅剩1天,立即认证享无限使用!
您的体验仅剩1小时,立即认证享无限使用!
立即认证
领取三天试用期
恭喜您成为金堂奖会员立享五大回报
会员有效期截止
返回

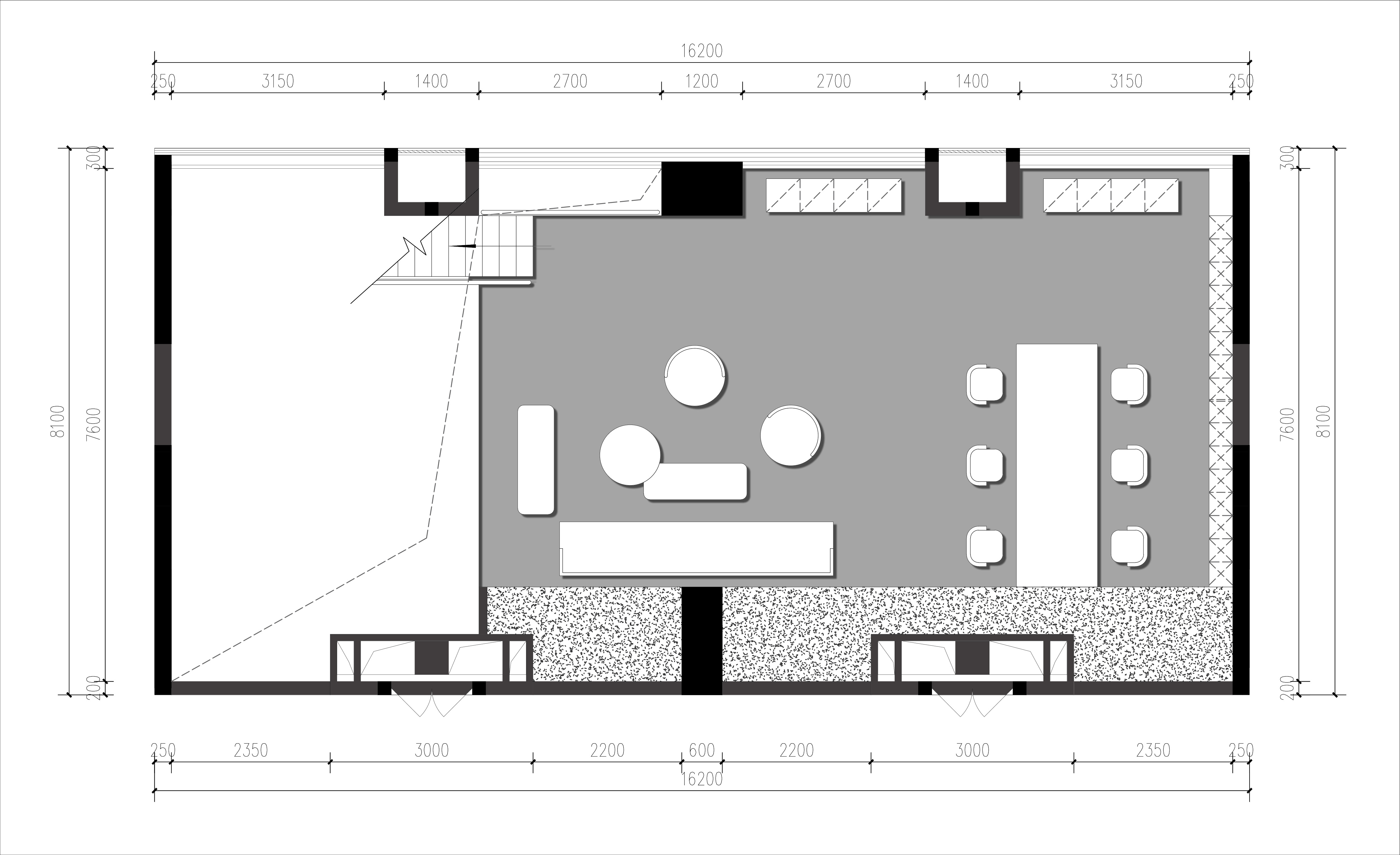
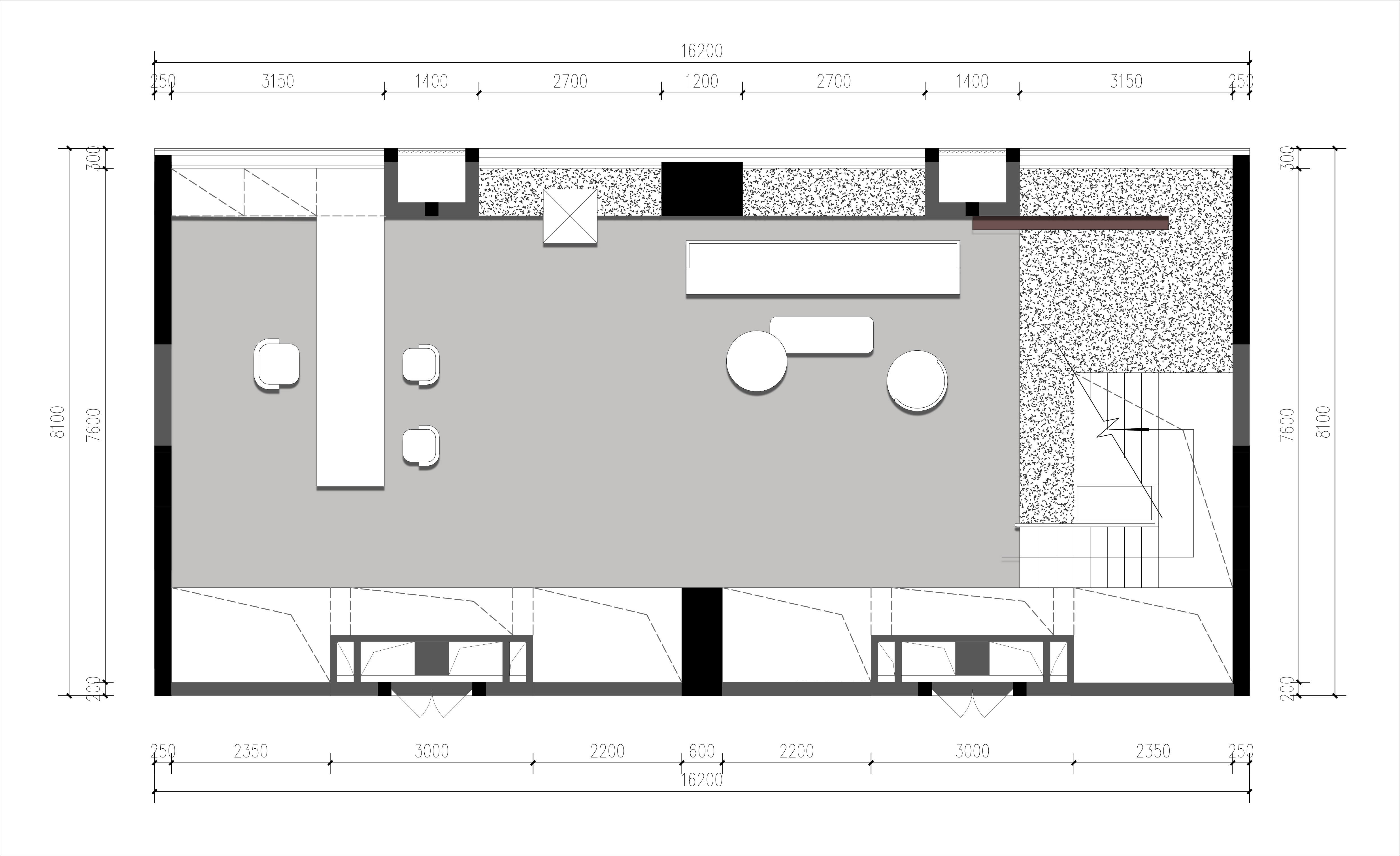
《2021盛天奇寓 | 设计大赛-银奖作品》

2350
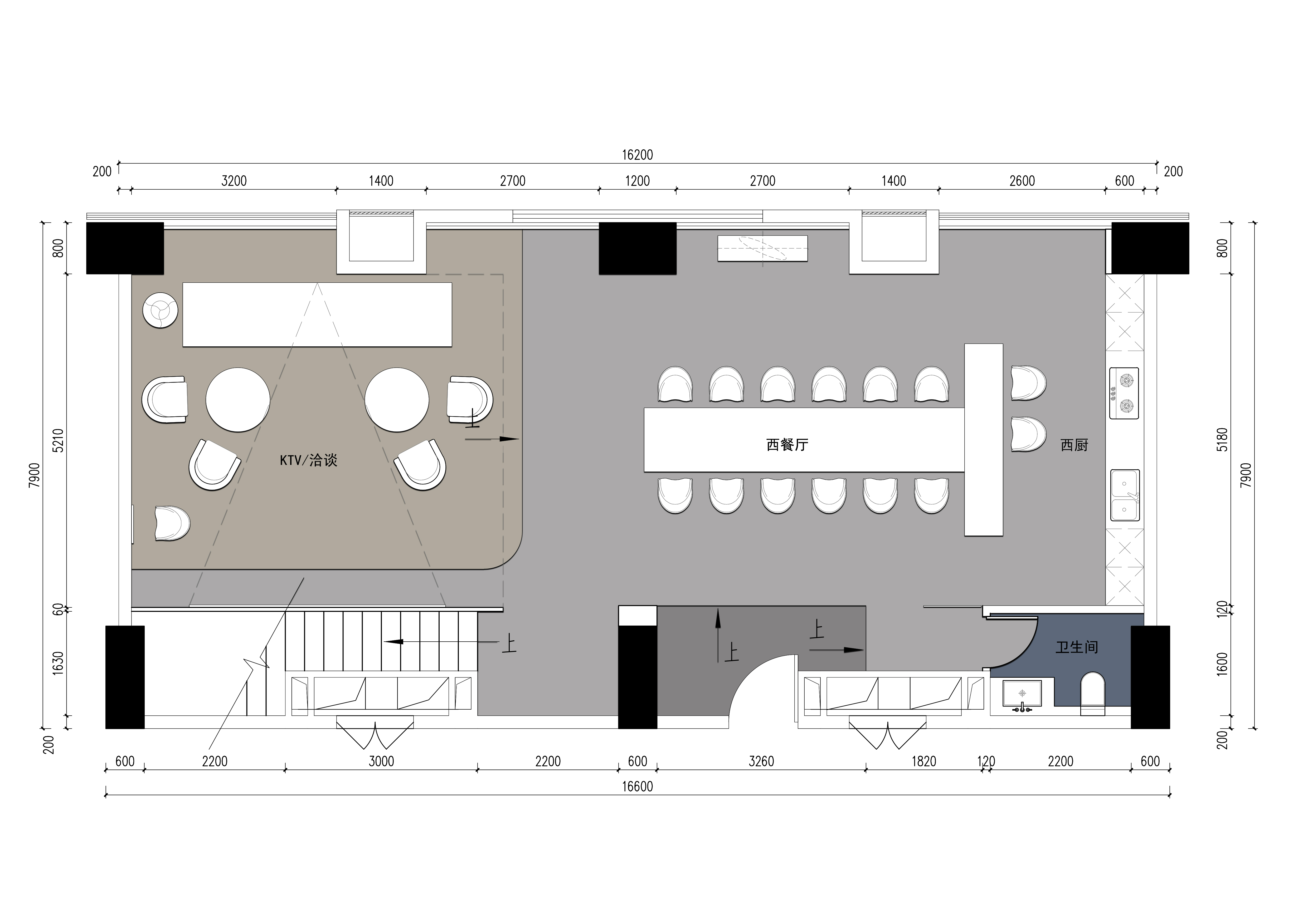
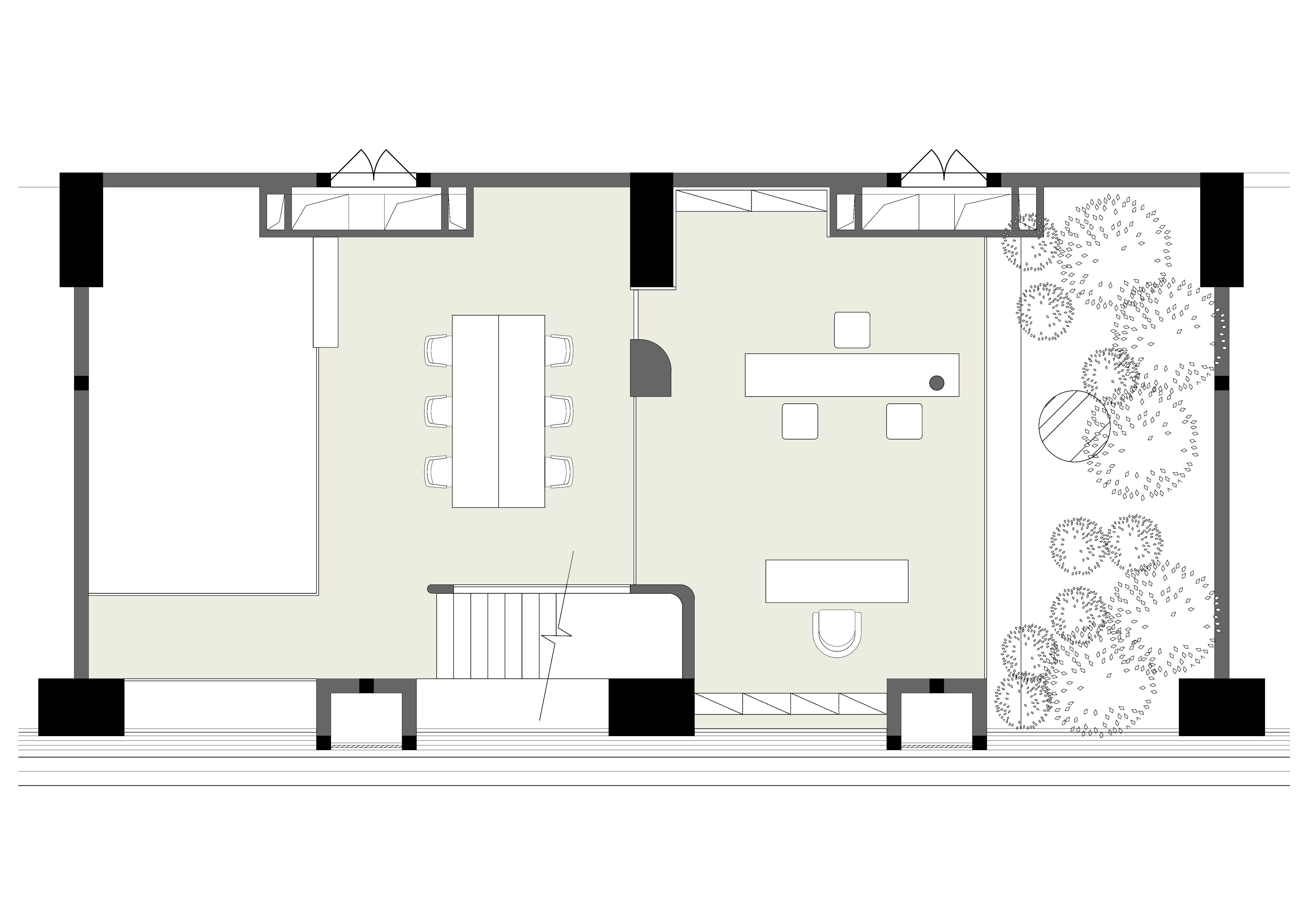
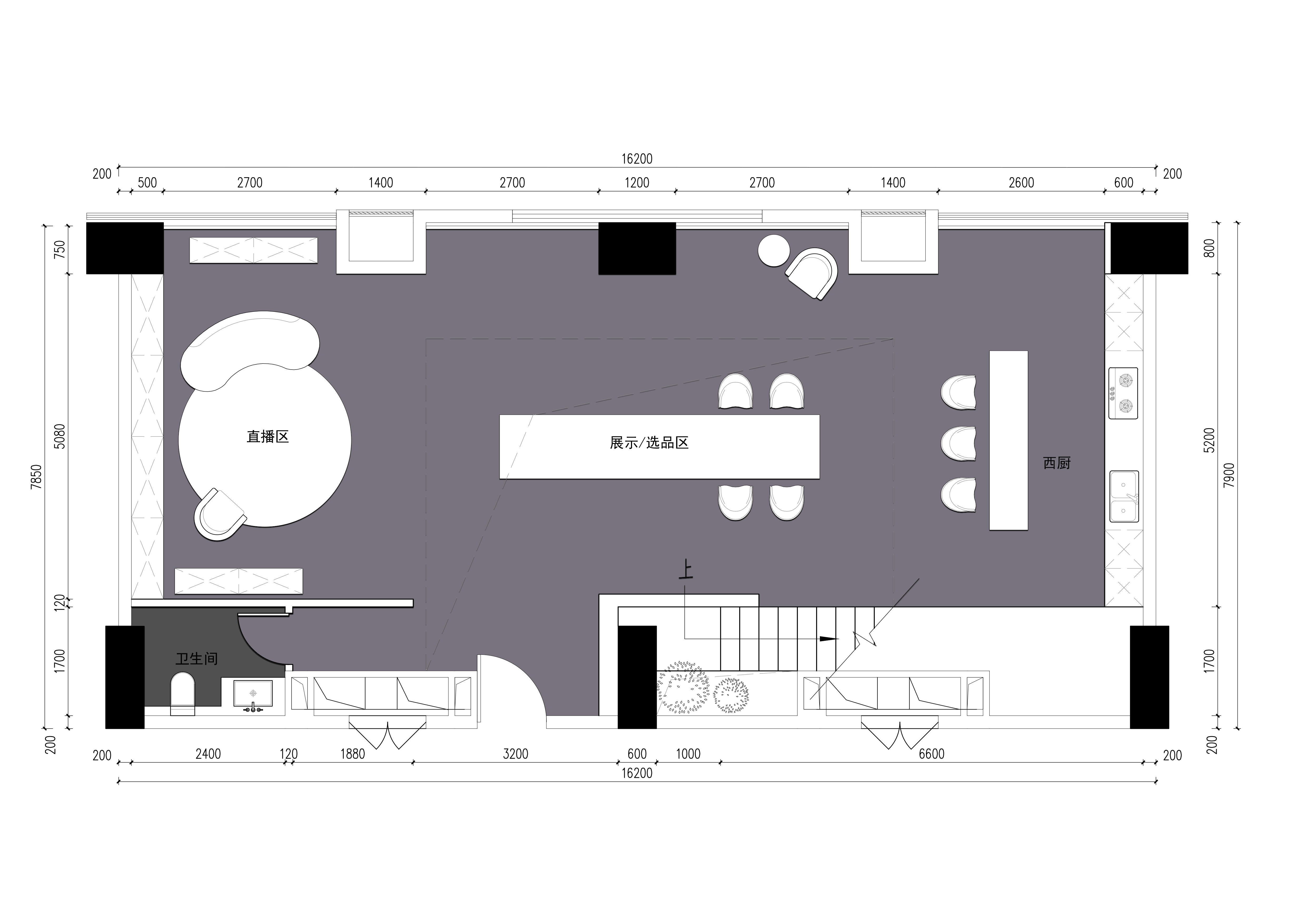
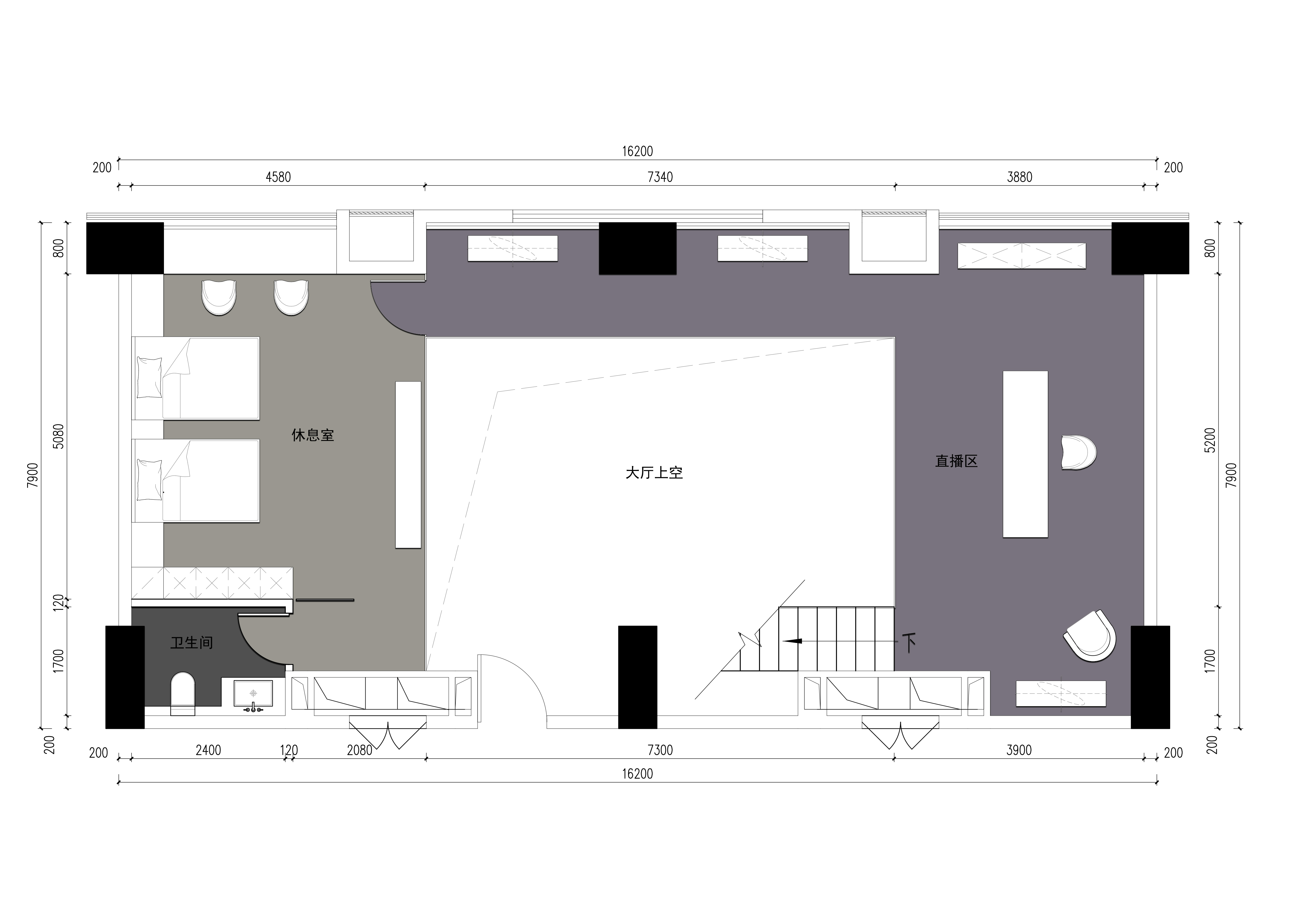
工程说明
  • 项目类型:办公
  • 项目地点:南宁市
  • 建筑面积:160㎡
  • 项目造价:76万元
  • 主案设计师:陈鹤一
  • 参与设计师:陈鹤一
  • 设计机构:陈鹤一室内设计研究院

2021盛天奇寓 | 5500LOFT户型 | 设计比赛,6个作品全部入围奖项,最高喜获银奖!


0
0
  • 陈鹤一
  • 总设计师
  • 柳州市

    工作地点

  • 联系方式

    13481206483