林宜咖啡


作品说明
- 项目类型:餐饮
- 项目地点:惠州市
- 建筑面积:60.0000㎡
- 项目造价:20.0000万元
- 参与设计师:庄启祥
- 竣工时间:2021-07-15
- 设计机构:惠州市一川设计
-
项目定位:林宜咖啡定位在做创意品质为主的咖啡产品定位职场办公为主的白领及热爱咖啡的人群
-
空间意境:作品风格上因为这是今年第二家店延续上一家店主要用瓦片的中式姹寂风格一砖一瓦一咖啡, VI(宜)中式拆解的构成方式至于空间中心 呼应空间风格的同时增加辨识度
-
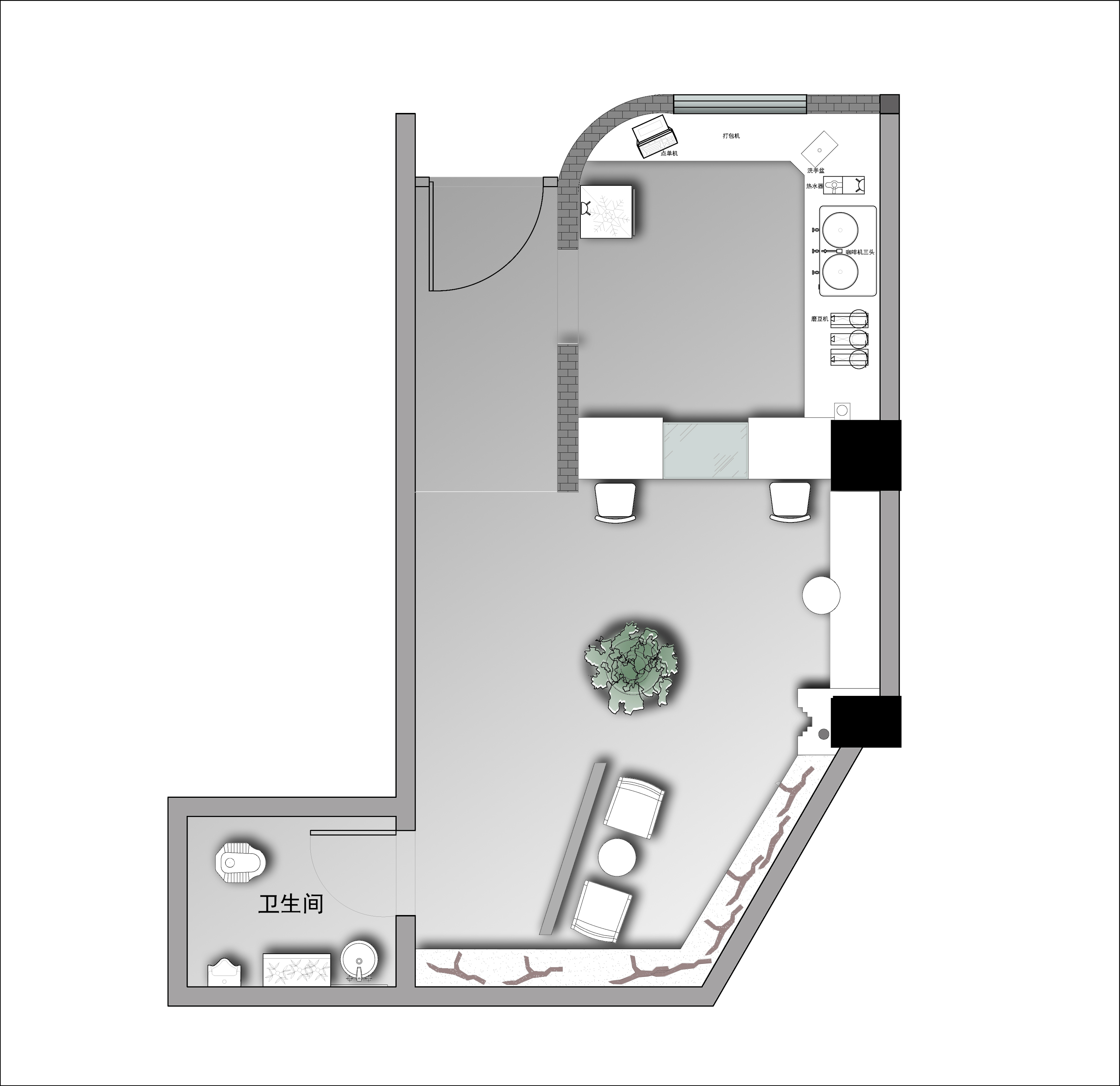
空间布局:功能布置咖啡师操作区至于前半段 门口的窗口可以点单拿区,内部的吧台区可以让咖啡热爱者跟咖啡师聊聊咖啡及人生 用一颗悬空植物作为空间重点呼应效果同时创造环形东西使内部格局更多变
-
设计选材:设计选材上同样用到呼应我们中式床姹寂风格第一家店瓦片这家店的砖块,经济低碳的中国传统建筑的元素贯穿整个设计
-
用户体验:投入使用后 小红书很多打卡文章中提到最多的是艺术性、特别、冷酷、并且能安静下来能被消费者体验到设计之初想传递的东西是最让我感动的并不会因为用到最普通的东西而觉得廉价
致敬斯卡帕的包柱造型内部藏着一个消防管有效区分枯枝景区跟休闲区
枯枝景区
坐下在繁杂的生活中休息片刻
引发驻足思考人生
透过空心砖口,看枯枝艺术,犹如一部好戏登场
呼应姹寂的枯枝小景
门头选择砖瓦元素作为设计的主基调,“一砖一瓦一咖啡”
截取霸王别姬中经典句,希望来喝咖啡的每个人演好人生这出戏
以主理人名字命名LOGO墙放在了进门远端尽头中心处
构建出传统建筑的特色方块体块的招牌跟窗口有序排列
空间通过空心砖墙三个功能,倾斜的角度视觉导向LOGO,隔开VIP空间并保留私密性,另一个功能做卫生间的隔断墙
整个空间中心的悬空植物作为空间轴心导流整体动线隐喻绽放
空间划分两个大块入门处用半弧的砖墙造型做背景延伸及导入镜头“宜”字,内部通过空心砖及悬空植物再划分LOGO墙跟VIP饮品区,保持空间动线及视线的秩序

