鼎合设计 | 盈尺之地 别有洞天 —— 建业君安里城市体验中心


- 项目类型:样板间/售楼处
- 项目地点:郑州市
- 建筑面积:480㎡
- 主案设计师:鼎合设计团队
- 设计机构:河南鼎合建筑装饰设计工程有限公司
“朴素而天下莫能与之争美”。----庄子
如今的体验中心,不仅是流量的导入,也是一种自然、空间、人所构成的新型生态关系,更是一种和人情感的融合。此次所要展示的项目坐落于郑东新区低密居住区,邻靠雁鸣湖自然生态园,基于这一背景,也就构成了雁鸣君安里体验中心的设计方向:回归自然与纯净。设计师以此作为出发点,营造了一处避世的桃源。
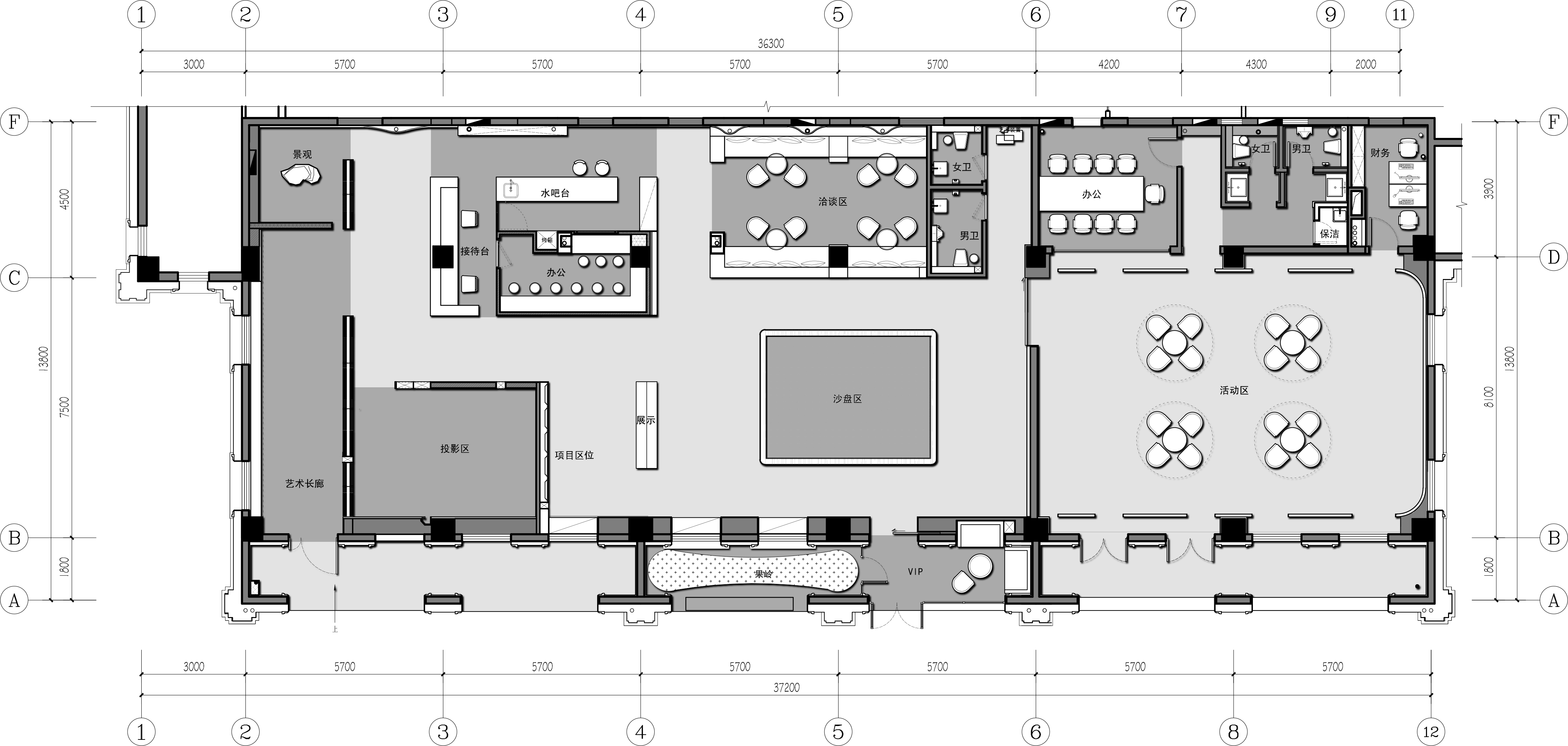
原建筑空间面积小、进深小、高度小,并且缺乏层次感,这个如此不理想的条件使得内部的设计十分受限,而如何将劣势转为优势,凸显出这个空间的独特性,则贯穿整个设计的始终。设计师打破严格的对称性,将一个个承载着自然气息的“盒子”摆放在空间中,巧妙地通过“虚、实”的方式和技巧,使空间有流动,有停顿,将空间美和自然的美沟通汇合起来,形成一个更为自由开阔的有机整体。
设计元素以白色为主,配以简洁的线条结构,创造出“纯”“静”的材质环境,简单而不失质感,更结合点状、带状的光源凸显绿植,承托主空间的自然之美,隐喻内敛中蓄势待发的生命力。
入口处纵向延伸的白色木质格栅,让你无法窥知室内全貌,内景若隐若现,勾起你一丝好奇心。
醒目的迎宾柜台,承载着各个区域的划分与连接,无论你从柜台的哪一边走过,都会有不同的体验等着你。加以白色墙面上的文字引导,形成一种独特的空间对话。
胡桃木色的书架,绿植墙面衬之,走过瞬间,不由嗅出一丝自然气息,一本书一盏茶享受当下,回归本我。随着空间流动至洽谈区,绿植墙面的延伸,“返景入深林,复照青苔上”的闲适之感便顷刻涌上心头。
柜台的另一方,则通往沙盘展厅,空间由窄及宽,给你带来极具张力的视觉体验。主墙上自然植物的律动,结合窗外自然光的波动起伏,以楼盘所处地理环境本位思路,表达出人与空间之自然对位关系。
灯饰上,造型简洁,线条流畅,富有现代感,又不显得突兀,为整个空间增添了品位。
山重水复疑无路,柳暗花明又一村。看似空间到了尽头,而展厅侧墙出口则又进入了另外一个空间——vip接待室。独立的设计相当注重人的隐私,横向大面的玻璃窗,计划性地将窗外墙内的自然园景吸纳入内,让室内之人面外视窗最美的部分,气氛安全隐秘而又无比舒适。
雁鸣君安里体验中心不仅仅是一个商业销售中心,它更承载着家的理念,代表着这里的生活质感。项目的设计理念与此不谋而合,用极简的线条,勾勒出最灵动的空间。
少就是多,简单就是丰富。
-
郑州市
工作地点
-
联系方式
0371-65988111


