白朗峰
1028 - 项目类型:住宅公寓
- 项目地点:中山市
- 建筑面积:500.0000㎡
- 项目造价:260.0000万元
- 参与设计师:王彪红、邹文
- 竣工时间:2018-03-10
- 设计机构:艺璞设计
-
项目定位:这是一个推倒重来的个案,设计难度大。此宅的业主先前请来的家装公司将其装修得败笔甚多,施工到1/3便停工。设计师王彪红本着一颗匠心,在原有装修上进行设计,扬长避短,不但将一个复杂的豪宅空间做出整体感,还运用多种手法规避了户型的短板,凸显了设计师的独创设计,塑造出业主心中想要的充满东方气韵的现代新中式空间。
-
空间意境:1、山峰意境
7米高的中空大厅,具备打造成大气空间的潜质,该如何发挥这一优势?设计师想到此宅位于白朗峰,那就把山峰的元素融入空间的设计中来。他为大厅高挑阔大的主墙设计了一副抽象、写意的壁画,请画师搭梯从墙顶一直绘制到墙脚。此画看起来像山峰云海,大气磅礴,意境深远。
山峰元素在客厅与二楼阅读区的交界处也加以灵活运用。通常,这面墙会用很贵的材料装饰,而设计师攫取灵感,将实木条以有韵律的节奏进行排列,木条上以“点”的形式装上不锈钢,不锈钢“点”的排列呈现出山峰的模样;“山峰”还跨过客厅宽大的梁柱,在另一组水晶艺术装置中得以延续,加上富有艺术感的打灯效果,使它们成为客厅中两组欣赏价值极高的艺术装置。“山峰”与实木在两组艺术装置中的并用,还化解了宽大梁柱造成的割裂感,将梁柱两边处理成一个整体。
2、旋转楼梯
楼梯扶手采用内外双层的设计,咖啡色的外层衬着白色的内层,使楼梯看起来像丝滑的巧克力扭转着倾斜落地。楼梯间的天花更以圆塑形,装饰了镜面使楼梯间看起来更高,再装饰一盏灯笼状水晶吊灯,实在是华丽至极。
-
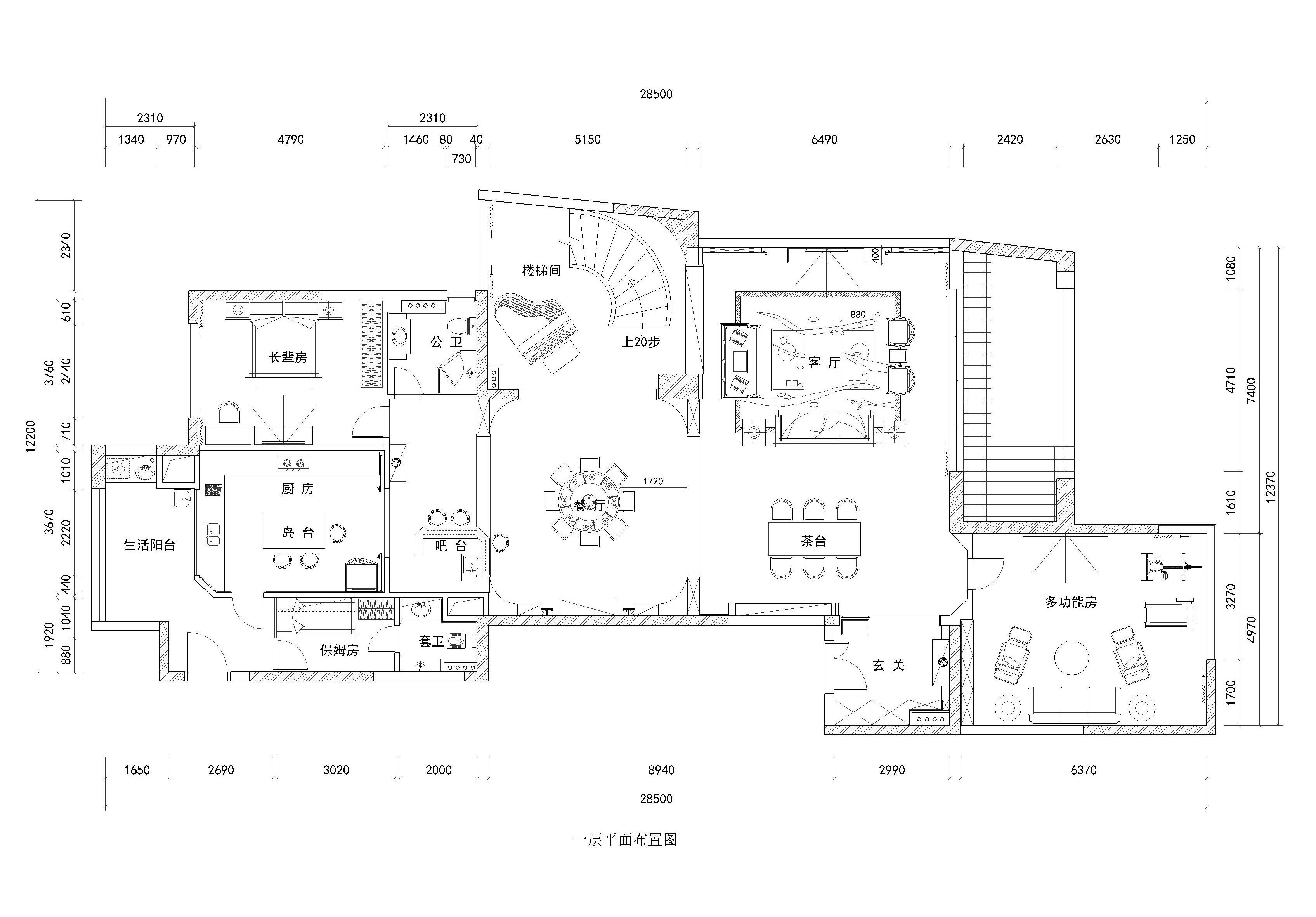
空间布局:自玄关处转左是一排丰富的空间,此处若不花点心思处理,很容易装修得混乱。设计师在此逐一设计出品茶区、餐厅、品酒区、厨房和钢琴区,区与区之间彼此有所划分又彼此衔接,构成一个有区隔又完整的空间。
-
设计选材:1、镜子化解区间的高矮落差
玄关处的空间低矮,仅高2.3米,下一步踏入的客厅则高达7米,如何处理高度落差如此悬殊的空间?设计师用镜子化解两个区间在视觉上形成的高矮悬殊感。镜面装饰玄关吊顶,通透的镜子带来的视觉延伸感,既消弭了低矮空间的压抑,又化解了高矮悬殊的落差感。
2、独创设计省料又省钱
二楼阅读区与客厅交汇处,通常此处会使用很贵的材料进行装饰,设计师驾驭他的设计灵感,用实木和水晶装饰独创设计了两个富有欣赏价值的艺术装置,省下了不少钱。
-
用户体验:业主评价:房子很耐看,住进去很舒服,把我想要的家的样子设计出来了。
随后,该业主为设计师介绍了不少客户。
7米高的中空大厅,具备打造成大气空间的潜质,用山峰元素进行创意设计。高挑阔大的主墙设计了一副写意的壁画,山峰云海,大气磅礴,意境深远。
客厅与二楼阅读区的交界处,设计师攫取灵感,将实木条以有韵律的节奏进行排列,木条上以“点”的形式装不锈钢,不锈钢“点”的排列呈现出山峰的模样,形成一组融入木色空间的艺术装置。
“山峰”还跨过客厅宽大的梁柱,在另一组水晶艺术装置中得以延续,加上富有艺术感的打灯效果,形成厅中另一组欣赏价值极高的艺术装置。 “山峰”与实木在两组艺术装置中的并用,还化解了宽大梁柱造成的割裂感,将梁柱两边处理成一个整体。
沙发旁的木隔断,隔开了客厅与楼梯间。隔断采用格子虚实相间的设计手法,有的格子空出来,摆放书或装饰品,有的格子装上了白门,收纳杂物。数个无门把手的白门呈山峰状排列,使隔断赏心悦目,有着中式的美感与趣意。
厅中央的大型水晶灯呈灯笼状,古典而闪耀。天花采用精致的不锈钢框出边线,中间用牛皮纸色的艺术漆刷顶,搭配垂吊的灯笼状水晶灯,整个天花看起来恰似一幅中国画。
玄关处,镜子的使用,既消弭了玄关空间低矮的压抑感,又化解了玄关与客厅之间高矮落差大的悬殊感。
自玄关处转左是一排丰富的空间,逐一设计出品茶区、餐厅、品酒区、厨房和钢琴区,区与区之间彼此有所划分又彼此衔接。
餐厅背景墙刻意塑造成弧形,墙面装饰了屋主收藏的荷花瓷板画,地面与天花的装饰也以圆塑形,圆中的花朵水晶吊灯衬着圆餐桌与带圆形图案的地面砖,将餐厅营造成圆润美好的用餐空间。
移步上楼,会被一道旋转楼梯惊艳到。 楼梯扶手采用内外双层的设计,咖啡色的外层衬着白色的内层,使楼梯看起来像丝滑的巧克力扭转着倾斜落地。
楼梯间的天花更以圆塑形,装饰了镜面使楼梯间看起来更高,再装饰一盏灯笼状水晶吊灯,华丽毕现。
无论从哪个角度看,旋转楼梯都很美。
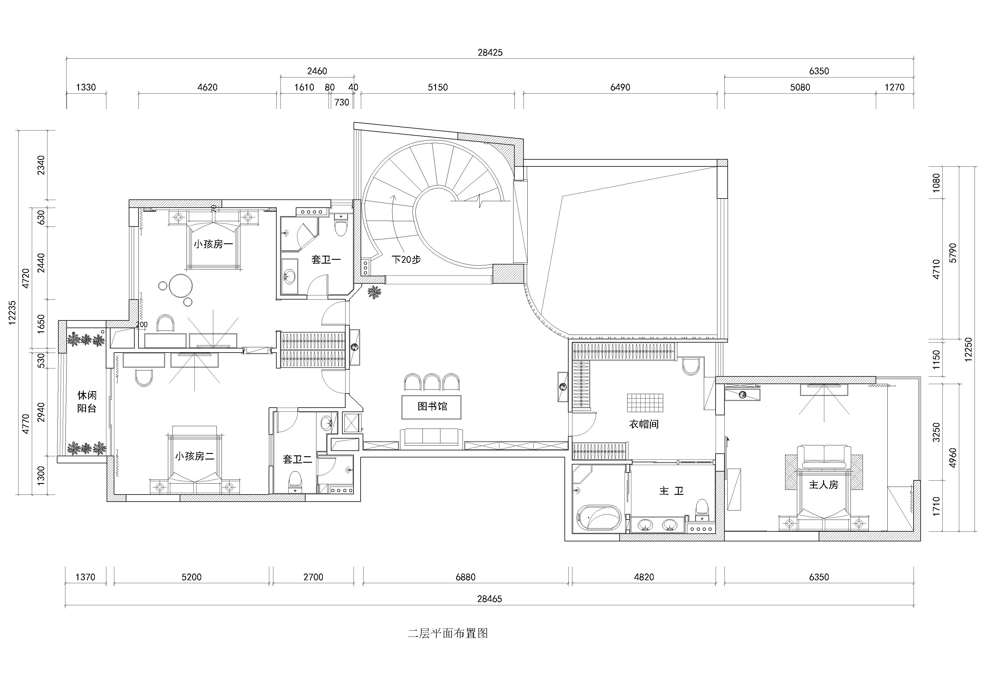
沿楼梯旋转而上,是一个敞开式的大型阅读区。它以覆了整面墙的书柜为背景,书柜延续了客厅隔断的设计风格,木格与白格相间,美观而简洁。书柜前陈设了官帽椅、书案、长凳,习字作画、聊天下棋、办公读书皆宜。
阅读区以玻璃扶栏为界,紧挨着客厅,两个空间隔而不断。扶栏靠墙处,简洁的不锈钢饰线丰富了墙面设计,摆放两张圈椅,此处又是一处看书歇息的好地方。
主卧以米色为主色调,中式风格的天花,背景墙用木饰面与米色布艺软包装饰,再镶嵌深色镜面,将主卧设计得现代简约又不失中式美感。
二层平面布置图
一层平面布置图
0
0

认证 · 让您身份增值