适中


- 项目类型:休闲娱乐
- 项目地点:中山市
- 建筑面积:400.0000㎡
- 项目造价:300.0000万元
- 参与设计师:王彪红
- 竣工时间:2018-02-12
- 设计机构:艺璞设计
-
项目定位:设计师所在的中山是一个有很多具有岭南风格老建筑的城市。这些老房子有时代的印记,承载了过去的信息与文化,有时候,我们需要保留这些有地方建筑文化特色的东西,才会构筑这个城市的温度,还有他的回忆,这些都是些厚重的东西。如果拆掉这些老房子,就没有这些记忆了。
作为设计师,在这个方面我们有发挥专业的空间。《适中》正是一个改造中山城中村的老房子的案例,一处由城中几幢民国旧宅改造而成的充满东方诗情画意的空间。其设计初衷是:老房子经过设计改造,也可以很优雅,很当代,不但适合现代人居住,而且可以住得很舒服,同时还要把传统的东西挖掘出来,呈现传统文化、传统建筑的风貌。
设计师本着“让身处其中的每个人都获得滋养”的初心,从中国古典建筑文化中汲取养分,运用“移步换景”、“引景入室”、“曲折回环”等多种手法,结合精湛的施工、软装与茶文化,将这里打造成建筑与自然融合、人与天地相往来的美好所在。
-
空间意境:1、门窗的画框效应:
月亮窗、天窗、方窗、落地窗……设计师将室内的门窗,特别是临庭院而建的房间的门窗进行精心设计,这些门窗如画框一般,将庭院中、室外的景色巧妙地框入室内,让坐在室内的人如同看画一般,室外的风景也成了室内最美的装饰。其中玄关的月亮窗安装了一层透光感朦胧的薄膜,让人看得见但又看不清室内,吸引人移步探幽。
2、三水归堂:
院子里用一个U形的游廊衔接池子两边的房子,下雨的时候,雨水从游廊三面的灰瓦上流下来,构成了徽派建筑中“三水归堂”的景象。其实,当时的设计就是想,在这个游廊的小亭子里可以说书、唱小曲、弹琴什么的,坐在庭院周围几个房子里的人都可以看到或听到,有这么一种诗情画意。
3、天空之境:
在后院的茶室有一堵落地玻璃墙,透过玻璃墙就能看到墙下的花木小景,还有院子里的草木花鸟,很舒服。其实这堵墙原来要靠外一些,茶室里的空间更大些,但是这样子的话,从后院的那个后门进来,会显得很狭窄,设计师干脆把墙打掉,将墙体内移装上三角落地玻璃,墙下种花。这样做,从后门进来的空间就更大了,更有意思的是,这个三角形的落地玻璃还能映照出天空的云彩、霞光,大家喜称它为“天空之镜”。
-
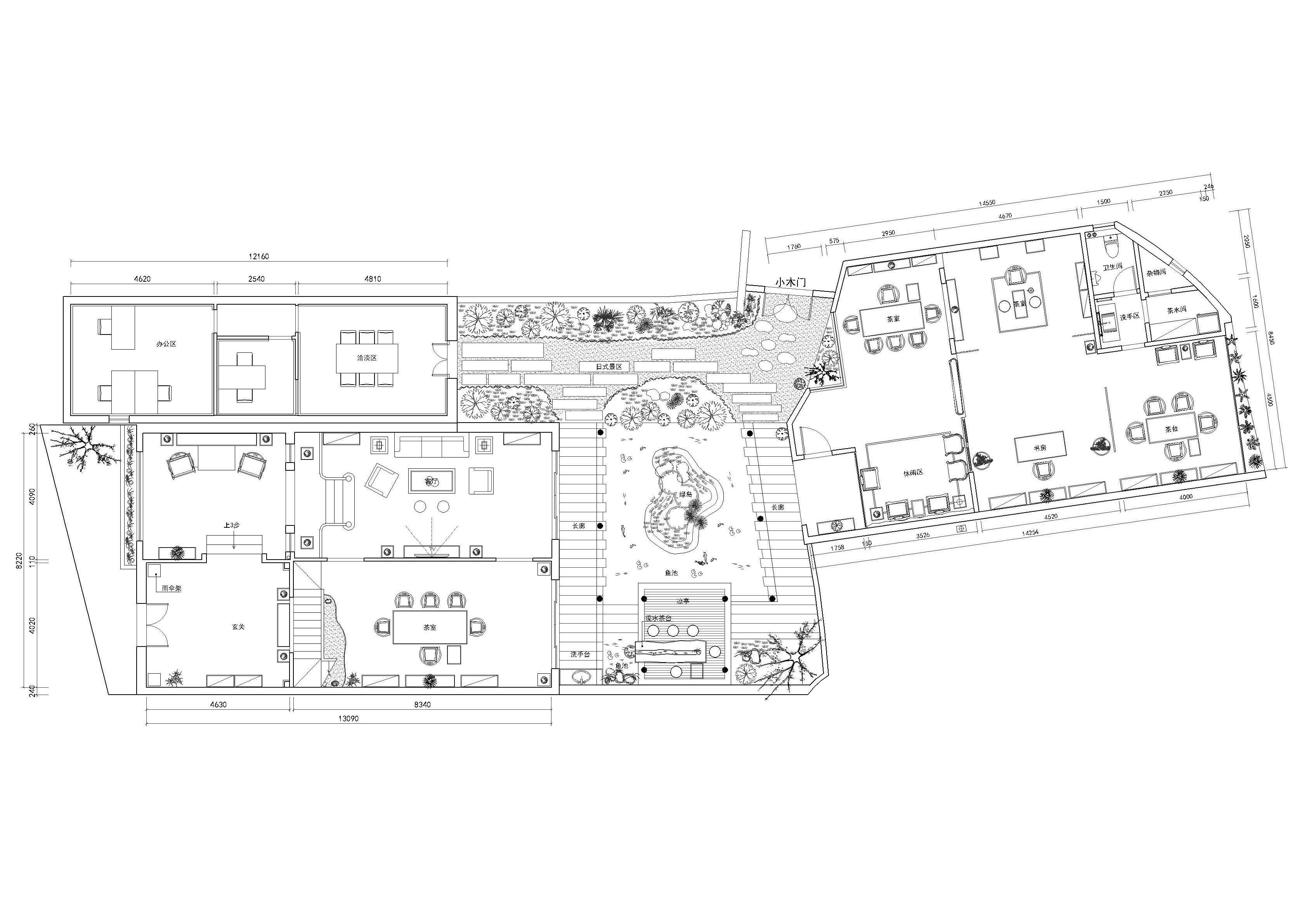
空间布局:1、别有洞天
从外面看这处建筑很小,推开进去却别有洞天,里边的空间很大。
2、曲径通幽
透过月亮窗上的玻璃,隐约可见窗内有茶室。要去茶室,没有直行路线,你得绕着走。自玄关右转拾三阶而下至中堂,再拾四阶而下到客厅,左转才是茶室。原本,三溪村民国旧宅的行进路线并非这般迂回,而采用一列房间纵向排开的布局,人直进直出,设计师采用曲折回环的手法,打破旧宅原有布局,将行走动线由直线改为曲线,营造“曲径通幽处”的雅趣,增加了空间互动感。
3、移步换景
人至茶室,才发现里边还藏着一处芳菲庭院。立于庭院,眼前更是豁然开朗,院中有池、有鱼、有石径、有花草、有游廊,能望得见墙外的斑驳旧宅,以及屋檐外的天空。庭院的另一边也连着几间房屋,堪称后院,用做展示厅、书房,那里更是静谧的所在。
4、向中央汇聚
“适中”形成以庭院为中心的布局,庭院又以一池碧水为中心,碧水衔接着两边的房屋;庭院两旁的房屋内各设了台阶,台阶使建筑形成由高处而下向碧水趋近、汇聚的走势,这样设计的效果不仅使室内空间有高低错落之感,更将这个建筑打造得藏风又聚气。人坐在后院品茶谈天,受益于凝聚于此的气息的滋养,说话的声音都要响亮几分。
-
设计选材:使用从旧货市场淘来的木板装饰玄关、茶室、客厅的屋顶,木板用旧的感觉与民国老宅的调性相当吻合,有一种历史感,却历久弥新。
-
用户体验:来到这个空间的人都觉得很舒服,喜欢到处走走,看风景,品品茶,喂喂鱼,悠游自得。
得益于整个空间的设计布局,以及将自然景观引入室内,使得这里藏风聚气的效果显著,让人更容易安静,沉下心来。
更美妙的是,整个庭院的设计,使室内从早到晚,从春到秋所呈现的景致不一样,在不同时段来到适中,它呈现的风貌是不一样的。
不少来到这里的人说,适中有苏州园林的感觉。还有人说,它实现了与自然对话,与天地精神相往来,是一所有生命力的房子。
得益于精湛的设计,适中还吸引了不少人参观。其中,中山一个有很多老建筑的村庄(曹边村)的村书记来这里考察,借鉴改造老建筑的方法。
在喧闹的现代都市,有一个酝酿了多年的人居梦想。 那里气质风雅,恬静悠然,笔墨清润、意境幽远,如同城中桃源,实现了人与自然的通达与对话。
玄关处的月亮窗,仿中式建筑中的月亮门而设计,窗中贴了一层隐约透光的薄膜。它是温婉的借景、透光装置,在此实现了若隐若现、透光幽静、通达内外的效果。 透过月亮窗上的玻璃,隐约可见窗内有茶室,朦胧之中,看得见里边的人,又看不太清晰,吸引人移步探幽。
想去茶室,没有直行路线。 设计打破了旧宅原有的直行路线,将行走动线改为曲线,营造“曲径通幽处”的雅趣,增加了空间互动感。
位居中央的院子,以一池碧水为主景,水中有小岛,岛中有山松,松下碧草如茵。碧水侧畔,流水潺潺而下注入池中,一群锦鲤悠游自在。方寸池水,自成格局,内涵丰富。
衔接两侧房屋的游廊依水而建,曲折逶迤,古朴典雅。 庭院另一边保留了旧宅原有的低矮围墙,不同于游廊三面聚合、遮蔽的空间,这里视野开阔,可以眺望得很远。一墙之隔,里应外合,构成新建筑与旧宅的对话,自然景观与人文景观的交互。
一方面借用门、窗、楼梯等设计融汇贯通室内外的自然与人文景观,另一方面仔细揣摩室内的每一个设计细节,务必使置身其间的人获得感官与心灵上的滋养。
白墙与灰色的复古地板,搭配红木家私,简洁而凝练。
精心挑选的软装布置,充盈着东方气韵,颐养精神。
茶室中,木色、灰色与白色构建的立体空间,还加入了设计师的浪漫构想:洁白的花形灯如同一朵漂浮在茶室上空的云,柔软而飘逸;截取的紫光檀木悬挂在墙壁上,如同河海中遨游的大鱼。
后院的展厅宽而敞亮,原来它由一排低矮的出租屋改造而成,去掉出租屋原有的斜顶,保留了外围墙体,再将墙身增高,令室内空间开阔。
闲步展厅,只见白墙、灰地,外加圆形或方形的实木隔断,光影透过隔断打在地上,整个展厅素雅、温暖、高贵,富有极强的可塑性和包容性。 展厅屋顶上开辟了一处天窗,可观飞雨、赏蓝天、仰望星空,自然与人文在此交汇,很是浪漫。
后院最里边的一处房间是幽静、隐秘的所在,设计师灵感一现,将此处的一堵外墙移除,装上落地玻璃窗,窗外种上一排翠竹。
透过疏朗的竹枝与竹帘,隐约可见屋外灰白的民国旧宅,不觉心生“幽然见邻家”的美好。
适中平面图

