750㎡极简豪宅,兼顾细节与气质的家



- 项目类型:别墅
- 项目地点:北京市
- 建筑面积:750.0000㎡
- 项目造价:700.0000万元
- 主案设计师: 侴树禹
- 竣工时间:2020-09-21
- 设计机构:青廷设计
-
项目定位:本案为纯私宅居住项目
强调空间的联动关系
创造一种有所期许的空间新鲜感。 -
空间意境:环境创新点的运用
主要运用于三维空间的立体构成的同时追求二维空间的一致性是本案的着眼创新思路。 -
空间布局:特殊强调
空间功能独立性
空间使用互动性
空间感受协调性 -
设计选材:材料大量使用当下的工业化产品,有效的降低了碳的排放量
-
用户体验:回家里,感觉这才是属于自己的房子,内容不多但很充实。
东方极简美学 这栋上下5层、近750㎡的私宅,结构宏伟,内部线条明朗,色彩透露出亲和友善。凝视墙面的大理石纹理、松树的角度、台阶的高度,感受设计师用造物的精神去打造一个空间。将六口人的舒适宜居建立在高度的秩序感中,这种精心的编排设计,为居住集体创造出一种自由感和空间尺度,美从细节中浮现出来,剩下的只需要适度的装饰即可。
阿兰·德波顿说:“建筑体现出来的秩序之所以能吸引我们,同样也是因为它正是过于复杂的情感的反面。我们欢迎那些能够给我们规律性和可预测性感觉的人造环境,是因为我们的精神可以倚靠它得到安置和憩息。”
外部世界的喧嚣从此处开始隔绝,一种极简静默的气质从门厅开始往室内蔓延。隔断墙兼顾了入户的私密性和空间的流动性,圆形取景框隐约的视觉变化为空间增添了趣味。纯白色的柜体、灰色的毛毡换鞋区与木质的隔断背景营造出一个充满东方极简美学的玄关区。
一棵风姿绰约的松下,白色的大理石底座向外延伸,放置纯白的山石雕塑,“君不见拂云百丈青松柯,纵使秋风无奈何”,“何当凌云霄,直上数千尺”,高洁之姿传达出主人的人生态度。
秩序带来自由 从门厅进入便是开放式布局,厨房、餐厅和会客厅位于同一侧动线上。设计在于表达一种褪去浮华后重新抒写日常的力量,在冷峻中表达温暖,克制中深藏细节,简洁而不超脱于常,直白的太阳光投射出对生活的热情。
墙面地面线条接缝、大理石的拼花,在设计阶段全部考虑妥当,才能呈现出极度舒适的视觉效果。大面积的大理石背景、木质护墙和柜体、地毯的运用,冷暖碰撞,以较大的体块承载空间的纯粹和简练,流露出一种质朴和自然的气息。设计将装饰尽可能简化,更大的空间还予居住者,让人的行为、情感表达、精神世界丰富空间的内在。
超越空间与时间 地下二层在采光井位置的挑高,带来了良好的采光和透气性,丰富了空间的秩序,向上的延伸也带来了视觉的扩张,豁然开朗,让这里不再是阴暗冷峻的地下空间。黑色的线条廓出空间的边界,而大面积留白的墙面轻盈向上,带着居住者的思绪缥缈驰骋,张弛之间形成戏剧冲突。
暖木色、清新的绿色与温暖的壁炉共同传递出空间的温度。设计师留心去传递墙面、台阶的拼接纹理,接缝的位置,每一颗钉的准确,品质蕴藏于经典的设计中,让空间拥有了超越于日常的意义。
设计师特别设计的吧台台面由玉石、金属和大理石结合而成,呈现出空间独特的个性,酒柜陈列架壁纸在灯光的照射下,肌理清晰可见。细腻的感知与雅致豪奢相融合,为感官带来更深层次的体验,在精细的表现中,美浮现出来,这是属于居住者的空间密码。
雅致的中式情怀 围绕着“雅致的中式情怀”,设计师将人的休闲空间,例如茶室、卧室,以诗意的东方文化奠定空间气质。将极简的中式审美、诗意的文化沉淀和风雅的气韵相融合,完成人对于空间内在精神的需求,体验人与空间的和谐对话,在具有哲思的氛围中获得待人接物的智慧。
温润的木质台阶凌空而起插入墙面,拾级而上便是主人的茶室,开放性设计让整个地下空间更加开阔,互动性更强,多维度层层递进,升华了居住体验,呈现出一种利落又灵动的特性。
茶室的木质背景墙与黑色石材结合,条纹造型增强空间的纵深感。天圆地方,透过圆窗,诗意情境,灯光照射仿佛看到大自然流转。一席茶桌,一把明式圈椅,玻璃茶盏,红润的茶汤让人回归内心的静谧,达到淡泊致远的人生境界。
卧室空间简约的中式家具,以橙色增强空间的活力,地毯如水墨晕染,独特符号意义的床头柜,点出了空间的高雅气质,沉浸于文化氛围中,一种“采菊东篱下,悠然见南山”的心境让卧室的休憩时光格外放松。
活得适意、逍遥、自由,是庄子生命哲学的终极目的追求。而在这种对于人生的超高追求之中,空间传递着人的气质,寄予着美好的期望。一个精神上颇具风雅气质,审美上简约而内敛,细节上精准而隐蔽的空间,才能融合为一个承载生活和情感的家。
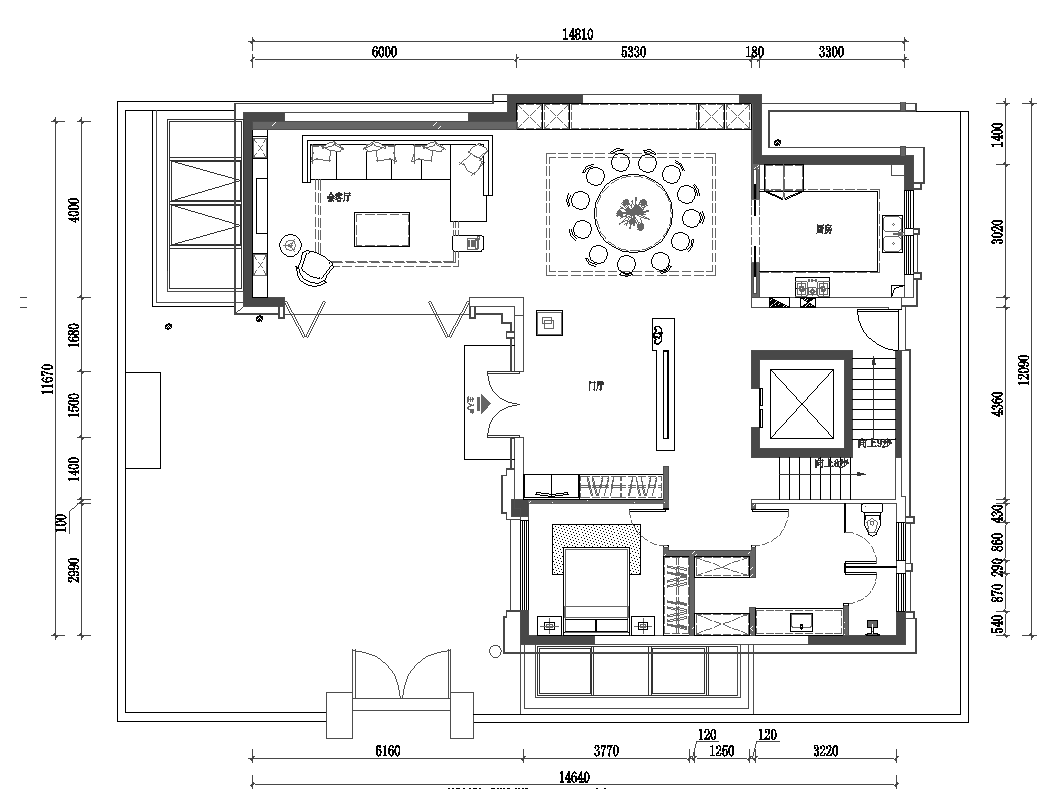
地上一层
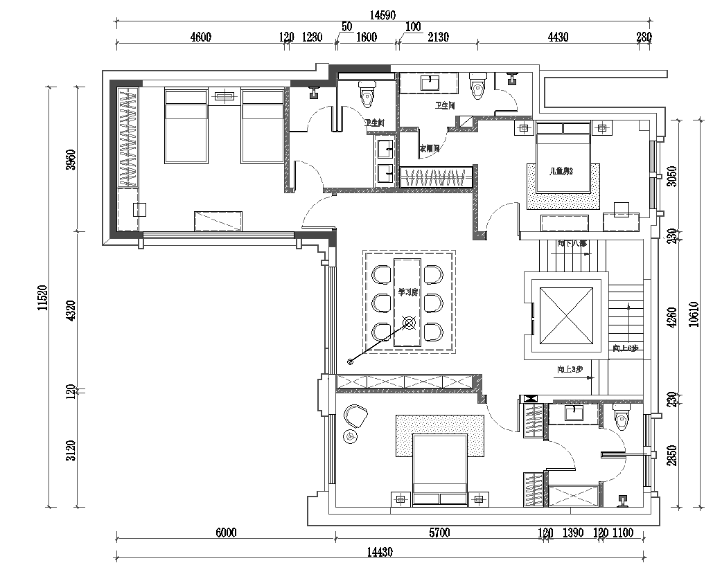
地上二层
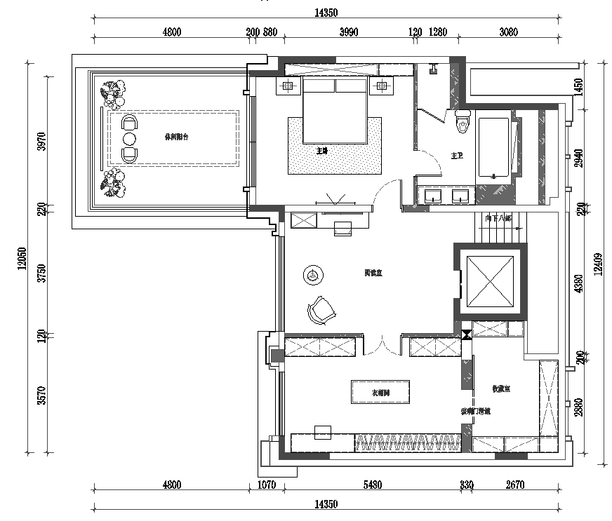
地上三层
地下一层
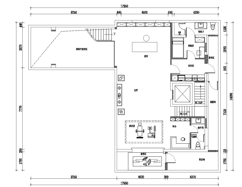
地下二层

