四维空间



作品说明
- 项目类型:办公
- 项目地点:福州市
- 建筑面积:220.0000㎡
- 项目造价:45.0000万元
- 主案设计师: 张国明、陈阳、陈魁
- 参与设计师:林锋、朱俊瑞
- 竣工时间:2020-05-01
- 设计机构:福建四维联展装饰设计工程有限公司
-
项目定位:我们重新审视办公空间开放式区域和与隔断组成的特定分割给空间带来的不同体验感,并用建筑的思维去梳理与人互动沟通的关系。我们设计灵感来自于为了不让办公空间受限于传统氛围里,设计团队想尝试重新定义办公空间。
-
空间意境:整体以大地色系为主,用哑光灰色作为空间的点睛之笔,最终呈现出目前的设计。镜面的运用弱化了结构柱体,多维度成像特质既补充了线条的框景效果,也丰富了视觉层次,再结合绿色植物的摆放让整个办公空间富于生机。在空间的变换中有些区域是采用了解构主义、构成交错的形式,同时还将多种物质手段运用到空间中,最后通过设计整合在一起,这就使得空间有了自身的活跃感和流通性,人们穿梭在这种变化多样的抽象世界里更有了探索性,人与空间交融彼此,深深触动。
-
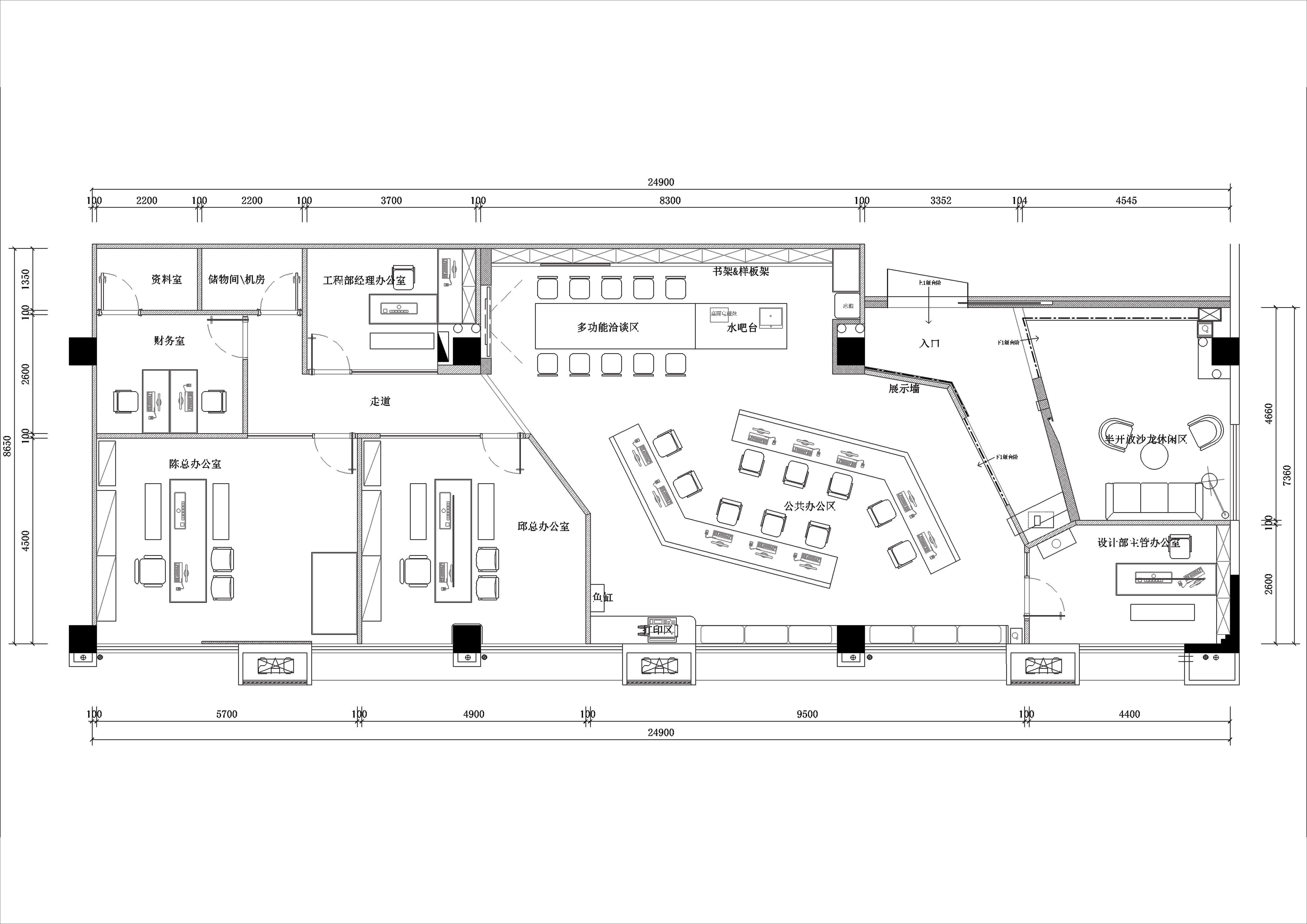
空间布局:空间在布局上摒弃以往大门面的设计思路,将入口设计一个斜切式入口,取消接待前台设置,将入口与内部应用一个实墙区隔开空间,在形象墙中间打开一个小窗口,将内外的动态通过小窗户隐隐约约的展现出来。有种曲径通幽,以小见大,张扬且含蓄,并将公司名称用投影打光的方式呈现在白墙墙。入到空间后呈现在眼前的是一个漏斗形的通道,在通道镜头用几个失重体块做构成。通道的左边是一间对外的接待室,再往内走右边就是一个大的开放办公区,有如桃花源记的“山有小口,仿佛若有光。便舍船,从口入。初极狭,才通人。复行数十步,豁然开朗。”而后到达公
-
设计选材:整个空间我们大面积以白色乳胶漆为主,地面采用了水磨石地砖满铺。为了加强空间的独立性和视觉识别性,我们摒弃了实墙对空间界定和划分的传统做法,尝试在光影之间使得人对空间维度的认知与认同愈加多元。内嵌式线型灯带作为现代材料介入地面、顶面与墙面,隐性限定分割空间的同时,在纵深上形成规则的框景,聚焦视线。水吧区我们应用了镜面不锈钢板,以及亚克力发光层板。镜面作为空间的另一个界定分割材质,在灯光的渲染下,不断映射灯带所形成的线条,无限循环,折射出丰富的空间层次。
-
用户体验:好的设计是具有普遍性的,它与人有所共鸣并且让他们感到舒适。项目完工后无论是客户还是员工都能深深的感受到空间带给我们的魅力。

