纳兰家


作品说明
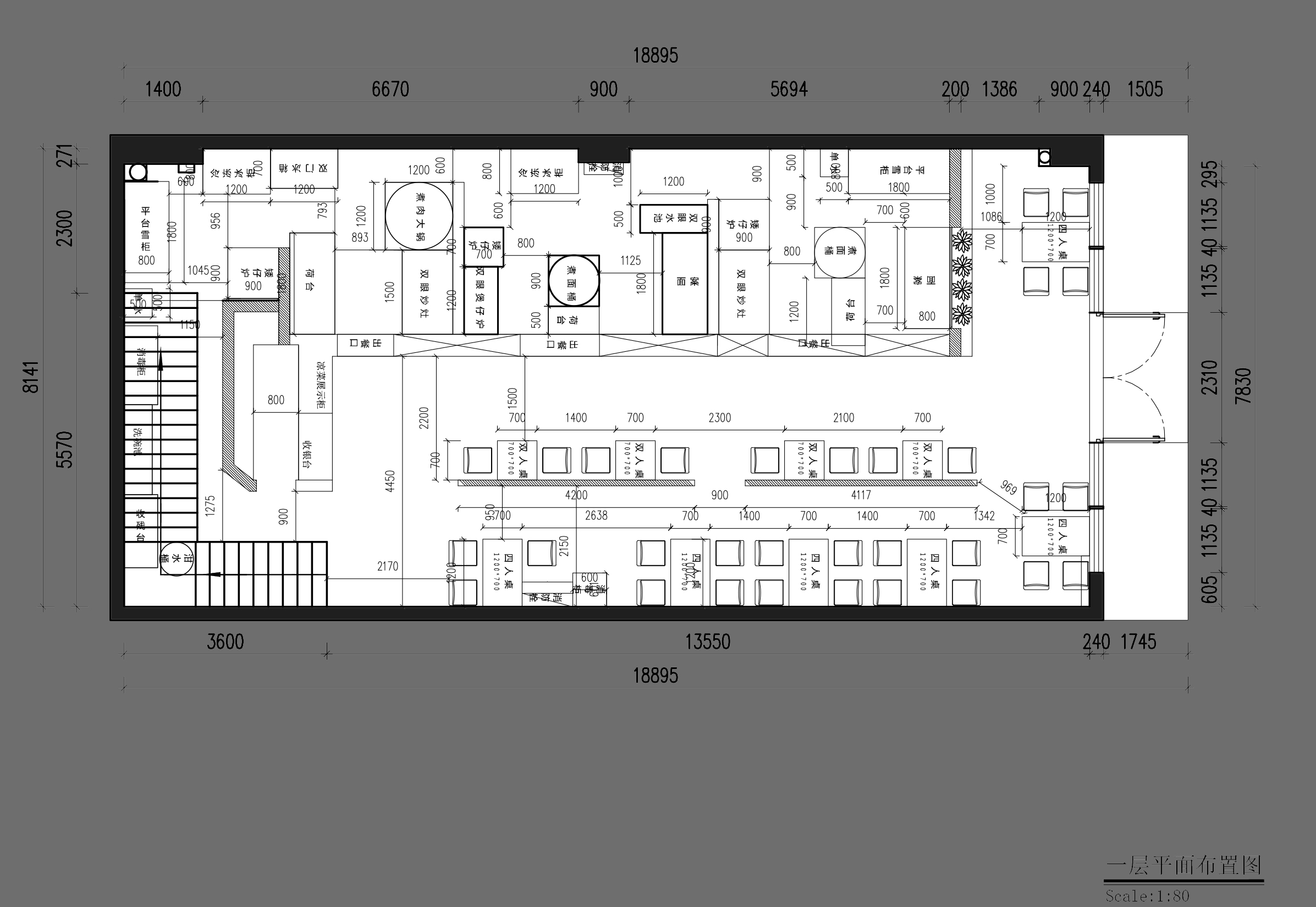
- 项目类型:餐饮
- 项目地点:银川市
- 建筑面积:310.0000㎡
- 项目造价:38.0000万元
- 主案设计师: 唐凡琦
- 竣工时间:2020-04-15
- 设计机构:灰度装饰设计工程有限公司
-
项目定位:此店主营清真美食,推开纳兰家的大门,入眼便是明亮柔和绿与白。象征着绿洲与白月光为主色调,让客人即刻被沙漠绿洲般温柔的氛围包裹。
-
空间意境:暖色与冷色互相中和,不同材质发生对话,丰富了空间的层次感。通过视角的变换以及不同弧形,渐变元素的应用,环状装置灯形成一个“回”字向上的灯光通过白色的户型吊顶逐渐漫反射,达到虚化过度,明亮柔和干净,强调主题的变化性和和谐感。
-
空间布局:因为墙面和顶面的分界线是模糊的,内外连接之处和深度的重要性从连续的弧形而得以体现。
-
设计选材:多处采用了自然木色作为基调,融入周边自然环境。为了反应清真美食的民族色彩元素应用的、白色的大块面水磨石纹理偏爱自然材质的现代时尚审美,设计强化了内部平坦与空白的空间。
-
用户体验:此店主营清真美食,推开纳兰家的大门,入眼便是明亮柔和绿与白。象征着绿洲与白月光为主色调,让客人即刻被沙漠绿洲般温柔的氛围包裹。

