黄山西递古村落度假区



作品说明
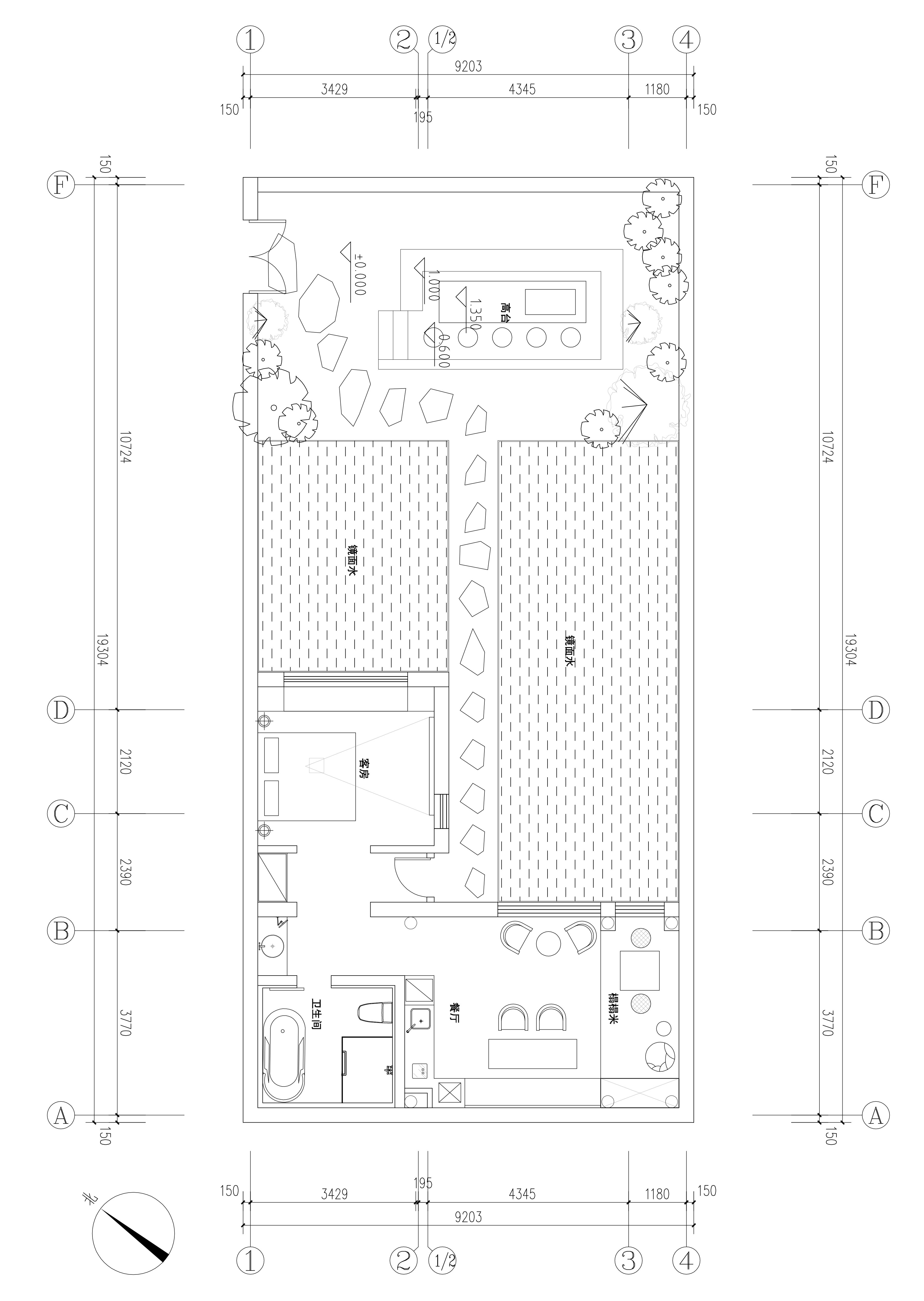
- 项目类型:休闲娱乐
- 项目地点:黄山市
- 建筑面积:1000.0000㎡
- 项目造价:500.0000万元
- 主案设计师: 韩帅
- 竣工时间:2020-05-01
- 设计机构:天津竹间美学环境艺术设计有限公司
-
项目定位:始终游走于传统与当代,打破与融合
所谓打破
打破在地性与外来性的界限
古建与新建的界限,自然与室内空间的界限
最后在做到融合,实际上徽州文化也并不是保守的
也是经过了千百年来的历史固守的东西,徽商还乡后带回的外来文化
才形成了我们现在所看到的东西
其实当初做西递这个设计
我们希望它是在自然当中生长出来的建筑
生长出来的一个院子
希望它根本看不到设计
是一个非常隐蓄,充满野趣的状态
那是中国园林所追求的真正状态 -
空间意境:空间与自然没有界限
鸟儿可以飞进来,风可以吹进来
我们坐在这个完全没有遮挡的空间里
听风、看雨、品茶......
和自然那种零距离的接触
其实这就是中国文人,还有从城市来度假的人
追求的那种至高的境界,和自然完全没有界限 -
空间布局:空间与自然没有界限
整个建筑是在自然当中生长出来的建筑 -
设计选材:材料来自于拆这栋房子的材料
碎石,老砖瓦,旧石板,镜钢,玻璃砖...
从嘉庆到如今材料年龄跨越二百年历史
新与旧的语言在后边溪展开对话
尤其是那备受争议的红色玻璃砖它既是中国的颜色,又是国际化的颜色对于徽州,那水墨中的一抹红更是不可或缺 -
用户体验:说到徽州
汤显祖说过:“一生痴绝处,无梦到徽州”
实际上他就像做了一场梦其实度假就是我们在做的一场梦一样出离一世,又入一世最终不过是南柯一梦......

