河北省石家庄市女子学院图书馆
2354
作品说明
- 项目类型:公共
- 项目地点:石家庄市
- 建筑面积:700.0000㎡
- 项目造价:1200000.0000万元
- 主案设计师: 张志明
- 参与设计师:张志明
- 竣工时间:2019-12-17
- 设计机构:悦喜装饰工程建筑有限公司
-
项目定位:图书馆设计理念的三尊重:
(一)尊重读者,(二)尊重图书,(三)尊重环境。 养成读书习惯
对图书的尊重和对环境的尊重,是尊重读者的具体化。尊重读者必须体现在卖场设计的全过程,方便读者优于方便管理。读者、图书、环境,其实是三位一体,不重视其中的任何一个环节,都是对书店整体布局的破坏。
我们提出“尊重图书”,必须“以书说话”,也就是说,在装修设计中,书架的设计充分需要考虑各个类别图书的特征,考虑不同区域、不同地段的特性。这些考虑,都是注重读者体验的设计,陈列的主体对空间的使用保持了高度的尊重 -
空间意境:以植物融于室内,在读书的同时.同样可以感受到植物带来的轻松愉悦.
结合“五四青年”时代学生的着装,采用女性服装特有的配色—蓝色,代表着女性的沉稳和庄重.同时也是五四精神所象征的
诚实的,进步的,积极的,自由的,平等的,创造的,美的,善的 ,和平的,相爱互助的,劳动而愉快的,全社会幸福的统一体现。
中国第一所女子学校,认为“女子为国民之母,欲陶冶健全国民,根本须提倡女教”。
-
空间布局:在空间布局上采用无死角的空间来增加实际使用面积.使整体空间更加灵活.让学生在图书馆放松的同时更加的有聚合力.
多处采用地台的方式,学生可以席地而坐.召开班级以及小组之间的讨论对话.
空间的区域划分增加更多的灵活性与功能性.体现出主次空间的叠加性. -
设计选材:选材采用低造价绿色环保材料.确保经济实用性的同时兼顾空间的延展性.
-
用户体验:整体图书馆准备争做全国学校最美图书馆.
实景拍摄
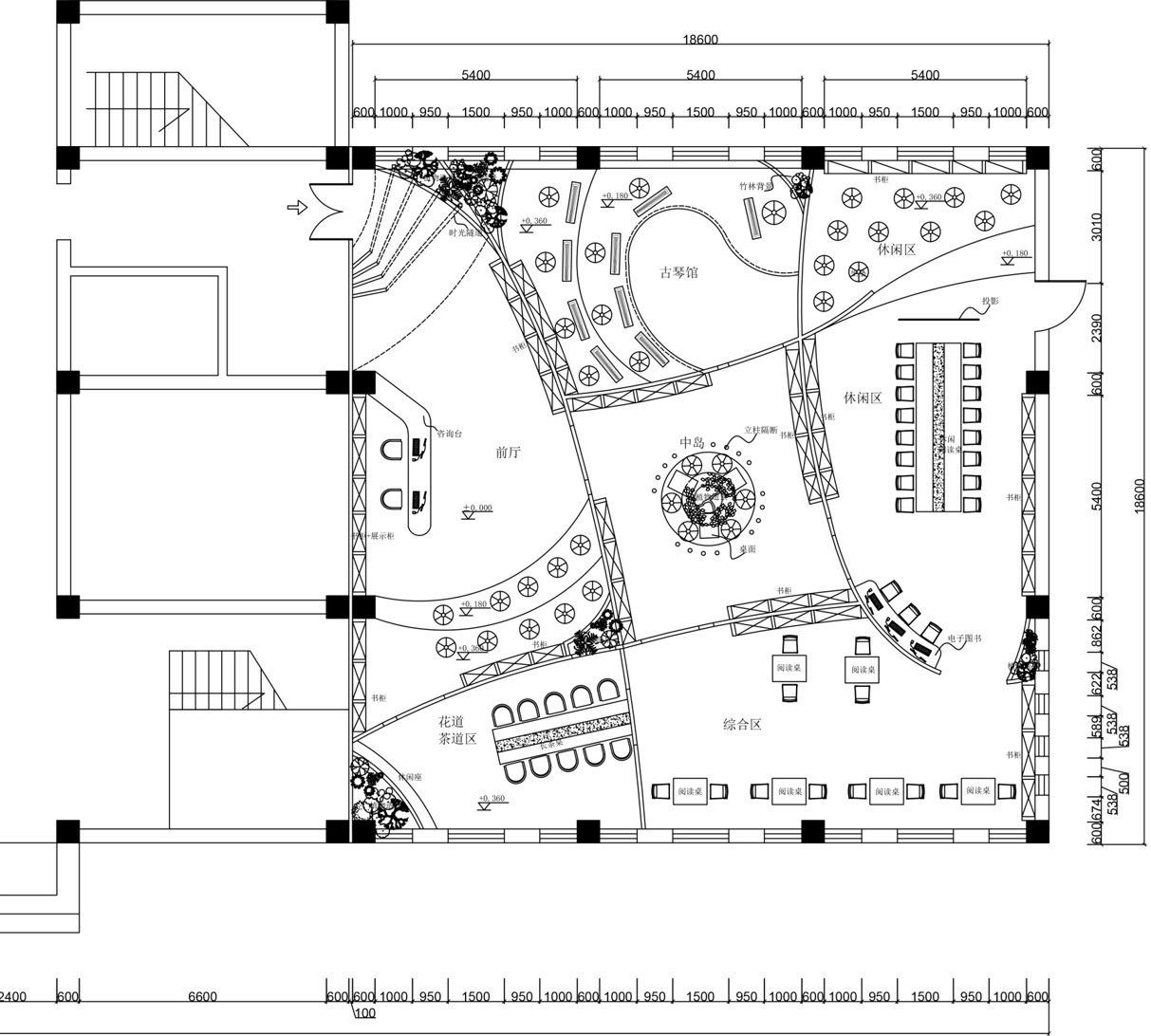
平面图
南图书馆(花蕊) 运用花蕊的原理 加强空间的运用面积 同时花蕊也代表着青春 和美好. 花蕊的完整性暗示了 无限、团结、和谐, 它们的曲线常常 被代表女性化 花蕊的绽放 正如同索取的知识
北图书馆(绽放) 盛开代表 花朵的绽放, 一个代表内涵 一个代表主张 基调的蓝色 蓝色非常纯净, 通常让人联想到 海洋、天空、水、 宇宙。 纯净的蓝色表现出 一种美丽、 冷静、理智、 安详与广阔。 同时也是五四青年 女性留给人们的印象
实景拍摄
实景拍摄
实景拍摄
实景拍摄
实景拍摄
实景拍摄
实景拍摄
实景拍摄
实景拍摄
实景拍摄
实景拍摄
实景拍摄
实景拍摄
实景拍摄
实景拍摄
实景拍摄
实景拍摄
实景拍摄
实景拍摄
实景拍摄
实景拍摄
整体规划平面图
南区图书馆平面图
北区图书馆平面图
0
0

认证 · 让您身份增值