-
项目定位:本案的设计理念和设计元素,均提取于敦煌莫高窟及其周边环境。以洞窟的形状和飞天丝带为元素。在视觉上营造出舞者舞姿的轻盈与曼妙,莫高窟周边黄土的质朴与厚重。中国人一向更喜欢曲径后的通幽处,喜欢渐入佳境后的热络时,平铺直叙的实景描绘总是显得不那么有趣.
-
空间意境:在整个色调的表达上,以黄土色为基调提取的饱和度及明度都不沉闷且显得更高级的主色调,以灰色、白色为辅。在整个空间的照明中,主要采用中性色温的聚光洗墙灯和白色灯带,光与影、形与质交相辉映、相映成趣。
-
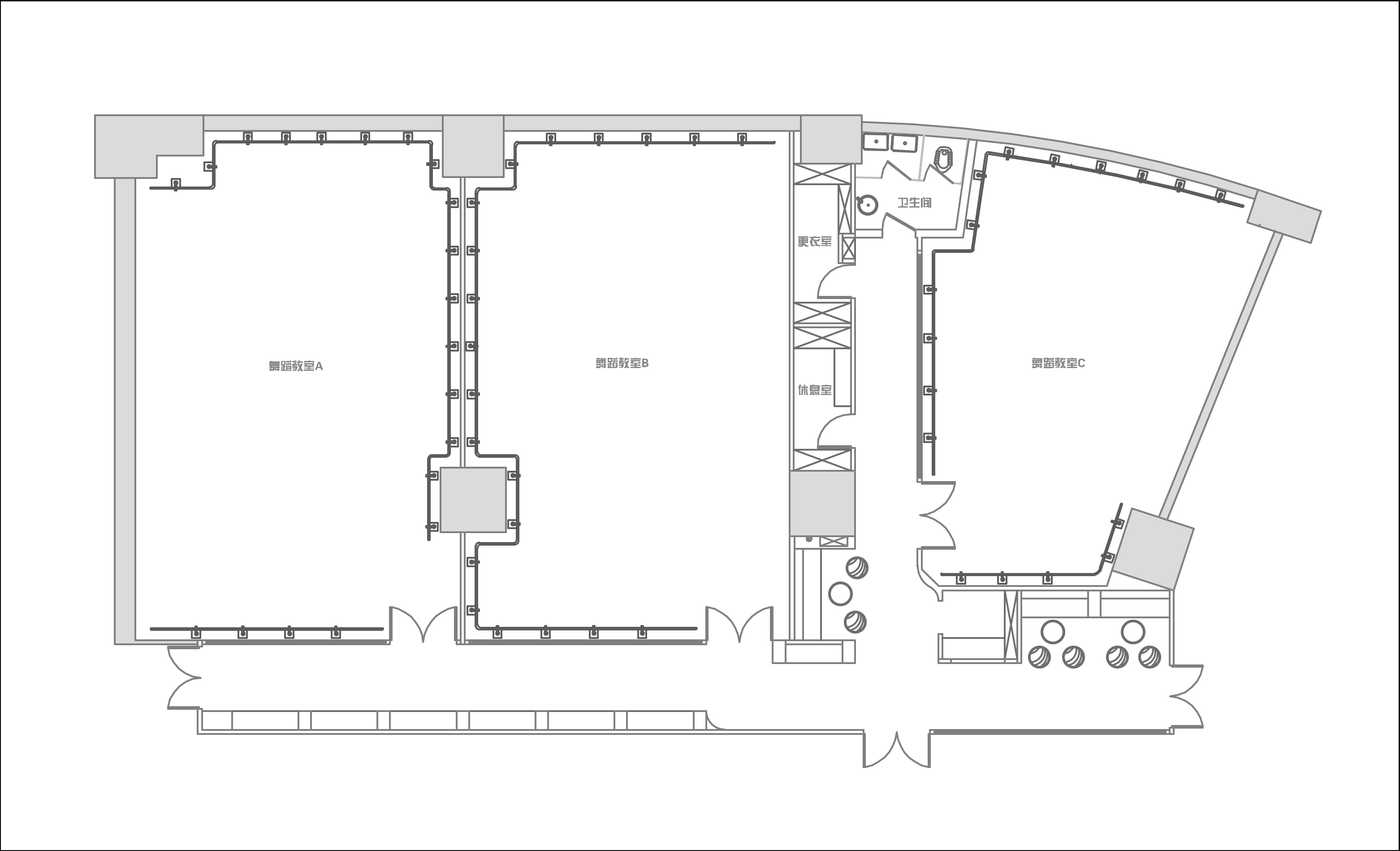
空间布局:在本案设计中以窟中窟的衔接方式巧妙的穿插衔接通道、家长等候区、教室、接待台等区域。
-
设计选材:公共空间部分,墙体素极,石膏、腻子、乳胶漆足矣,而在工艺上,以原始泥灰墙手法结合现代材料,既是一种延续和继承,又在材质上不会过于陈旧。空间中看不见的气韵是设计追问的本质所在,气所呈现的美以及韵所表达的质,需要物理化建构的结果去依附。建构的核心是理念,是材料,还有对造型、灯光,包括对自然的理解,对人活动的呵护,及对文化的回望。所以在整个公共空间,汲取洞窟造型加以韵律化设计,呈现的是经年积淀的文化底蕴。
在舞蹈教室的设计中,以木色墙板为基调,辅以灰色塑胶地板、白色及灰色乳胶漆,延续公共空间部分的简洁手法 -
用户体验:视觉上干净、舒适
空间整体给人一种轻松愉悦的感觉
公共空间1 墙体素极,石膏、腻子、乳胶漆足矣,而在工艺上,以原始泥灰墙手法结合现代材料,既是一种延续和继承,又在材质上不会过于陈旧。空间中看不见的气韵是设计追问的本质所在,气所呈现的美以及韵所表达的质,需要物理化建构的结果去依附。建构的核心是理念,是材料,还有对造型、灯光,包括对自然的理解,对人活动的呵护,及对文化的回望。所以在整个公共空间,汲取洞窟造型加以韵律化设计,呈现的是经年积淀的文化底蕴
公共空间2
公共空间3
公共空间4
公共空间5
公共空间6
公共空间7
公共空间8
公共空间9
公共空间10
公共空间11
舞蹈教室1 以木色墙板为基调,辅以灰色塑胶地板、白色及灰色乳胶漆,延续公共空间部分的简洁手法,本着归真、淳朴的理念营造一种温馨和谐的舞蹈环境。当艺术和空间在一起的时候,两者更像是音乐和舞者之间的关系。只会让彼此更丰富而有内容。
舞蹈教室2
卫生间
平面布置图

