金澜云邸



作品说明
- 项目类型:样板间/售楼处
- 项目地点:温州市
- 建筑面积:630.0000㎡
- 项目造价:173.0000万元
- 参与设计师:范张义 刘思本 周毓胜 王海涵 王莹莹 鲁瑞方
- 竣工时间:2020-09-30
- 设计机构:温州市成仕间装饰设计有限公司
-
项目定位:以材质在光影中的变化为基调,在空间交错的视觉艺术化表达的延展中,呈现出一个格调不凡的售楼空间,引领着观者穿过喧嚣都市的表象,达至都市生活的精神内核,享受当下的“艺术人居”。
-
空间意境:多处采用规则且立体的造型,在视觉错位上以借景的形式与光影形成鲜明的对比,错落有致,交相辉映。时而丰富,时而纯朴,一动一静之间,让浮躁的心沉静。错落、几何、叠嶂、交互、在视觉范围内行程多层次视觉空间。
-
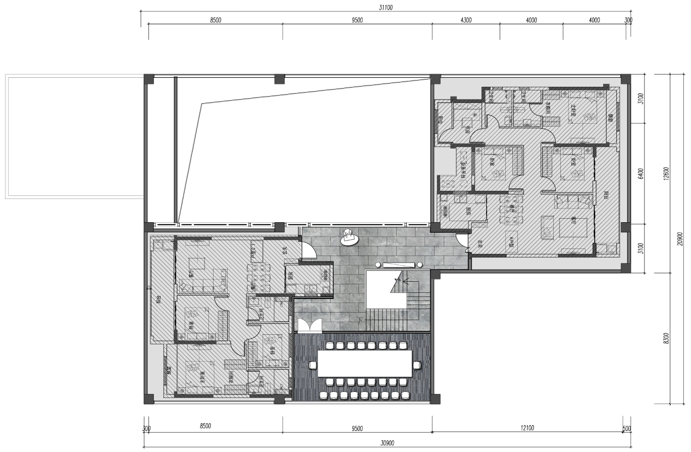
空间布局:最大化保证空间内部与自然光源的交融,以自然的体态去营造空间内部的时间流转,一步一景,每个空间融会贯通,以通透敞亮的形式最大化的展示空间的整体感与明朗的功能性。前后动线分属明确,以最宽敞的空间迎接最明亮的温度迎接未来的业主。
-
设计选材:造型中采用多规格铝型材做错落拼接,独立的铝方通个体与常规材料摩擦出不一样的视觉体验。多处造型底面影藏镜面处理,在细枝末节出增加空间的延伸通透感
-
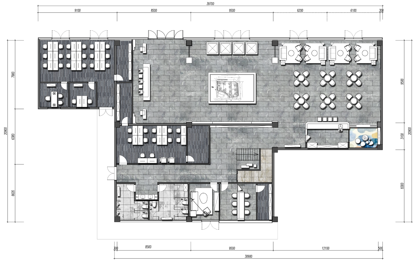
用户体验:宽敞明亮的接待厅直观大气,通透式的整体格局使得对售楼处的布局一目了然,位于二层的样板房可以就近且直观的让业主了解到未来新居的模样,向阳的空间作为洽谈区,在冬日里充满阳光的温度,舒适的空间在交谈中给与业主更多的沉浸式想象,这儿可以沉思,可以小谈。视野所及之处便是明亮的色彩,灵动的儿童活动区,传递着生机勃勃的律动,属于的儿童的欢声笑语伴随耳边。

