私宴


- 项目类型:休闲娱乐
- 项目地点:北京市
- 建筑面积:1800.0000㎡
- 项目造价:3000000.0000万元
- 主案设计师: 曲鹏远
- 参与设计师:李波
- 竣工时间:2018-03-20
- 设计机构:沐尚曲鹏远空间设计事务所
-
项目定位:在会所的设计中我们想传递则是心·境间的交互相生,正所谓相由心生,境随心转。素雅,质朴,净白,本是相生相守的物事,在空间中起承转合,若影若现。不管是元素的酝酿勾兑,还是色彩的斑斓起舞。形意相通,心心相印,相识在铅华洗净的一瞬间。会所分为休闲洽谈、餐饮接待、休闲娱乐、住宿等多个区域。设计师从中国传统艺术文化中提取相关元素,在会所内有舒适而有品味的空间交换创意点子,一个能融入休闲、饮食、娱乐、交流等连结艺术人文的绝佳场所,无论你是艺术大师或新人,都能在这里为这个城市激荡出新文化元素。
-
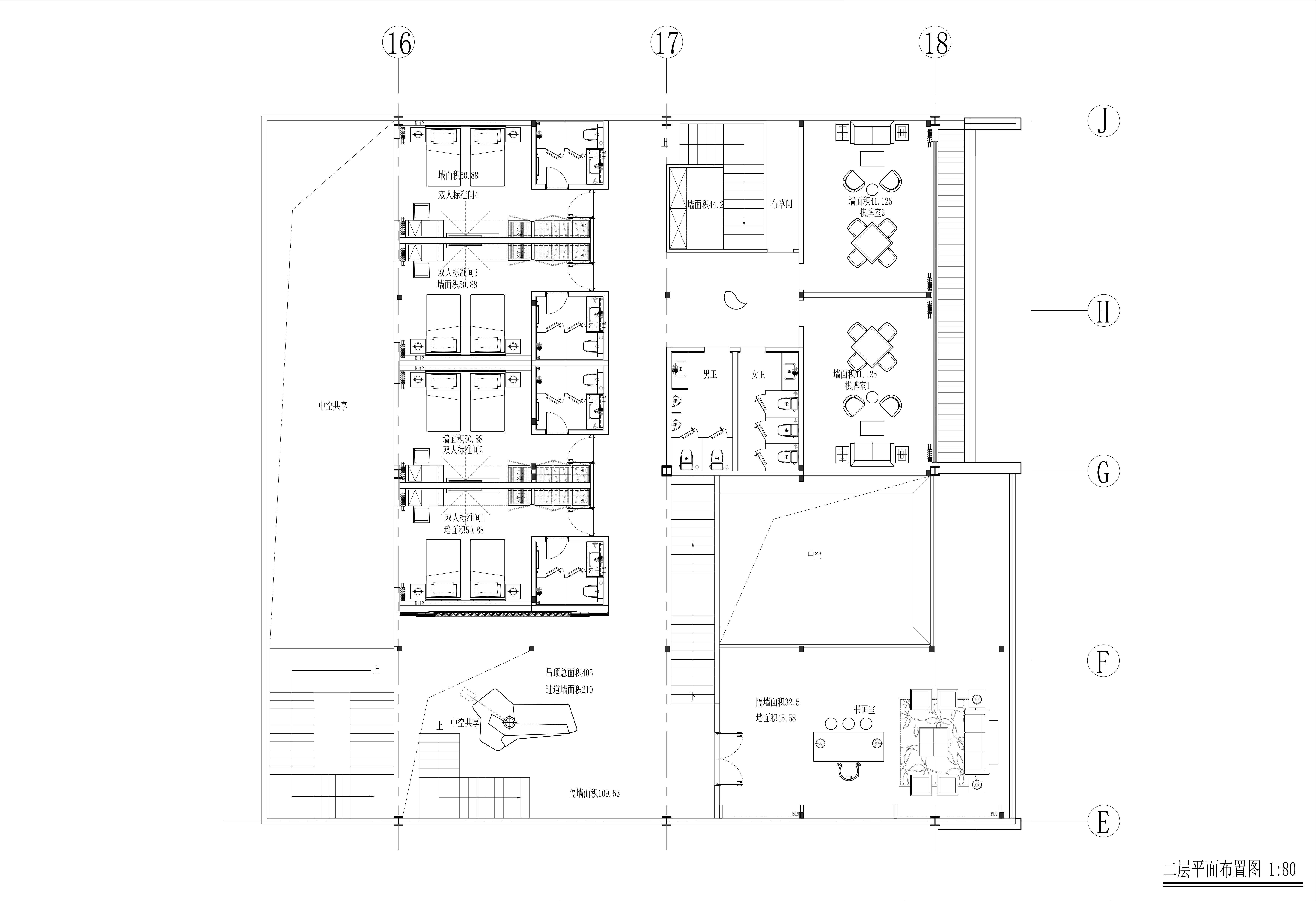
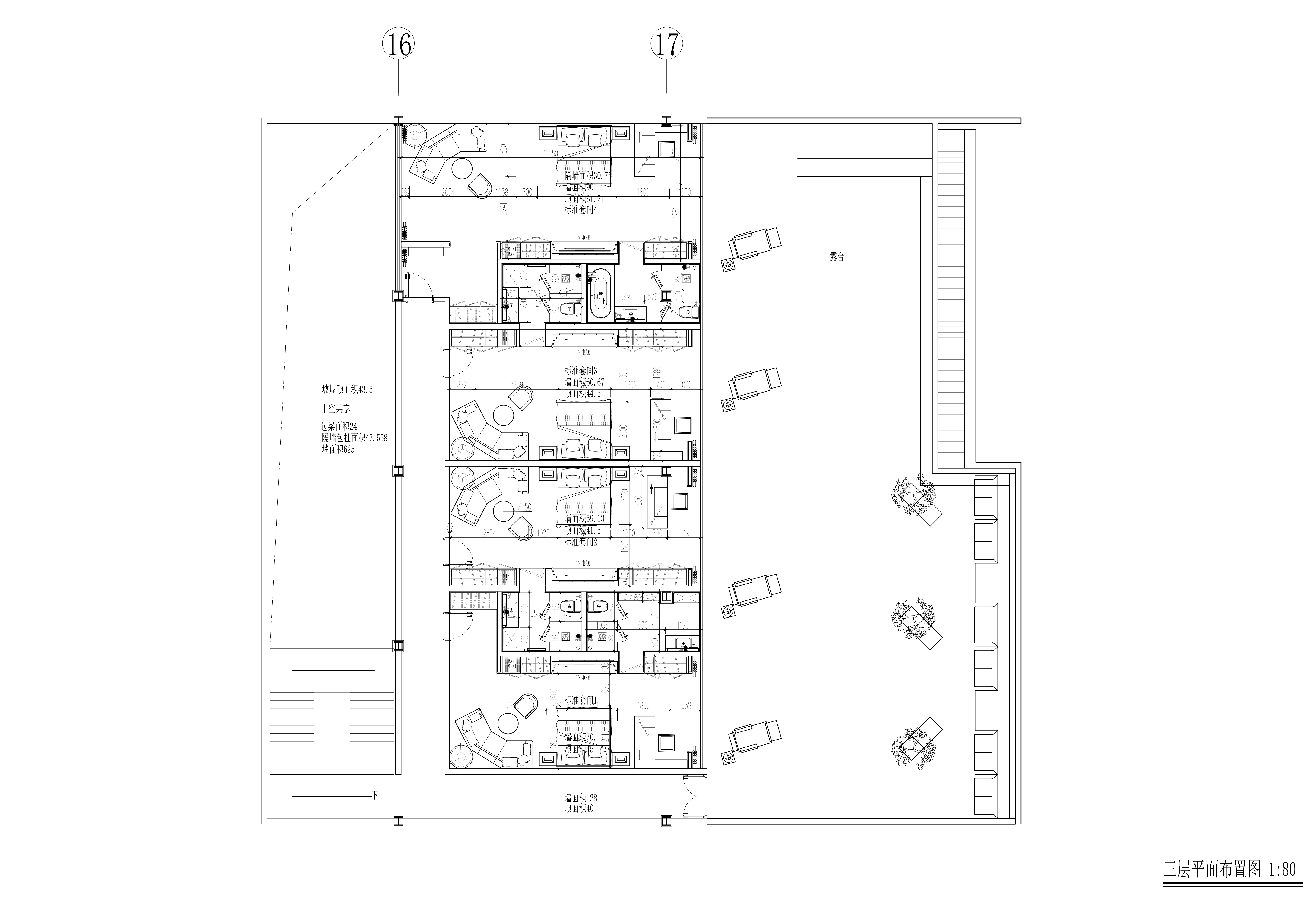
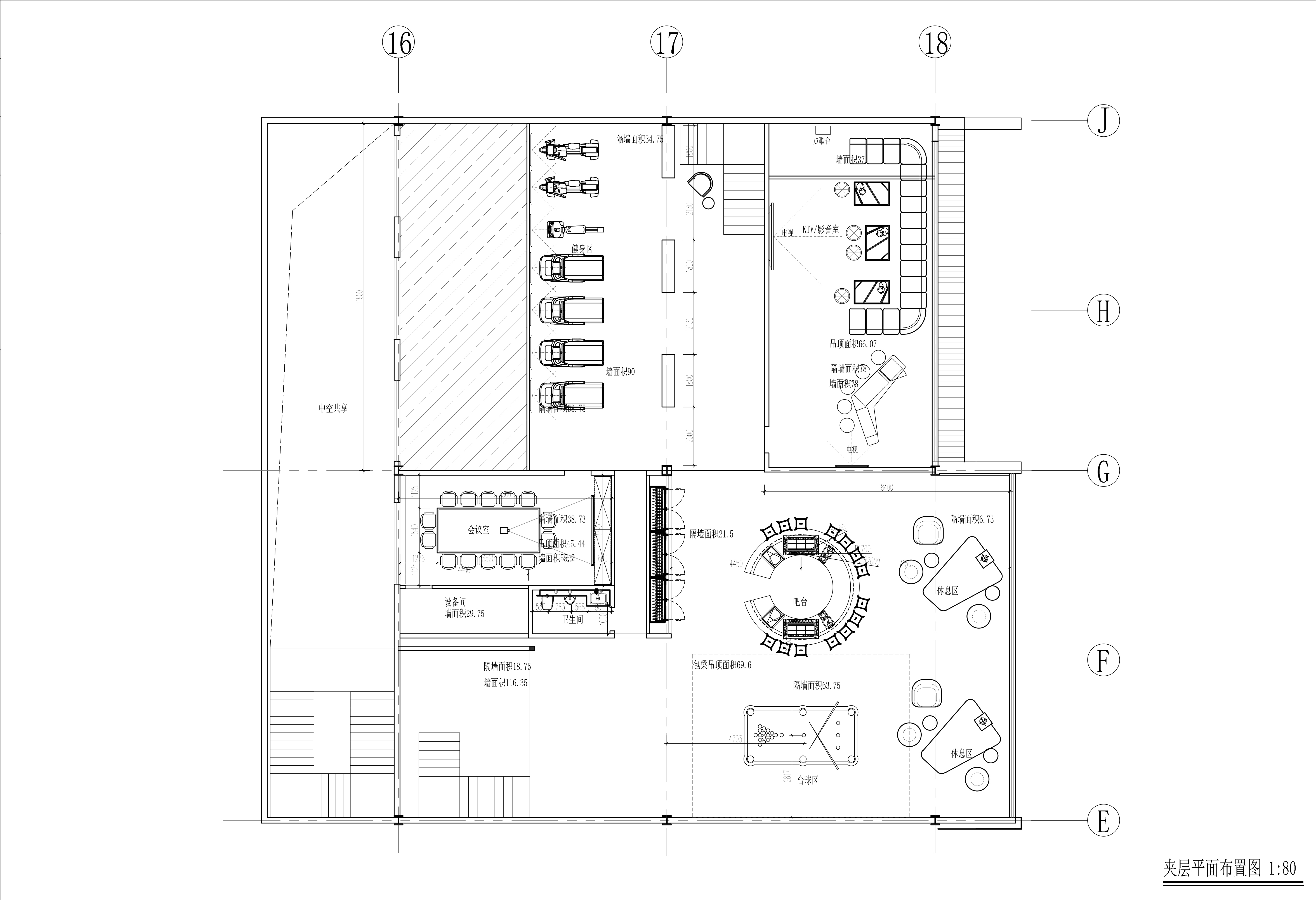
空间意境:曲鹏远空间设计事务所力求让这个空间更加静谧而有灵魂,合理的空间布置,让客人无论休息或是用餐时,均能将会所美景尽纳眼底。一个成熟高端地产社区的会所,这里承载的不仅是入住者的配套功能,更是后来者的未来生活,它是一个关于交谈、体验、放松和娱乐的公共空间,既非东方亦非西方,也不是抽象而空洞的文化,它有的只是细致入微的生活关怀,精致优雅的视觉体验,人与人的对话关系和亲切尺度,还有自然中的天光和窗外的风景……会所分为休闲洽谈、餐饮接待、休闲娱乐、住宿等多个区域。
-
空间布局:本案希望用一种“放空”的心态,在空间视觉的审美上,以简单、轻松、快乐为主调,在色彩上追求明快、自然的效果,整个空间非常的干净,没有刻意的去追求造型和过多的装饰,通过虚与实的对比创造出明暗交替的层次感,营造出独特的平衡之美。
-
设计选材:对传统套色玻璃与当代彩墨的融合,通过光影的渲染给空间注入力量与灵魂。在材料的选择上,我们运用了古铜质感的不锈钢、深灰色的木饰面、石材、真丝面料的布艺硬包以及半通透的古铜色金属网等,呈现出沉稳安静的色调和层次丰富的质感,让人感受到东方的内敛气质与现代轻奢的品质生活。
背景以复古的中式陈设奠定了设计主题,沙发、抱枕以及两盏墨绿釉台灯与经典中式吊灯的搭配,交叠出经典与现代的艺术格调。 -
用户体验:项目设计与建筑的中式风格相呼应,以新中式的折中手法,将具有徽派建筑特色的马头墙、小青瓦运用在设计中,在建筑雕刻艺术融石雕、砖雕为一体,显得富丽堂皇,整体空间给人一种舒适却不低调的感觉。配套的功能区完善并且使用方便舒适。
项目设计与建筑的中式风格相呼应,以新中式的折中手法,将具有徽派建筑特色的马头墙、小青瓦运用在设计中,在建筑雕刻艺术融石雕、砖雕为一体,显得富丽堂皇。
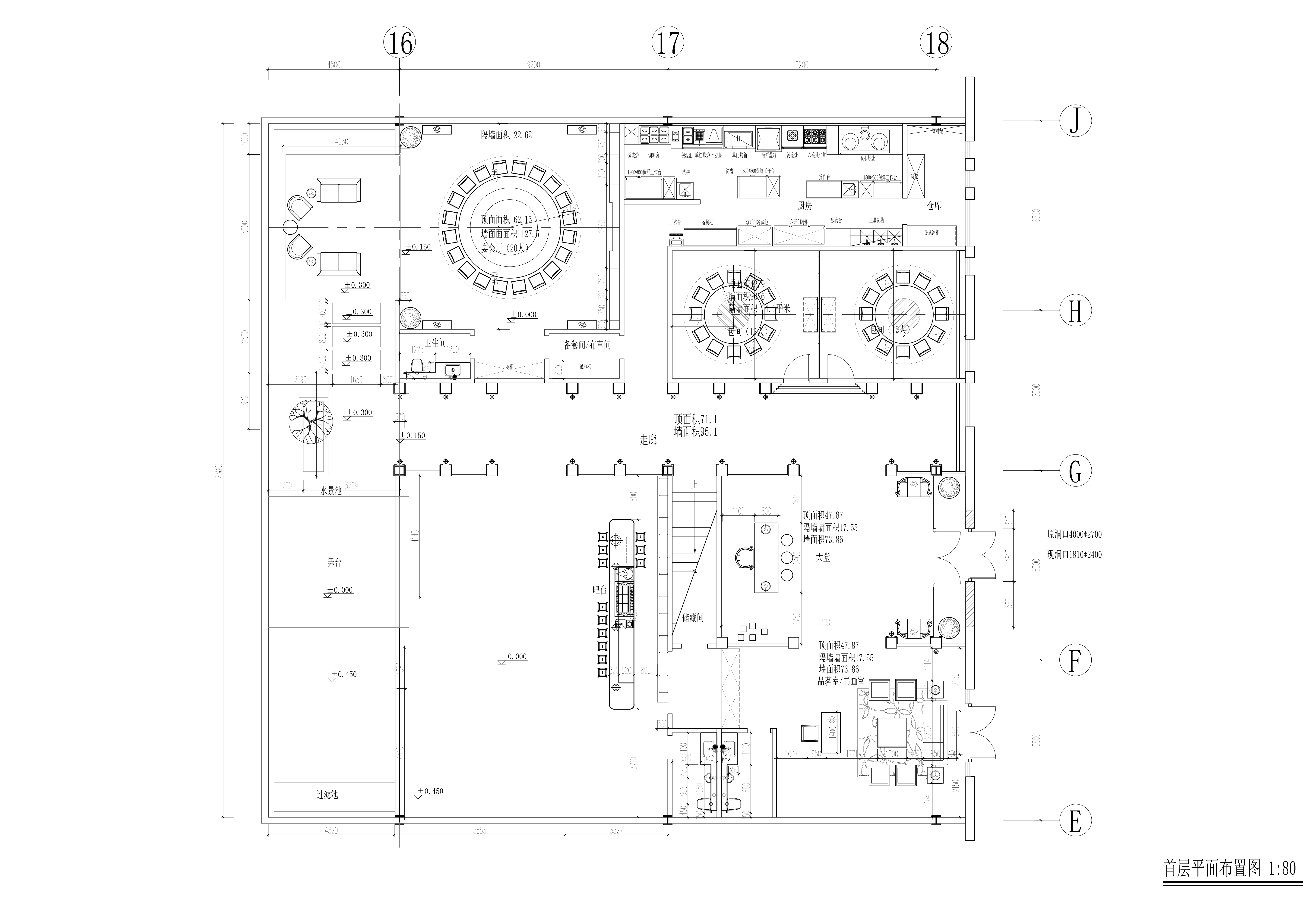
会所分为休闲洽谈、餐饮接待、休闲娱乐、住宿等多个区域。设计师从中国传统艺术文化中提取相关元素,在会所内步入大堂,中轴的端景在灰白基底的映衬下,显得惊艳而内敛,高墙封闭,马头翘角,墙线错落有致,灰瓦白墙,色彩典雅大方。
会所的共享区做了水系处理。墙面也做灰色屋脊,墙面点缀灰色砖雕,搭配中式大吊灯。空间整体色调干净、高雅。顶面是全封闭天窗,天窗做电动遮阳蓬,打开之后如同在室外一样。水系中设计了舞台。水系连接了品酒区,走廊和宴会厅。使得各个功能区之间在相对独立的基础上保持相互呼应,有机融合,并为宾客在内场走动路线上形成客观引导作用。借用中国传统手法上的水榭楼阁,窗花月洞,斗拱凿井,流水连廊等各式形态,使整体空间所呈现的气质上成功规避了浮躁,奢华;代之以轻柔、儒雅、别致的大家之气。
品酒区吊顶采用木方通做假梁并结合生态木吊顶,搭配软膜天花,是整个空间显得通透明亮,不会感到压抑。
走廊两边做垭口处理,将原有的错综的门口融合在一起显得没有那么突兀。在走廊两侧分别陈列了古代的木雕、玉石等摆设,很大程度上突显了中国文化的底蕴。
套房设计中,均衡感、色彩、节奏、工艺......均契合设计中共同认知的形式美法则,在调和对比、多样统一中,营造出和谐纯净、怡然清幽的氛围。几何曲线图案的咖色地毯,写意自然的花鸟图,在冲突中体现设计的创见和动态的和谐美。
影音室背景墙采用黑金花石材,顶面石膏板假梁搭配茶镜,色彩上,采用统一的灰色调,而放松休闲的自然空间,配上温馨的暖光源。进而体现空间的浪漫与温馨。
会所书画室靠近共享的的两面墙是玻璃隔断,从里面往外看可以看见高挑的屋脊。书画室更多的采用中式元素。墙面正中央点缀意境深远的水墨画,给此空间增加了文人气质的中式力量,以及搭配质感奢华的摆件、博古架,明清时代的红木座椅,达到静逸微妙的空间。简约台灯、点缀三两花枝的青花瓷、自然意趣玻璃绿植摆件,在空间融合汇聚,自然洒脱。
会所宴会厅采用古堡灰石材勾勒出的莲花型背景,搭配中式的壁画,点缀耀眼的中式灯,营造高雅贵气的就餐空间,提升整体品质。

