嗨书吧天汇广场三期



作品说明
- 项目类型:公共
- 项目地点:天津市
- 建筑面积:200.0000㎡
- 项目造价:1000000.0000万元
- 主案设计师: 曲鹏远
- 参与设计师:赵金旭
- 竣工时间:2019-12-30
- 设计机构:沐尚.曲鹏远空间设计工作室
-
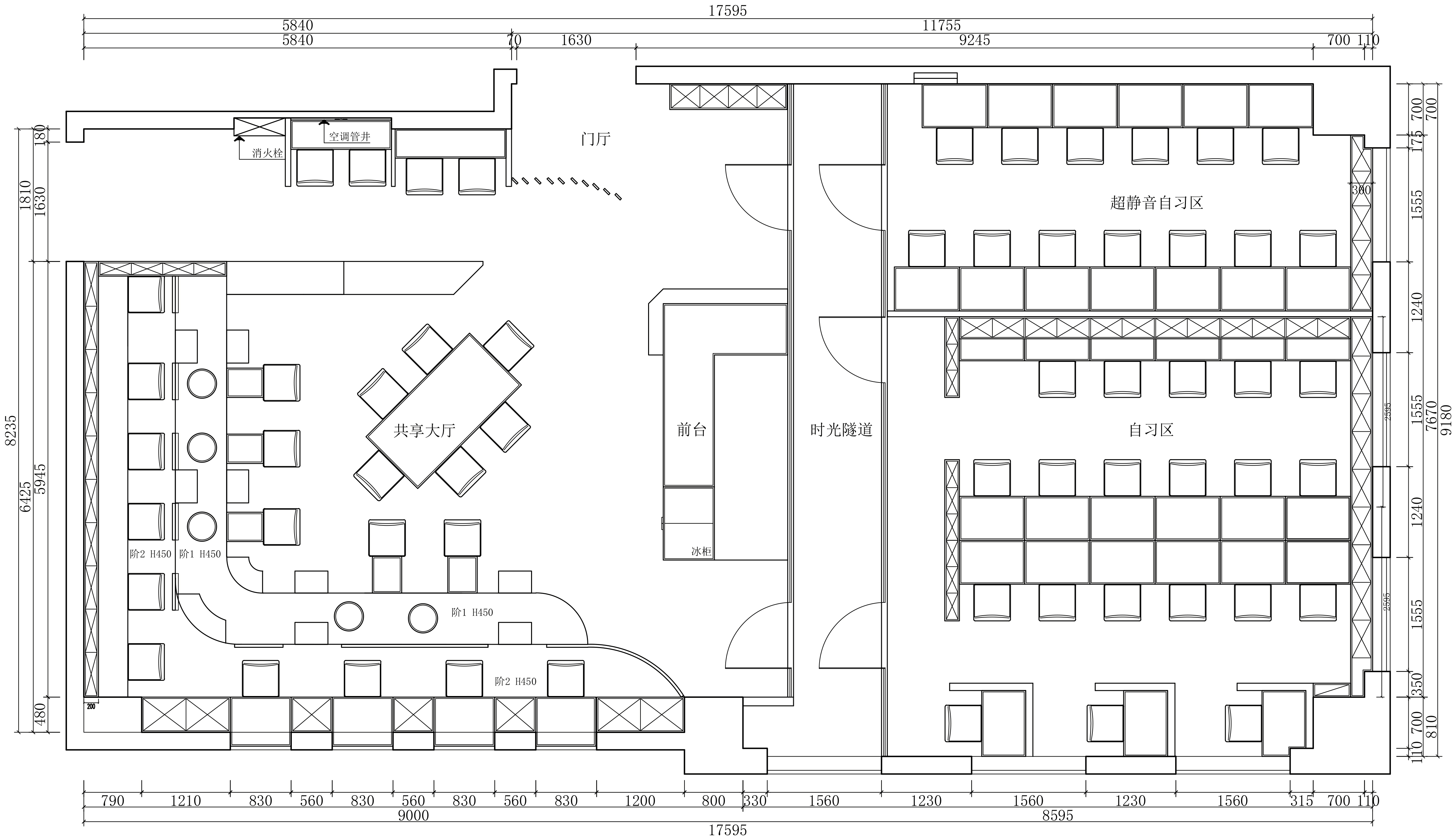
项目定位:天汇广场嗨书吧是继奥城嗨书吧的第三家店,与之前不同的是,此次设计将咖啡自习区为主要一部分,为部分学习空间营造休闲舒适的氛围。
-
空间意境:咖啡自习区相对于自习室,是较为放松、休闲的公共空间。以L型半围合的阶梯平台,赋予空间共享氛围,平台上设有单人桌,台下设有共享桌,满足顾客的不同需求。周围墙面书架的布置,装饰的同时丰富学习氛围。天花高低错落的“方盒子”,打破吊顶的水平线,增添空间的灵活感。穿过神秘的“时光隧道”,来到安静、舒适的自习室空间,这里的“时光隧道”不单单是划分空间,主要是起到了自习室与咖啡自习区的隔音作用,设计师采用双层夹胶玻璃做为“时光隧道”的墙体材质,再加上隧道的内部空间及地毯都可减缓共振,这为自习室及超静音自习室安静的学习环
-
空间布局:整体空间分为三个区域,以“时光隧道”为轴,分为咖啡自习区,自习室,超静音自习室。
-
设计选材:选材低碳环保,工期比较短定制选用的都是成品环保的板材。自习室吊顶飘舞的丝带我们采用铁板做出丝带造型,然后镀仿木纹的漆。
-
用户体验:自习室环境好,隔音效果非常好。室内有新风循环空气,气温恒定舒适,空气清新。咖啡交流大厅氛围轻松舒适。
天汇广场嗨书吧是继奥城嗨书吧的第三家店,与之前不同的是,此次设计将咖啡自习区为主要一部分,为部分学习空间营造休闲舒适的氛围。整体空间分为三个区域,以“时光隧道”为轴,分为咖啡自习区,自习室,超静音自习室。
咖啡自习区相对于自习室,是较为放松、休闲的公共空间。以L型半围合的阶梯平台,赋予空间共享氛围,平台上设有单人桌,台下设有共享桌,满足顾客的不同需求。周围墙面书架的布置,装饰的同时丰富学习氛围。天花高低错落的“方盒子”,打破吊顶的水平线,增添空间的灵活感。
穿过神秘的“时光隧道”,来到安静、舒适的自习室空间,这里的“时光隧道”不单单是划分空间,主要是起到了自习室与咖啡自习区的隔音作用,设计师采用双层夹胶玻璃做为“时光隧道”的墙体材质,再加上隧道的内部空间及地毯都可减缓共振,这为自习室及超静音自习室安静的学习环境取得了保障。
自习室与超静音自习室也是用双层夹胶玻璃作为墙体材质隔开,并且超静音自习室空间较小座位数较少,控制客流,增强静音效果。
自习室吊顶上采用铁板做成飘舞的丝带给整个空间带来了灵动感。

