滨江分公司



作品说明
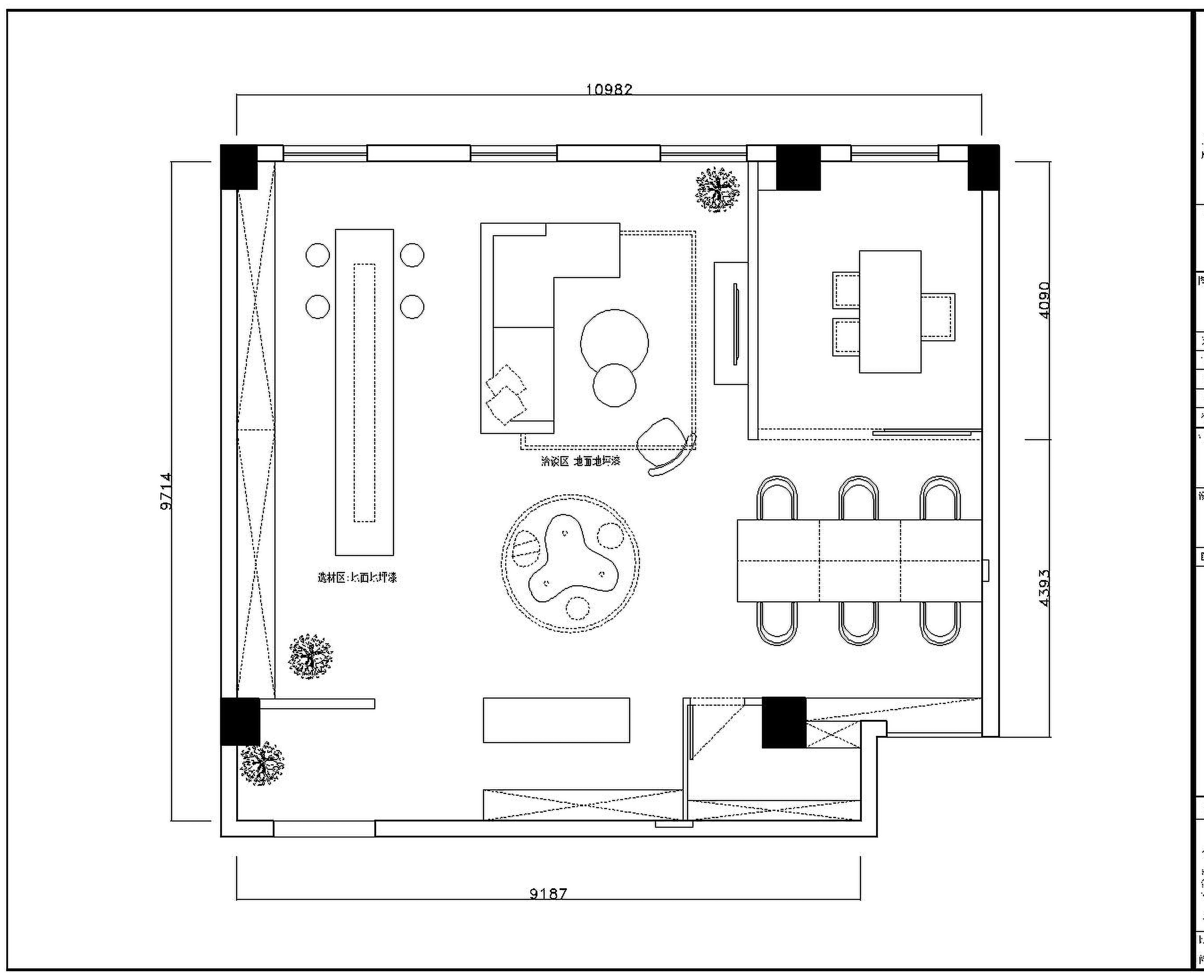
- 项目类型:办公
- 项目地点:杭州市
- 建筑面积:140.0000㎡
- 项目造价:40.0000万元
- 参与设计师:熊真真
- 竣工时间:2020-03-15
- 设计机构:杭州倶俪软装设计有限公司
-
项目定位:工于匠心,升华作品,沉淀设计
-
空间意境:深沉优雅的高级灰,不动声色中透露出低调的优雅,摒弃传统办公的温暖色彩,采用特别的设计语言,营造高冷格调和神秘气质。
-
空间布局:洽谈区充分利用空间自身的采光,在视觉上将空间扩大,提升了整个空间静谧平和的感受。
-
设计选材:材质与材质之间进行艺术上的碰撞,擦出别致的生活氛围,深浅不一的灰色丰富了空间层次,运用差异性划分出区域的功能性,保持整体空间氛围的沉稳。
-
用户体验:开放式办公室,简约、自然,没有纷繁复杂的装饰,仅用质朴的色彩加上线条感极强的设计手法,简简单单的感觉便能造出很有质感的空间。

