中梁·中交瑞安塘河上品售楼中心


- 项目类型:样板间/售楼处
- 项目地点:温州市
- 建筑面积:737.0000㎡
- 项目造价:183.0000万元
- 参与设计师:范张义 陈洋洋、厉畅、吕陈勇、陈培爽
- 竣工时间:2020-07-10
- 设计机构:温州市成仕间装饰设计有限公司
-
项目定位:中梁·中交瑞安塘河上品位于温州瑞安市塘下镇与汀田街道交界处,是塘下至瑞安的门户所在,考虑到周边的资源与活力,以及当下疫情的情况下我们在整体设计上希望通过“绿色化,现代化,个性化”这几个关键词呈演出现代艺术感与未来感的交融。
-
空间意境:将光源与设计结合,光线重塑构造,造型铺陈展示,创造出整体主题星星点缀,漫漫银河的氛围。
-
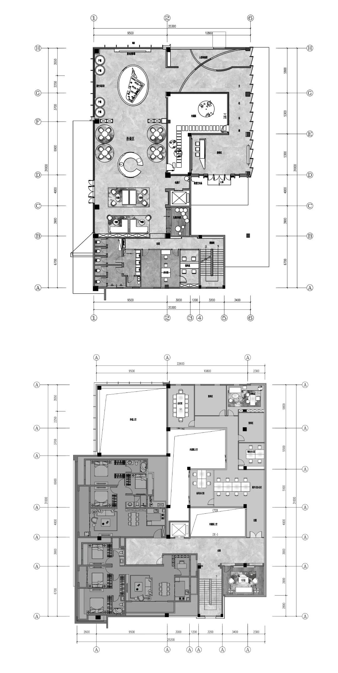
空间布局:一入门处是门厅,前行为回廊绵长。围绕一周,形成天井,引光入室,造形为景,整个动线流畅,做到了步步见景的视觉享受。
-
设计选材:主要木饰面为科技人造木皮面,成品低且可再生程度高,运输成本低,对现场的施工工艺有所要求。所选材料配色偏浅,白色大理石搭配波纹水光镜,反射天光引起空间闪烁,表达了星光迷人的主题
-
用户体验:不同的角度都会体验到空间的变化,在有限的格局内丰富了视觉层次,给来访者真切感受,融入并愉悦。
中梁·中交瑞安塘河上品位于温州瑞安市塘下镇与汀田街道交界处,是塘下至瑞安的门户所在,考虑到周边的资源与活力,以及当下疫情的情况下我们在整体设计上希望通过“绿色化,现代化,个性化”这几个关键词呈演出现代艺术感与未来感的交融。
光线创造了一个地方的氛围和感觉 同时也是构造的表现
德尔·佐托在运用光线与描摹客体上有很高的敏锐度与天赋,并长期专注于当代景观与肖像摄影的个人创作。他注重寻找万物的秩序,并力求解决美、形式与秩序之间的问题。对他来说,摄影是去触碰这个世界的方式,善于抓住不同事物之间的相似性进行想象,让他以一种直接、真诚、共情的方式融入到生活之中。
前厅 日月星辰的光辉聚合成为空间的设计主线,流畅的线条勾勒出时空的转换,起承转合之间,折射出新生活的未来之境。前厅借由自然光线和建筑线条的铺层,提炼空间结构,加之金属材质造型丰富层次,幻化出光的场域。中庭贯穿空间的最具有生命力的地方,构建人与自然,光影与建筑的完美空间。
沙盘 围绕中庭,我们希望打破建筑室内规整的空间,利用中空的优势用圆弧形的手法上下呼应,打造一座漫游于璀璨星河的空中岛屿。
让沙盘区呈现出生命的活力和流动,极具灵动与穿透力,构建人与自然、光影与建筑的完美空间,在有限的格局内丰富了视觉层次,给来访者真切感受,融入并愉悦。
水台吧 在沙盘区中心点转过来之后水吧台变成了我们视觉中心的焦点,我们取决于自然采用木的元素,在设计之初很自然的便以木饰面飘带围绕整个水吧台盘旋而上,勾勒出时间于空间的轮廓。
洽谈区 以水吧台为背景不同的角度都会体验到空间的变化,木饰面飘带勾勒着空间的形态,柔和、安静且神秘,指引人们探索和体验更多的空间。
卡座区 通过“物境一意境一心境”三层递进关系,呈现当代建筑的理性与朦胧、本真与纯粹。
卡座区与书吧的结合以“水境”的空灵之境引入“飞云之水的恬静,表达建筑与自然较为谦逊的一面。
儿童区 儿童区的饶有趣味的一笔,是几何动物摆放一高一低之间,空间尺度收放自如。
除了物理的需求舒适度以外,更讲究自我的设定即与孩童精神的契合。
VIP室 于简雅质朴中,与周边环境融合,便可彰显典雅有力的存在感。搭配出静谧的现代空间感觉,点缀浪漫的金色,营造一个清新自然的环境。
平面图

