溯源
681 - 项目类型:住宅公寓
- 项目地点:珠海市
- 建筑面积:160.0000㎡
- 项目造价:60.0000万元
- 竣工时间:2020-07-23
- 设计机构:珠海白菜科技传媒有限公司
-
项目定位:原户型朝南,采光良好,但格局上有很大的优化空间。
最大的改变是我们取消一年只会用一两周的客房,将两间卧室和一条长长的走廊合并。整体风格是以家庭孩子为主的自由空间,所以整体空间一定是把地面空间留出来,给孩子尽情玩耍,所以我们将整个电视背景墙延长,延长的部分正对大门,形成一个天然的玄关;天花做了格栅造型,形成对应的视觉延伸感。 -
空间意境:天花做了格栅造型,客厅的布局也不同寻常,沙发不是传统靠墙摆放,而是居中摆放,沙发后方与柜子之间预留空间,形成环绕式动线,让孩子的活动动线加长,增添空间趣味性。将飘窗加高设计为操作台,加了一层抽屉抬高之后,在台面上盖了层白色大理石,可以保护我们的木质柜子,就不需要担心使用时不小心将水打翻啦。
-
空间布局:重点改造部分:
① 增加玄关
原户型无鞋柜位,客厅大,餐厅小,比例严重失衡。
原来的大门直通主卧门,风水上是大忌。
② 增加客餐厅收纳
前面说了餐厅很小,所以我们一开始就没打算做整面墙的餐边柜,而是将收纳放到了餐厅飘窗和客厅沙发墙上。
③ 增加互动性空间
合并两个卧室及长长的走廊。
④ 隐形的收纳
整个房屋设计中隐藏了有多处强大的收纳空间。 -
设计选材:珐琅板墙:带磁性的珐琅板可以自由裁剪,从而代替了白板墙,这样一来就能用吸铁石固定住充满回忆的照片,或是孩子的画作了。
布纹砖:相信很多人会有珠海比较潮湿不适合装木地板这样的顾虑,那布纹砖会是个不错的选择,好的布纹砖看上去和地毯效果非常相似,但它又具备和瓷砖一样好打理的特性。纹样丰富,色调也非常温馨。
单扇玻璃推拉门:这个玻璃门主要的作用是偶尔可以分隔客餐厅和活动区两个空间,当大家集中在客餐厅时,可以关上这个单扇推拉门,冷气不会因为空间太大而流失;但在设计的时候我们又着重考虑到,这扇门常开的时候 -
用户体验:白菜适家的设计师真的很能为业主考虑,并能够做到将业主心中的要求落实,并添加色彩,非常的棒!房子中的将两个客房改为一个兼具娱乐、学习、休息一体的空间,很多的设计公司都可以做到,但是连同选材,搭配等方面都做到精致的却很少,幸好白菜适家的设计师能够做到,并且设计的很好看,符合心意,谢谢!
原户型没有玄关且大门直冲主卧门的问题,最常见的方法可能是做一面隔断来解决这个问题,但我们不希望原来一个开敞的空间被一块屏风隔开。 另一方面,我们的整体风格就是以家庭孩子为主的自由空间,所以整体空间一定是把地面空间留出来,给孩子尽情玩耍,所以我们将整个电视背景墙延长,延长的部分正对大门,形成一个天然的玄关;天花做了格栅造型,形成对应的视觉延伸感。
客厅灯光效果
客厅的布局也不同寻常,沙发不是传统靠墙摆放,而是居中摆放,沙发后方与柜子之间预留空间,形成环绕式动线,让孩子的活动动线加长,增添空间趣味性。 当家长们在沙发上看书或看电视时,孩子可以围绕整个沙发玩耍。
关于收纳1:在沙发的后面整面收纳柜的中间设计了部分开放格,摆放从以前的家中带过来的装饰品及刺绣,柜子下半部分被沙发半挡住的可以放置儿童绘本,高度较低,方便孩子自己拿取,也不会完全展露在外面显得杂乱~ 关于灯光:无主灯设计,分了主照明和氛围照明不同层次,分别用于不同场景使用~
电视背景墙采用的是KD板+连纹岩板,从设计开始到完工落地,接近100%的还原。
餐厅依旧沿用木饰面,配合实木餐桌椅,餐椅选择了单边长凳,更具有趣味性,黑色的椅垫更是点睛之笔。 前面有提到客餐厅大小比例失衡,餐厅原来就比客厅小很多的情况下,我们没有再做整面墙的餐边柜,而是将飘窗加高设计为操作台,台面可以放置饮水机或小家电,下面做抽屉可以收纳纸巾刀叉筷勺以及杯子等,吃饭时可以随意拿取,非常合理方便。
飘窗加了一层抽屉抬高之后,在台面上盖了层白色大理石,可以保护我们的木质柜子,就不需要担心使用时不小心将水打翻啦。 关于收纳2:抽屉使用起来比柜子方便太多太多,所以在收纳中设计了大量的抽屉。
关于收纳3:在玄关背景墙的后侧方,我们做了一面通顶的隐形大柜门,打开里面是个60公分深的收纳空间,这么深的深度绝对不适合做层板,我们做了个超大储物拉篮,因为这个柜子很深,柜门打开的同时拉篮跟着移动出来,方便我们拿取里面的东西。
厨房朝西,采光极佳,阳光从窗户中洒下,在白墙砖映衬下的木质橱柜显得温暖、干净,在厨房下厨都能拥有美丽心情。 厨房也是尽量多做小中大不同尺寸的抽屉进行收纳,足够的且不同规格深度的收纳空间,会让做家务和生活都成为享受。
在厨房门口处,也能看到珐琅板墙,门口一块空间比较小,正愁利用不上,灵机一动,就用裁剪剩余的珐琅板做了一块白板墙,可以随手记记菜谱。 Ps:白板的位置是贴砖时就预留出来的哦,白板后面是没有贴砖的~
这是一个由两间小卧室合并而成的一个宽敞的多功能空间,它更是一个可以容纳多个独立活动的共享空间; 因为我们知道孩子最需要的是陪伴,这样的设计可以有效避免家长们一进入工作室就“闭门不出”情况,家人们可以在这个多功能共享空间共度亲子时光,增进感情。
当孩子过生日开party的时候,这会是个非常合适的空间。 同时这个空间可以兼顾不同人物进行不同活动所需要的收纳功能;有玩具柜,杂物柜以及榻榻米收纳空间,榻榻米偶尔也可以作为临时客房来使用。
原始的客卫是极小的,往两边扩张后变长了,因此我们做了干湿分离,将浴室柜完全分离至卫生间外面。
原客卫与阳台有一墙之隔,我们将墙取消了改成了门,这样的动线发生了巨大的改变,我们从卫生间去阳台不再需要从客厅绕过去,洗漱完可以直接将换洗衣物直接拿到阳台洗烘,大大提升了便利性。
主卧的地面及天花,依旧是地毯砖及无主灯的方式。床头的饰面板也是由客餐厅延伸进来。 主卧室面积不小,有个独立的衣帽间,床尾也做了一排收纳衣柜,两边可以收纳不同季节的衣物,不需要因为换季来回替换。
相信很多人都觉得飘窗没用,原因在于飘窗的宽度偏窄,所以坐着不舒服,也很难利用。但如果空间允许的情况下,可以适当加宽飘窗,打造成更舒适的阅读休闲空间;两边墙体加宽的部分正好可以用来做书柜,拥有大量收纳衣柜又有书柜的收纳,这样配套齐全的主卧室谁会不爱呢? 关于收纳4:相信很多人跟我一样,床头堆满了一大堆书没地方放吧?看不看是另一回事,卧室书本的收纳却是被大家一直忽略的问题。
床的两侧分别做了小吊灯和壁灯,壁灯是利用加宽飘窗的位置做的嵌入式壁灯,亮度温和不需要担心刺眼,在床头柜底部预留了起夜灯,可以把夜灯设置为感应式的,夜晚起夜再也不用担心开大灯会影响另一半啦~
另一边是主卧的衣帽间,衣帽间有衣柜、嵌入式梳妆台;我们将主卧休息区与衣帽间用纱帘作为软隔断,形成一个换衣间的功能,并在天花做了灯槽完美隐藏了纱帘轨道,兼顾了实用与美观。 原淋浴间的长度有2米,尺寸过长,所以我们占用了50公分的淋浴间做了个嵌入式的梳妆台,不浪费任何一寸空间。
主卫墙面地面用了白色砖,与厨房色调一致,这种模糊的联系保持了风格的统一。但值得注意的是,卫生间水较多,白色地砖会不耐脏,所以淋浴区域我们用的是深灰色地砖墙砖。 卫生间的顶面使用的是硅酸钙板吊顶。 电热毛巾架特地隐藏了电热毛巾架的插座和电线,这里就不详细说做法了嘿嘿。
儿童房色调是浅浅的鸟蛋绿,配上床头一面勿忘我蓝色组合的墙布,活泼又不会显得幼稚。 在儿童房衣柜收纳的设计上与成人不同,应该以“友善设计”原则的角度思考,应该考虑儿童身高及力量大小进行设计,方便孩子自己开门收纳拿取衣物或玩具,从而锻炼孩子的动手能力。
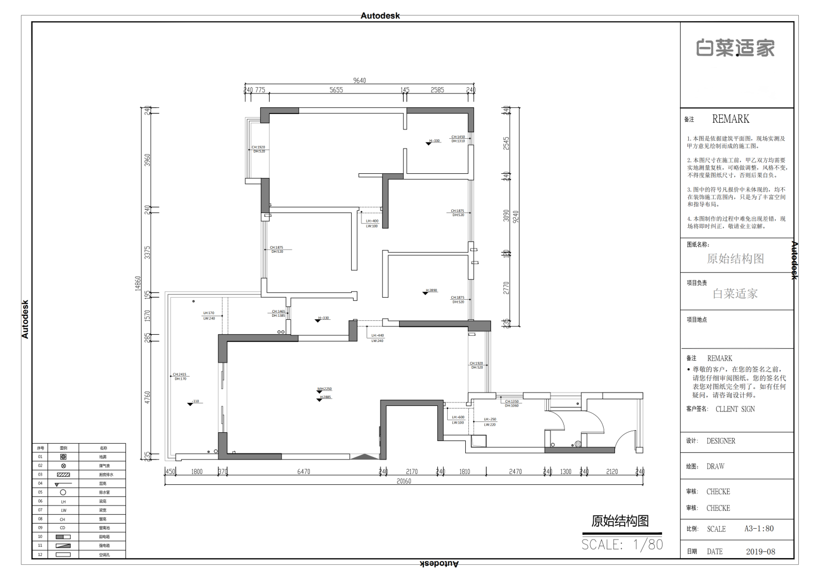
原始结构图
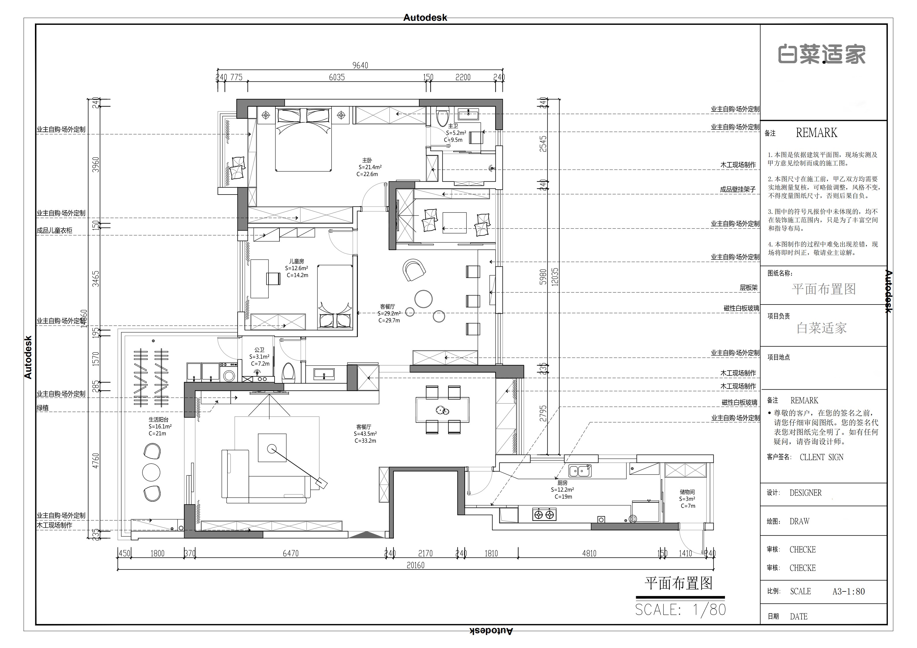
平面布置图
0
0

认证 · 让您身份增值