半夏


- 项目类型:住宅公寓
- 项目地点:珠海市
- 建筑面积:81.0000㎡
- 项目造价:20.0000万元
- 竣工时间:2020-07-06
- 设计机构:珠海白菜科技传媒有限公司
-
项目定位:每一个项目的设计都是一场特别的旅行。
而对于精装房,这场旅行,却又是被限制了“路线”。
精装房的交楼标准如同一盘已经完成的棋局,在考验设计师,如何在最小的结构改动和预算费用之下,完成屋主与设计师双方心中的理想模样。 -
空间意境:客厅间宽3.8米,在和Savior沟通后,我们决定采用成本较低的石膏线条+颜色漆来丰富空间层次感。
但是,我们不希望太过于常规。明度较暗的深蓝撞色,以及深浅双色乳胶漆与石膏线条的错位感,都是代表女主人的特别之处。
沙发墙壁灯的旋转开关可以调节亮度,方便窝在沙发上阅读使用。下面的调节开关可以固定在墙上,强烈建议固定,这样中间的电源线拉直绷紧,才更好看哦。
设计落地,就是细节的把关。 -
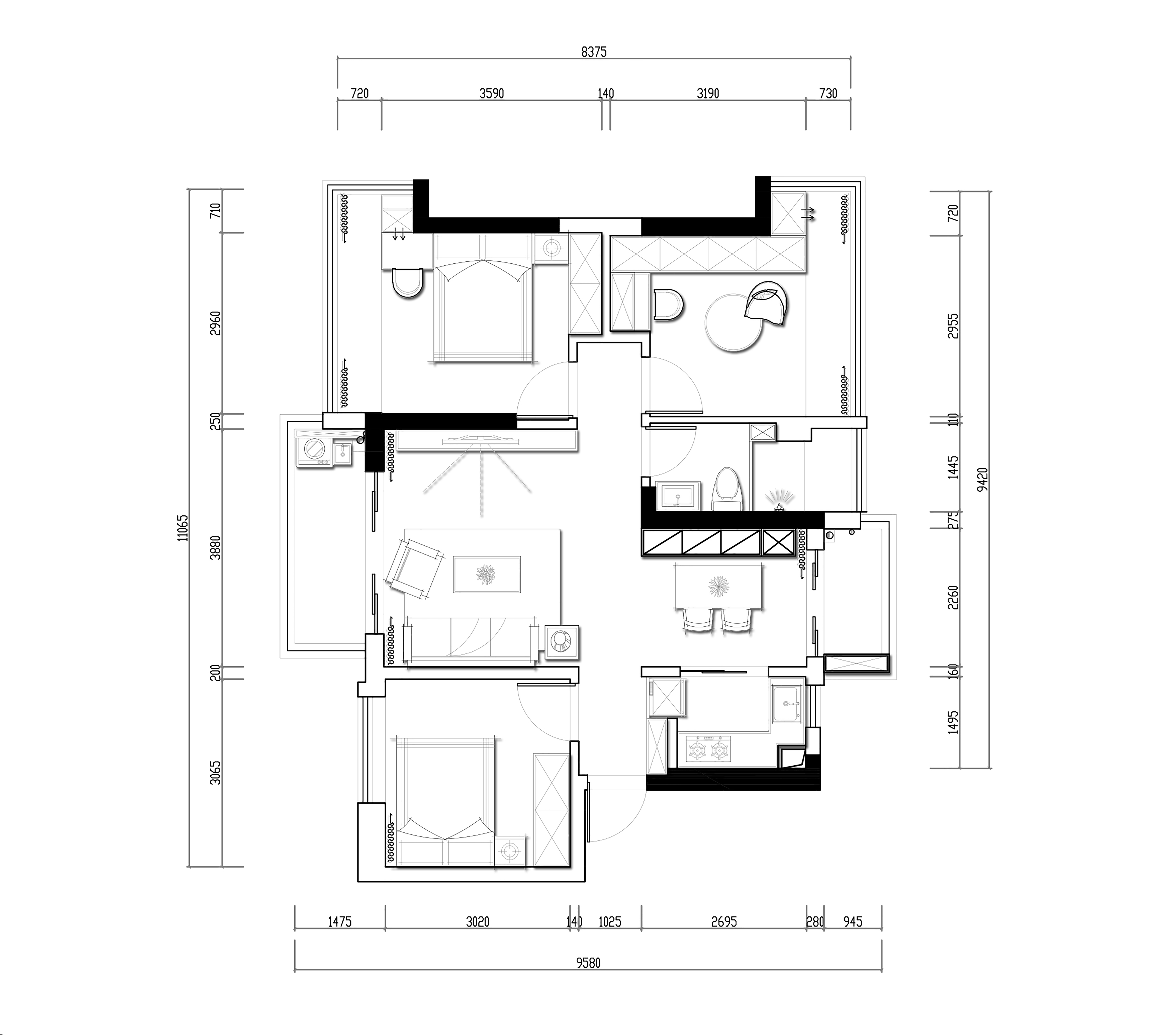
空间布局:餐厅和厨房空间感局促是这个户型最大的缺点,直接导致冰箱没有地方放。勉强挤在餐厅的话,根本不现实。
经过精准尺寸计算,我们给出了应该是这栋楼里唯一的(对,我们是这栋楼最靓的仔)实施方案,打开了厨房和鞋柜之间的墙。且预见了如果拆墙破坏原厨房墙砖的最简便解决方案。墙体拆除后的现场,神奇的冰箱位置就出来了。
当然,不会选择再新建墙,空间实在有限,思路是做一个嵌入式冰箱柜,柜的背板则需要采用18厘厚板,面向过道,同步解决了下班回家挂衣服的需求。 -
设计选材:主卧床头背景选用芬琳漆,环保性能更高,气味很低,是芬兰进口的。
-
用户体验:在好好住.上找到了白菜适家,从前期沟通设计到中期开工再到后期收尾,从设计整体风格到基础完工后购买家具和软装,感觉体现出了专业。我家的餐厅比较小,厨房也小,之前一直担心没地方放冰箱,通过设计师的想法真的找到了一个很好的解决方案,这个是我对白菜最满意的地方。最后完成出来的结果,也完全符合了我的期待。从我的生活习惯,父母的日常需求,房子的布局更改,每个细节都很棒,都体现出设计师的尽力用心,真正把我对"家"的需求展现的淋漓尽致,点赞!这些努力呈现出来的作品,完全符合了我对“家"的期待
每一个项目的设计都是一场特别的旅行。 而对于精装房,这场旅行,却又是被限制了“路线”。 精装房的交楼标准如同一盘已经完成的棋局,在考验设计师,如何在最小的结构改动和预算费用之下,完成屋主与设计师双方心中的理想模样。
业主潜在需求: 屋主Savior是一位单身女生,性格不同于普通女生,她话不多,性格温柔中又有些许刚毅和坚定。她留着短发,时常穿着中性色的衣服。 第一次面谈,我就判断灰蓝是属于她的颜色。当然,女性应有的粉色系和生活品质的高级感提升同样是必不可少的。 同时,她工作繁忙,加班较多,放假更多的时间是看看电影听听音乐,享受个人的休闲时光,周末煮饭的频率也并不高。 但,精致还是每一位女生的潜在需求。 业主表象需求: 因为单身,这个三房一卫的小户型结构对于Savior现阶段的生活需求是刚刚好。 但餐厅空间和冰箱的关系是这个户型最难解决的问题。 无论哪个女生,衣柜里总是少一件衣服,独立衣帽间更是每个女生的梦想。Savior还有一个特点,叠的衣服多过于挂的衣服。只是上班要穿正装,西装衬衫则需要挂起来,回到家也希望有随手挂衣服的地方。 其次,Savior喜欢旅行,配合不同路途的大小行李箱就有4个,需要有足够空间存放。 Savior父母亲偶尔会来珠海同住,主卧隔壁的卧室一开始定义成客房兼书房,二次沟通时,对屋主更多的了解,我觉得这间房更适合成为她个人的私有空间,它应该是衣帽间+书房+投影间。 试想一下,Savior再长大一些,嫁人后的场景。所以Savior和其父母都非常认同我的观点。 于是,有了今天的《半夏》。
餐厅和厨房空间感局促是这个户型最大的缺点,直接导致冰箱没有地方放。勉强挤在餐厅的话,根本不现实。 经过精准尺寸计算,我们给出了应该是这栋楼里唯一的(对,我们是这栋楼最靓的仔)实施方案,打开了厨房和鞋柜之间的墙。且预见了如果拆墙破坏原厨房墙砖的最简便解决方案。
冰箱柜安装后的效果
客厅间宽3.8米,在和Savior沟通后,我们决定采用成本较低的石膏线条+颜色漆来丰富空间层次感。 但是,我们不希望太过于常规。明度较暗的深蓝撞色,以及深浅双色乳胶漆与石膏线条的错位感,都是代表女主人的特别之处。
沙发墙壁灯的旋转开关可以调节亮度,方便窝在沙发上阅读使用。下面的调节开关可以固定在墙上,强烈建议固定,这样中间的电源线拉直绷紧,才更好看哦。 设计落地,就是细节的把关。
餐厅的卡座设计了上翻门,除了常规储物之外,靠背则选用了宽度为170mm的绒布软包装饰。 这个空间是回家打开门看到的第一场景,所以颜值是必须要考虑的,同时也让用餐舒适度更好。
软包的安装固定也需要注意细节。 不要采用偷工的方法用双面胶粘贴,会很快脱落。但也要注意侧面收口的细节,与墙面完美贴合,不要露出底板。
餐边柜并没有选择常规一柜到顶。 因为600mm的宽度,如果还做到2.8米高,着实难看。我表示无法接受。不要说上面积灰怎么办,我倒想问问,你家现在沙发和床底下的灰,你一年又打扫过几回呢。
书桌上方的吊柜看起来似乎有一些不同。 其实,也是基于现场梁位的问题进行了优化,并非常规尺寸。不需要再进行木工天花吊顶的施工动作。
书房+衣帽间+投影间,可以定义为多功能房。 但这个多功能房,并不没有一件多余的家具。 “空”就是一种满足感。生活有这些就足够了,空间最重要的是人的体现。 我跟Savior说,你可以在这个空间欣赏自己新买的衣服,可以买一件轻便的地毯,坐在上面看一场电影。
开放格的布局,除了缓解视觉疲劳之外,可以放一些书和Savior的CD。 这里有一个小细节,我在离地1.3米高的开放格内部新增了一个插座,这个空间可是小型投影仪最佳的藏身之处。
主卧和衣帽间都有同样的问题,飘窗太长太大,浪费了太多空间。 从照片上可能看不出做了怎样的优化,其实在胡桃木色开放柜背后还隐藏了一个储物柜。
虽然三房面积不大,但储物空间面积并不小。每一个空间都精心布置了相应的储物,包括阳台。 全屋合计储物面积共:30.22平方
平面布置图

