武汉江滩世贸凡象酒店



作品说明
- 项目类型:酒店
- 项目地点:武汉市
- 建筑面积:11106.0000㎡
- 项目造价:0.0000万元
- 参与设计师:朱文奇
- 竣工时间:2020-08-17
- 设计机构:赫斯贝德纳室内设计咨询(上海)有限公司
-
项目定位:连接传统和当代中国精神,以潮流面貌呈现凡象品牌“生而不凡,不拘万象”的年轻气魄,用开放的姿态拥抱千禧一代宾客,于汉口江滩百年老街展现当代年轻人的精神风貌。
-
空间意境:由于酒店所属区域曾是租界地,所以设计团队在设计理念中参照了租界老建筑的特点,将古典建筑和经典室内装饰元素充分的融入。整个酒店的设计方向与传统酒店不同,其定位为更加轻奢的生活方式,以及对时尚和本土文化相融合的开放精神,突破了以往的传统酒店的沉闷,更加的年轻化。
-
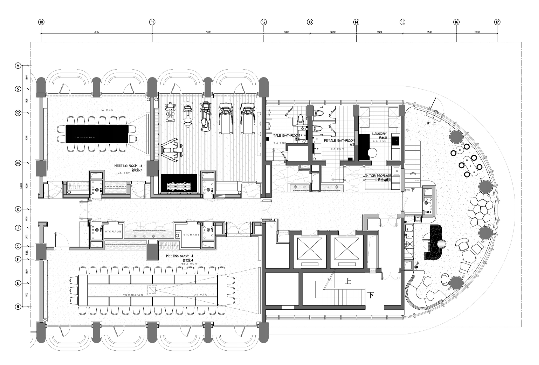
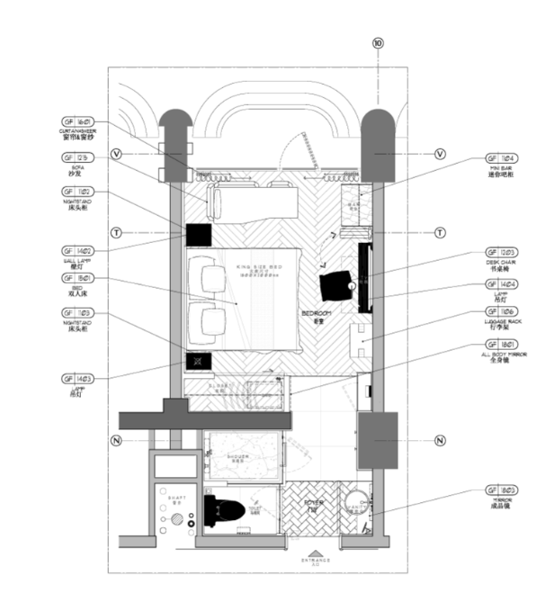
空间布局:将武汉城市的历史文化底蕴通过现代的艺术手法解构,以沉浸式的方式,融入酒店设计与艺术品中,不仅凸显当代年轻人对个性的追求,更将激发其丰富的想象力和一触即发的创造力,让中国骄傲真正成为融入品牌内涵。
-
设计选材:带有年代记忆的砖块纹作为酒店的主设计选材,配以金属装饰,将历史与未来进行融合
-
用户体验:不同于以往的酒店,武汉江滩世贸凡象酒店更突出了千禧一代所拥有的年轻化,社交化,结合城市的历史,展现年轻一代丰富的想象力和一触即发的创造力,传递武汉向阳而生的生命力

