-
项目定位:自古以来,寄情山水、吟诗作画是文人雅士表达逸趣的生活方式。时至今日,依然是许多现代人心中的追求和向往。
此案的新中式风格,在原先传统的基础上注重创新与突破,在继承浓厚人文底蕴的基础上,也大胆的加入了一些现代的元素。设计师选择用现代的创作手法,把中式文化的精髓与现代的材质、设计理念巧妙的融为一体,以体现了居者温文尔雅的君子风范和厚积薄发的文化修养。 -
空间意境:此空间的每一个布局都是经过反复推敲的,不管是动线布局还是配色。房子在一楼,为了提高空间的透亮度,提升空间的可塑性,整个房屋里冗余的位置都被敲掉,使得每个空间的光线能够互补生辉。
设计方案使用整面木饰面装饰作为隐形门延伸至主卧,规避了卫生间的门正对房屋大门的风水弊端。 -
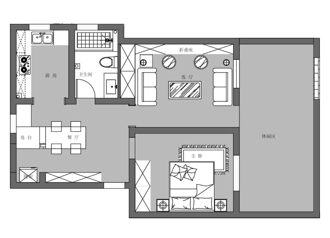
空间布局:客厅空间里实木布艺软包的座椅,形式讲究的沙发、硬包,精心的工艺品放置,在精雕细琢的细节里传达于环境,丰富了居者的视觉感受。同时,客厅空间里还隐藏着一张床,在必要的时候可以转变成卧室使用,提升了客厅的功能性。
-
设计选材:整个空间软装设计结合硬装的表达,在材质上采用了棉麻,石材,木材,金属等高品质贴切生活的材质,诉说着新中式、新艺术的生活态度。通过自然元素带来的依靠感,坚强感,生机感,将整个空间塑造出沉稳安静的格调,散发舒缓的意境。
-
用户体验:家里是老小区,历经岁月,内部装修已破旧不堪。父母一直住在这里,这次选择整体翻新,风格就定位为新中式。房子在一楼,有个院子,很喜欢院子的改造。
有小桥流水的庭院花园,即使是很小的花园,很小的草坪,很小的鱼池或很小的汀步,也可以令人心生愉悦。巧妙的灯光设计与植物配色,配上父母喜欢的小点缀,使得整个空间生机感十足。
0
0

认证 · 让您身份增值
751