欢牛蛋糕屋
1824
作品说明
- 项目类型:零售
- 项目地点:杭州市
- 建筑面积:400.0000㎡
- 项目造价:30.0000万元
- 竣工时间:2020-07-21
- 设计机构:无垠设计研究室
-
项目定位:1966年成立的杭州电焊条厂,于2015年引入创新转型机制,改造而成凤山拾遗创意园。整个园区充满浓郁的文艺气息,业主把闲置的保安亭一并租下,计划将这里打造成“欢牛蛋糕屋工厂店”,吃下午茶的休闲打卡圣地。
-
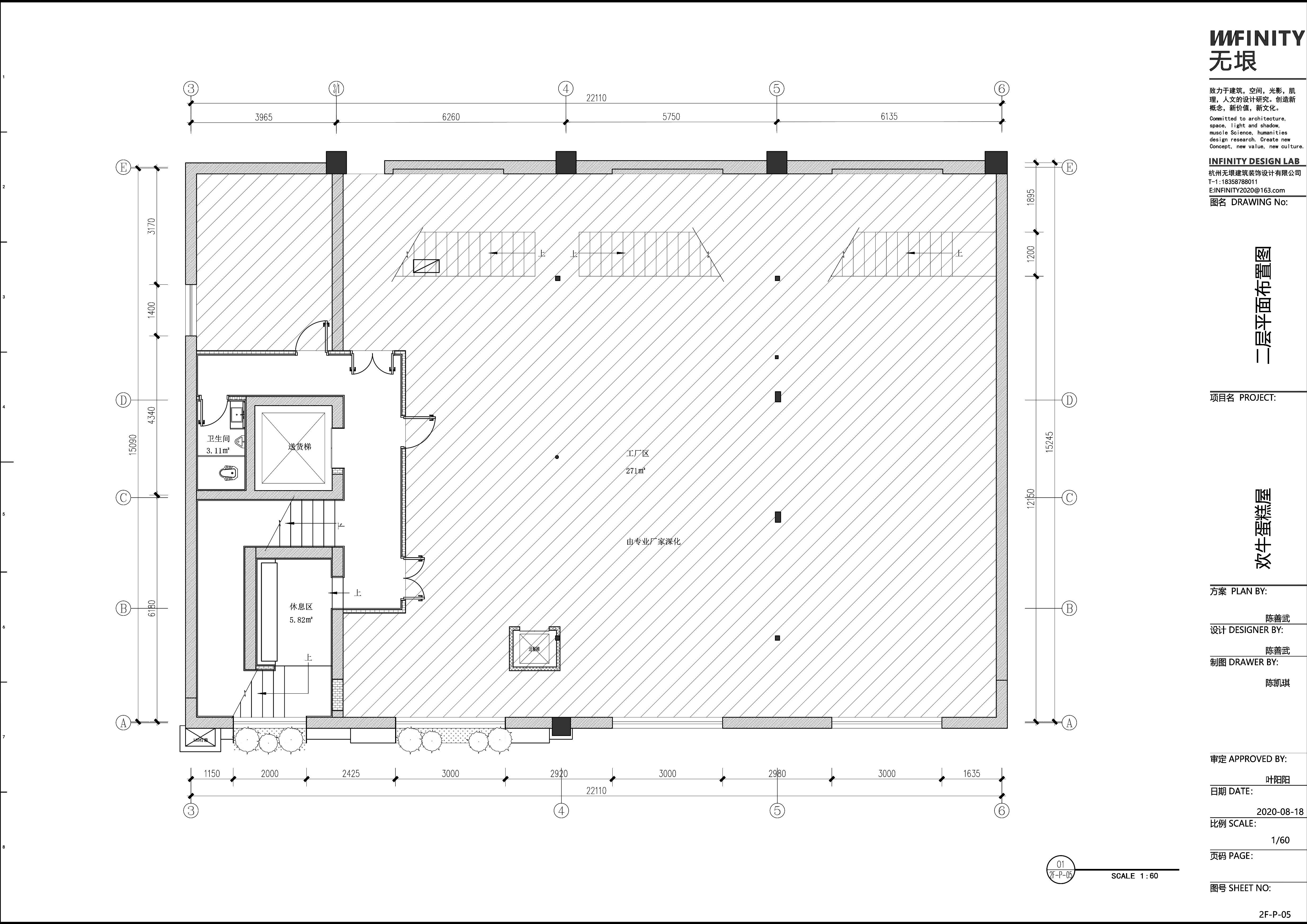
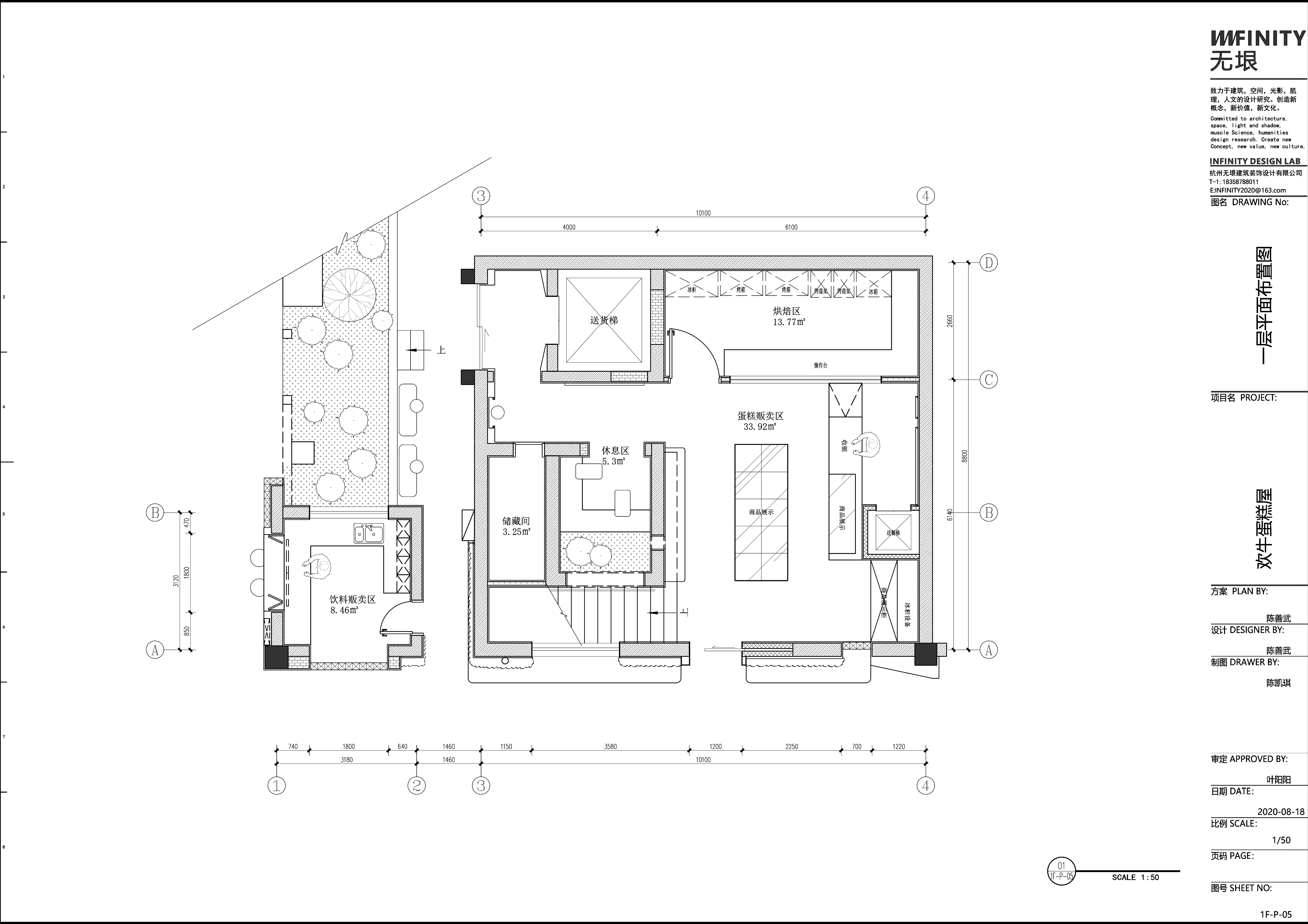
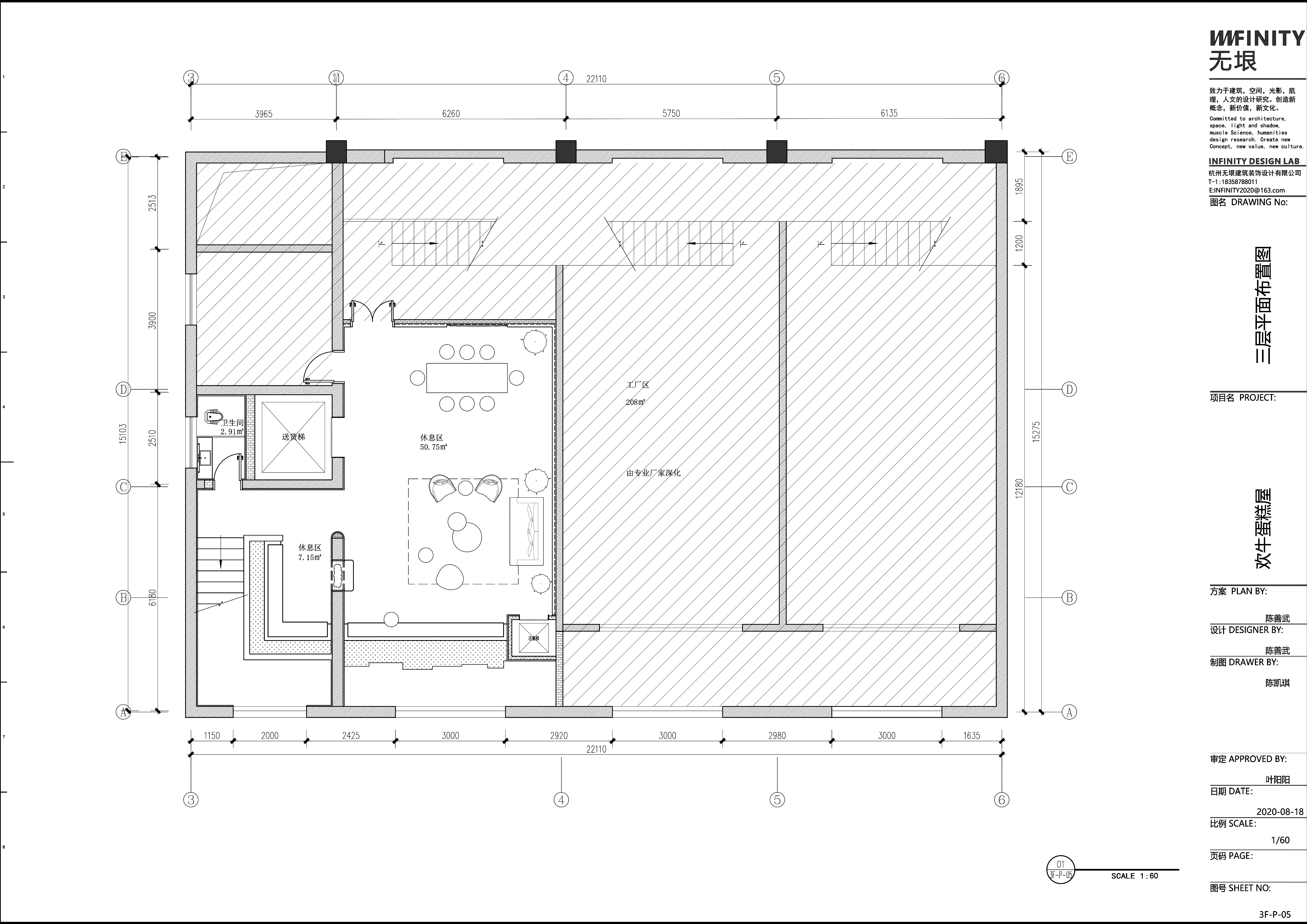
空间意境:我们去现场勘测发现原厂房的楼梯、外墙无法拆改,整体的采光,通风,功能,动线都受到了极大的局限。我们经过多次沟通,商讨后确定把三层厂房做了功能规划:一层主零售,二层主工厂,三层主休闲。设置客梯将三层联系互动起来,增设货梯将工厂和零售区紧密对接,提高送餐效率。除此之外,把保安亭改造成水吧亭面朝马路,满足客人饮品需求的同时,巧妙的把行人引导进来选购蛋糕点心。保安厅与主楼结合在一起形成了风雨连廊的灰色空间带,模糊了室内外的空间,让空间变得更加自然,包容。
-
空间布局:商业空间最重要的就是动线的设计,它看似无形却又定义了商业行为的有效性,及效率。
一楼分为外部动线和内部动线两部分,考虑外部动线是因为一楼的空间有限,需要烘焙区,楼梯间的隔墙及楼梯还有电梯占用了大部分空间。所以我们将水吧,饮品的部分考虑在独立的保安厅位置,然后改造成水吧亭得概念,同时它又面向马路,如此这个空间在不做招牌的时候就已经起到引流导客的作用。 -
设计选材:我们认为建筑无论外空间或内空间都有它的情感。空间的使用者理解感受空间历经岁月而积淀的情感,重新赋予空间新的表情。开始设计的时候,我们发现楼梯核心筒不能拆,承重墙和外立面墙体形成一种像蛋糕盒子的体量感。
-
用户体验:蛋糕屋的外立面改造成蛋糕盒的形式,将室内的楼梯核心筒塑造成铺满白色奶油的蛋糕胚,空间里的人和物件,象征着蛋糕的果粒,人和空间交融在一起,赋予空间新的表情。
0
0

认证 · 让您身份增值