金戈戈香港豉油鸡
646- 项目类型:餐饮
- 项目地点:深圳市
- 建筑面积:102㎡
- 项目造价:40万元
- 主案设计师:刘斌
- 参与设计师:冯英航 曾乐
- 竣工时间:2020-08-13
- 设计机构:广州瑞本装饰设计工程有限公司
从无到有自然是一种创造,
但将已知的事物陌生化还是一种创造
Kcnya Hara 原研哉
做为广东人喜爱的美味佳肴,如何突破传统在形象上引发好奇,让人吃出新意?
在空间设计上我们把港式元素融入餐厅,传统的八角马赛克地砖与现代的金色不锈钢 碰撞,是旧日与今天的碰撞,西方常用的拱形墙面延伸到天花,是东方与西方的融合, 更是香港独有的历史文化与生活方式,以此为设计灵感,创作出一场穿越时空的视觉 和文化飨宴。
直线给人刚中带劲的坚挺感,相对的,曲线却让人觉得轻柔委婉,它 与线条笔直的传统建筑语言不同,拱形它就是空间里美妙的弧线,弧线的协调往往能带来一种独特的、百看不腻的永恒美感。
光不仅仅是适应人类基本的照明生存需求,更多的是开始适应人的多重感知,满足人们更高层次的心理需要.在商业空间的照明设计上需要更多的功能性与艺术表达.我们已清醒地认识到灯光对渲染空间气氛所起的决定性的作用,灯光应该从单纯的照明作用升华为光的艺术.
在弧形顶上装灯一直是比较难解决的问题,经常会破坏了弧形的完整性,这一次我们订制了一款长条灯,背面是一整条灯带把拱形的轮廓照亮,底下嵌入了导轨,装上导轨射灯,满足功能照明需求。
拱形墙面上的金色蛋壳装置是应景餐厅品类的主题,最大程度的寻求艺术感和商业化两个元素的和谐共存。
水磨石是一种拥有独特肌理和素雅格调的材料,设计师在空间上加入了一些低调的灰度水磨石,不突兀,搭配着金色的不锈钢条和金色壁灯,毫无违和感。
为了避免长条的拱形单调无趣,设计师想办法把拱形断开,设计出几个截面,增加空间的趣味性。
爱马仕橙色是品牌色,设计师巧妙保留的橙色元素,其他的都是为了做衬托,是想让顾客最大程度的留下印象,其实这也是商业设计中最重要的一个目的:品牌记忆点。
作为一个有10+家店的连锁品牌,用心打磨的产品,新颖的经营模式,未来继续创造更多让年轻人接受的用餐环境,将传统美食更年轻的传承下去。
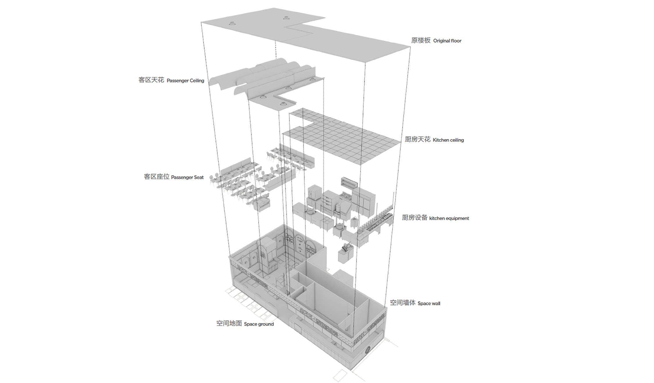
空间分析图

认证 · 让您身份增值