邂逅



- 项目类型:办公
- 项目地点:泉州市
- 建筑面积:170.0000㎡
- 项目造价:80.0000万元
- 主案设计师: 黄汉良 谢文白
- 参与设计师:陆明
- 竣工时间:2020-07-01
- 设计机构:B&T DESIGN
-
项目定位:白而不傲,蓝而不孤。在纯洁与静谧间找寻彼此;蓝色无关于流行,只取于他的静谧,他的恒久与自信,鼓励着我们去超越,去拓展设计的维度。
-
空间意境:宁静并非远离喧嚣,而是静守内心的世外桃园。喧嚣街区,车流涌动,基于此
外部情景,我们思索着如何将空间做成一个安静之所,为街区保留一份宁静,同时制造一种
不期而遇的邂逅,邂逅于时光,艺术,空间的融洽。 -
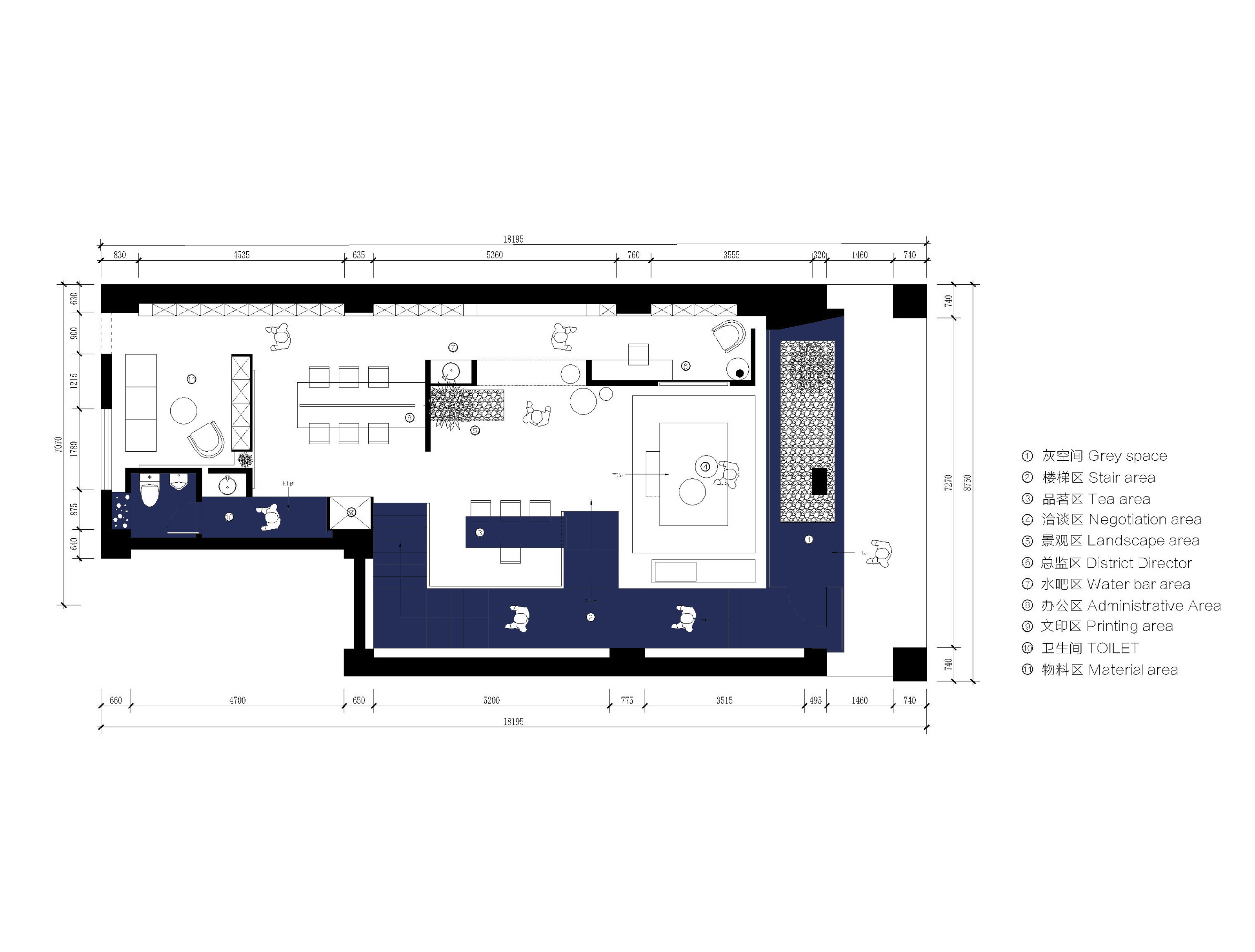
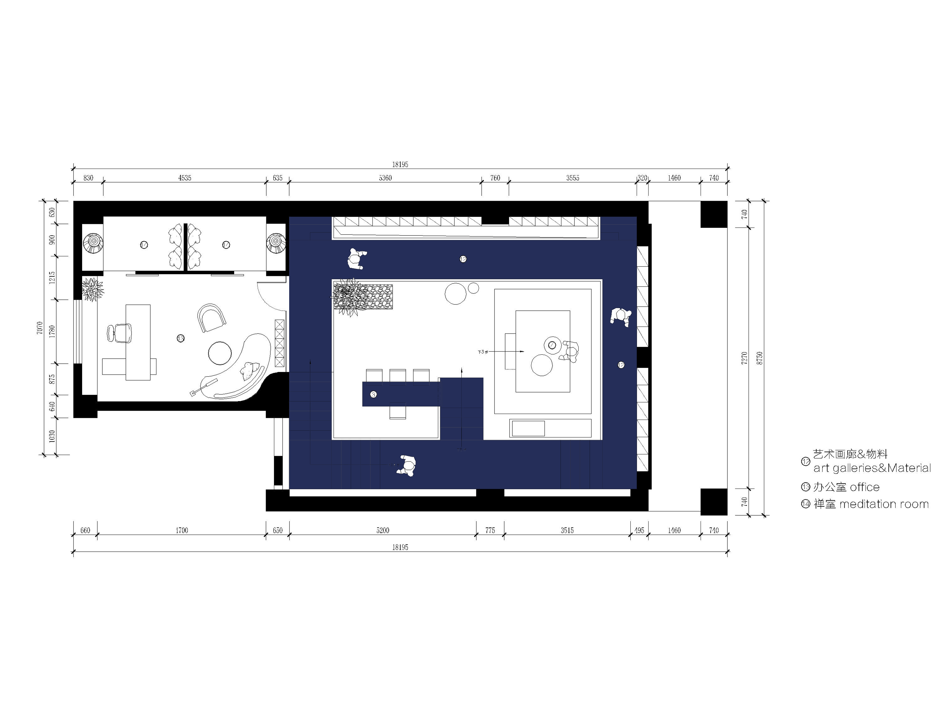
空间布局:向后退让的灰空间,并非隔离而是模糊了室内外边界,更多是在于拉近外部行人与室内空间的交流。从遇见、步入、安坐,一切的发生都在诉说着人与空间的融合。你可以在心里任意的定义它的存在意义和功用,它的存在自然、自由,充满想象。艺术来源于生活,生活是艺术的本质。设计者将蓝色的楼梯同艺术长廊做结合,这点让人印象深刻。行走于此,如同置于艺术馆的一角。值得一体的是,画是可以翻开的,里面可以放置书籍或材料样板,完美的实现艺术与功能的重合,再造。
-
设计选材:瑞典蓓柯漆,微水泥,钢板,透明亚克力,清玻
-
用户体验:这是一场蓝与白的邂逅,是一种素雅与孤寂的交织,是一场心灵的慰籍,是艺术与空间融合,是一座城市喧嚣中的宁静。是我与未来的相遇。
纯粹的情绪,应找到一处可以静默的地方。让艺术与时光应该彼此相遇,无需刻意地去 追求过分的奢华,简约的极致便是雅致。 ——弗克兰克·盖里
建筑不喧,自有声,空间不言,自从容。我们尊重建筑本身,不过多去解读,重构。而 是采用尊重、保留的方式,同时弱化原空间本身,强化新概念信息的入驻,使之内外融合, 至始至终产生了自然碰撞,从而产生自然而遇的一种惊喜。
宁静并非远离喧嚣,而是静守内心的世外桃园。喧嚣街区,车流涌动,基于此 外部情景,我们思索着如何将空间做成一个安静之所,为街区保留一份宁静,同时制造一种 不期而遇的邂逅,邂逅于时光,艺术,空间的融洽。
向后退让的灰空间,并非隔离而是模糊了室内外边界,更多是在于拉近外部行人与室内空间的交流。从遇见、步入、安坐,一切的发生都在诉说着人与空间的融合。你可以在心里任意的定义它的存在意义和功用,它的存在自然、自由,充满想象。
下沉式的会客区打破了传统的平面布局,运用了高低错落的手法分割了空间,含而不露,视觉上形成了错落感,心理上也给人一种亲切的包围感。
入室,拾阶而行,或上或下,所见皆有不同。所到之处,感受便会不同,点,线,面,体块藏匿于此间,环绕的阶梯如同丝带飘浮,带来不同感受。
周边的圆弧形门洞,顿然使直线形的空间,有了柔和之感。门洞内的大片镜面的处理,让空间延展,仿如盗梦空间般,无形中将空间放大数倍。
一眼望去,那棵绿植吸引着众人,相较于传统的大面积绿植而言更有韵味,这或许更好的体现了少即是多。镜面玻璃球的运用,让人从球中窥视了整个空间的全景,充满着趣味性。
设计需要时间,需要探索新的可能性,我们想表达的是艺术不应只是奢侈品,更应是必需品。或办公,或画廊,我想可以重新定义与表达。艺术是空间的语言,装饰也不单纯只是空间的装饰、挑高的空间、相互关联的体量、视觉上的联系。
白而不傲,蓝而不孤。在纯洁与静谧间找寻彼此;蓝色无关于流行,只取于他的静谧,他的恒久与自信,鼓励着我们去超越,去拓展设计的维度。
二楼平面
一楼平面

