奇诺


作品说明
- 项目类型:住宅公寓
- 项目地点:珠海市
- 建筑面积:260.0000㎡
- 项目造价:40.0000万元
- 竣工时间:2019-11-09
- 设计机构:珠海白菜适家
-
项目定位:在开始这个项目之前,除与客户进行深度沟通之外,还走进了她当时居住的房子,(因二次置业客户前一套房子也是我们设计的)
深入到实际生活之中,观察她的生活习惯,梳理对于新家的深层次使用需求,以她的生活场景画面为导向,重新来规划设计整个空间。 -
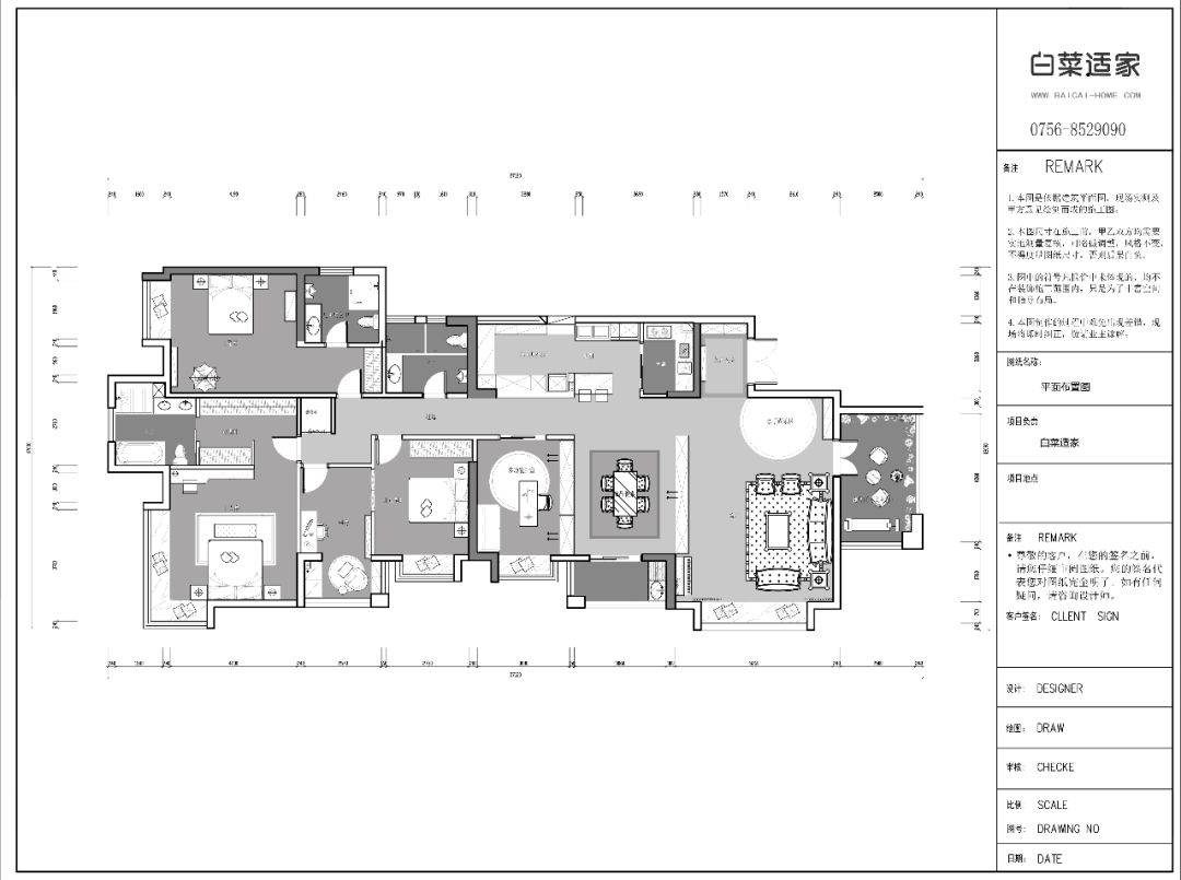
空间意境:a:将横厅布局改变用双向柜,功能部分给予餐厅,背部作为电视背景墙,两侧挑空作为客餐厅的连接线,缩小主阳台门洞,引入双向平开门结构,为卧室视角添置远景。阅读区墙上的画,其实是选自屋主儿子的乐谱喷绘打印定制的,这算是一个小小心机吧。b:在主卧空间足够的情况下,可以适当的面积给予次卧作为环绕动线的空间,使得既然没有制作套卫的条件,那么可以增添阅读私密书房,同时各房间使用者的面积比例协调。
c:改善主卧室的完整性,衣帽间与主卫的链接便捷性,在这基础上同时为家消化储物空间。d:把厨房打通利用7米横向方式,规划中厨 -
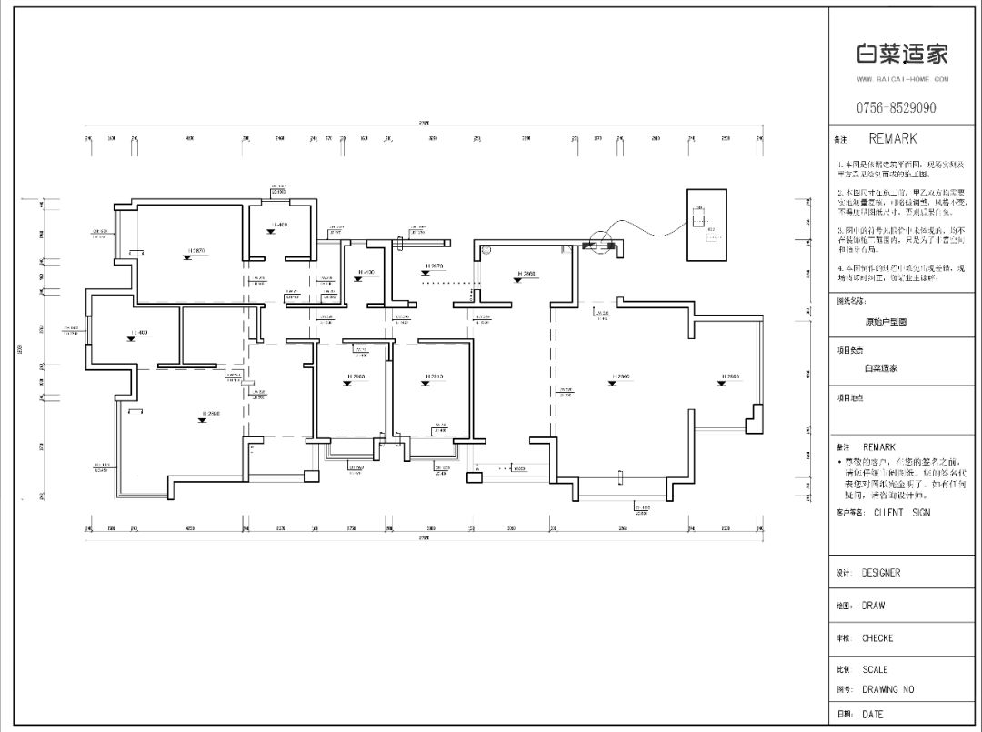
空间布局:原空间格局前场客餐厅为大横厅布局更适合敞开型,但是休闲阳台的开口通道面过大,使得客厅的完整性缺失,后场的卧室区域区分太细化,但对于本案这样的户型最大的缺陷就是“小”,260㎡的面积被切割成了很多小空间,以至于主卧室、餐厅、厨房等空间都很局促,完全不符合大宅的空间气度。
改造大思路:反驳
“反驳”二字所指推翻原始的格局,抛之脑后,将自身场景代入最好的生活动线融入案子。
需要给予一个开放优雅的西厨,一个宽敞大气的客厅,一个贴心的主卧,与孩子最高配置的睡眠区。 -
设计选材:本案主要用了通体砖、古堡灰天然石材、墙布、水曲柳实木线条、芬琳诺娃墙面漆等材料。
-
用户体验:美式风格的家真的是太让人喜欢了,每次打开家门都感觉都自己的家有种非常“豪华”的心情,每天下班回到家里,真的是很放松,很舒服,感谢设计师罗工为我们设计的这个新家。

