须臾


- 项目类型:住宅公寓
- 项目地点:珠海市
- 建筑面积:103.0000㎡
- 项目造价:23.0000万元
- 竣工时间:2018-12-18
- 设计机构:珠海白菜适家
-
项目定位:对于一个房子的居住者来说,向往精致,但无需刻意。
而对于我们设计者的理解,这是一种生活态度。
家的主人带着他的生活态度找到我们,托付予我们。他表达自己的需求,从空间到储物,以及家政卫生等等。
后来,我们谈到了更多的细节,从灯光的瓦数谈到未来沙发边上的琴叶榕,我们谈到了解放家务的洗碗机,甚至后来我们成为朋友,我们会谈到男主人在结婚纪念日买的那束玫瑰。
慢慢的,我们觉得对于“生活态度”四个字,它应该充满细节、讲究和仪式感。
于是,便有了《须臾》。
人生不得长欢乐,年少须臾老到来。
-
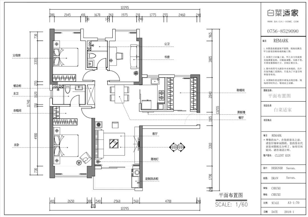
空间意境:进门是一条走廊,左边就是鞋帽间,两排柜子分别容纳了家中大量的杂物和换季的衣物鞋子,白色到顶的柜门,结合了换鞋凳的原木色,整个柜体显得简洁又不过于单调。 在玄关走廊的墙上我们设计了一块黑板墙,可以给未来的孩子涂鸦,或记录家庭温馨小事。
走过走廊就到了客餐厅,客餐厅是非常方正的长方形,非常地舒适宽敞。 暖色的木地板搭配浅灰色的墙面,再点缀上琴叶榕的绿色...以浅色调来缓解主人工作一天的压力与疲惫。客厅沙发上方做了一长条单边吊顶,用于隐藏空调风管机;并没有多余的天花,采用无主灯设计,以明装暗装和轨道射灯来打造 -
空间布局:本案户型为113平,4房两厅两卫 家中常住是对年轻小两口,因此将4房规划为主卧、儿童房兼书房、客房和独立鞋帽间。原户型餐厅对面是个小储物间,我们将储物间缩小,改为一个40公分深左右的餐边柜。由于现在还没有宝宝,儿童房也设计了书房的功能,添置了一张宜家的沙发床,宜家的书桌椅,宜家的灯,颜值高,又实用。
-
设计选材:客厅摆放一个大尺寸激光电视,虽然清晰度达不到高清电视级别,但大屏幕分辨率玩爆投影幕布,完全可以满足男主人晚上看球赛,偶尔放假还可以在家煲煲剧,谁不装谁后悔。主卧窗帘采用的是丝绒材质,这个垂感非常好的材质如果只做在飘窗内,由于长度不够完全体现不出它的美感,所以我们将窗帘设计在了飘窗外,立马提升了高级感。厨房门采用的是极细框玻璃推拉门,采用的是无门套,无地轨的做法,无门套无疑会让显得这个门更加简洁,无地轨即是做吊趟门,这样地面打扫卫生无死角非常方便。 卫生间地面墙面用的都是深灰色仿古砖,深色砖超耐脏,很适合懒
-
用户体验:第一次上门了解白菜适家这个公司的时候,接待的设计师很热情很专业,给我们讲解了公司服务流程,展示施工材料,讲解施工工艺,后来一直经过不断的优化设计方案,最后达成合作了。整个装修过程也是非常的和谐,遇到问题都会及时沟通,给出解决方案,设计师也是非常的专业,在很多细节上都有给出专业意见。
玄关
进门是一条走廊,左边就是鞋帽间,两排柜子分别容纳了家中大量的杂物和换季的衣物鞋子,白色到顶的柜门,结合了换鞋凳的原木色,整个柜体显得简洁又不过于单调。 在玄关走廊的墙上我们设计了一块黑板墙,可以给未来的孩子涂鸦,或记录家庭温馨小事。
客厅
走过走廊就到了客餐厅,客餐厅是非常方正的长方形,非常地舒适宽敞。 暖色的木地板搭配浅灰色的墙面,再点缀上琴叶榕的绿色...以浅色调来缓解主人工作一天的压力与疲惫。
客厅沙发上方做了一长条单边吊顶,用于隐藏空调风管机;并没有多余的天花,采用无主灯设计,以明装暗装和轨道射灯来打造明暗空间效果。 客厅摆放一个大尺寸激光电视,虽然清晰度达不到高清电视级别,但大屏幕分辨率玩爆投影幕布,完全可以满足男主人晚上看球赛,偶尔放假还可以在家煲煲剧,谁不装谁后悔。
餐厅
原户型餐厅对面是个小储物间,我们将储物间缩小,改为一个40公分深左右的餐边柜。
卧室
主卧窗帘采用的是丝绒材质,这个垂感非常好的材质如果只做在飘窗内,由于长度不够完全体现不出它的美感,所以我们将窗帘设计在了飘窗外,立马提升了高级感。
儿童房
由于现在还没有宝宝,儿童房也设计了书房的功能,添置了一张宜家的沙发床,宜家的书桌椅,宜家的灯,颜值高,又实用。
厨房门采用的是极细框玻璃推拉门,采用的是无门套,无地轨的做法,无门套无疑会让显得这个门更加简洁,无地轨即是做吊趟门,这样地面打扫卫生无死角非常方便。 厨房墙面贴的是长方形的真小白砖,用的铺贴手法是工字铺贴,这种贴法非常考验师傅的手工,但贴出来颜值超高也超百搭。
卫生间
主卧单独隔出了一个小衣帽间,做了L型衣柜,白色一门到顶的柜门,搭配单条黑色长拉手。衣帽间上方做吊顶,用于隐藏主卧的空调。休息区没做任何吊顶,同样是无主灯设计,在床尾设计了两个单头射灯,加上床头两边小吊灯,这样一来,就降低了主卧的照明度,靠局部灯光打造休息区的氛围效果。
走廊
平面布置图
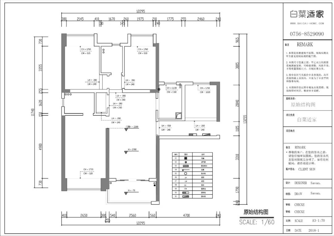
原始结构图

