叙·光栖


作品说明
- 项目类型:住宅公寓
- 项目地点:珠海市
- 建筑面积:204.0000㎡
- 项目造价:35.0000万元
- 竣工时间:2017-12-19
- 设计机构:珠海白菜适家
-
项目定位:这是一套两层楼的复式,居住人口是两位老人家,两位大人,还有一位小朋友,需要解决的
是三代同堂的居住环境和储物功能。还有最重要的小朋友的童年时光和亲子活动空间。风格
定位希望简洁,同时体现原木北欧风。 -
空间意境:在立面设计上,客厅电视墙面采用大面积留白,仅局部采用了木地板上墙,同地面木
地板呼应成趣,有序的空间,充分展现北欧的质朴和严谨。周遭世界已经足够嘈杂喧
嚣,很多时候我们都身处无法逃遁的状态。这种调调,是设计师想要营造的,井井有
条却又放松、宁静、通透。 -
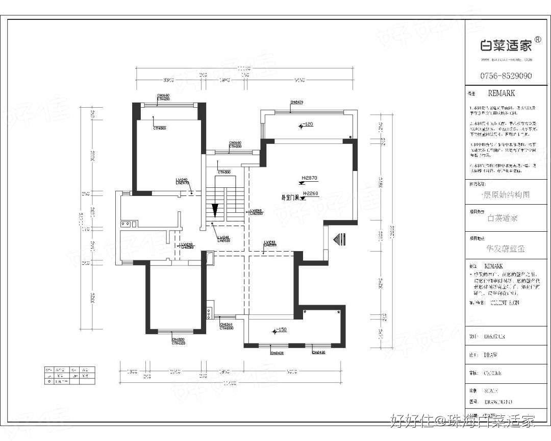
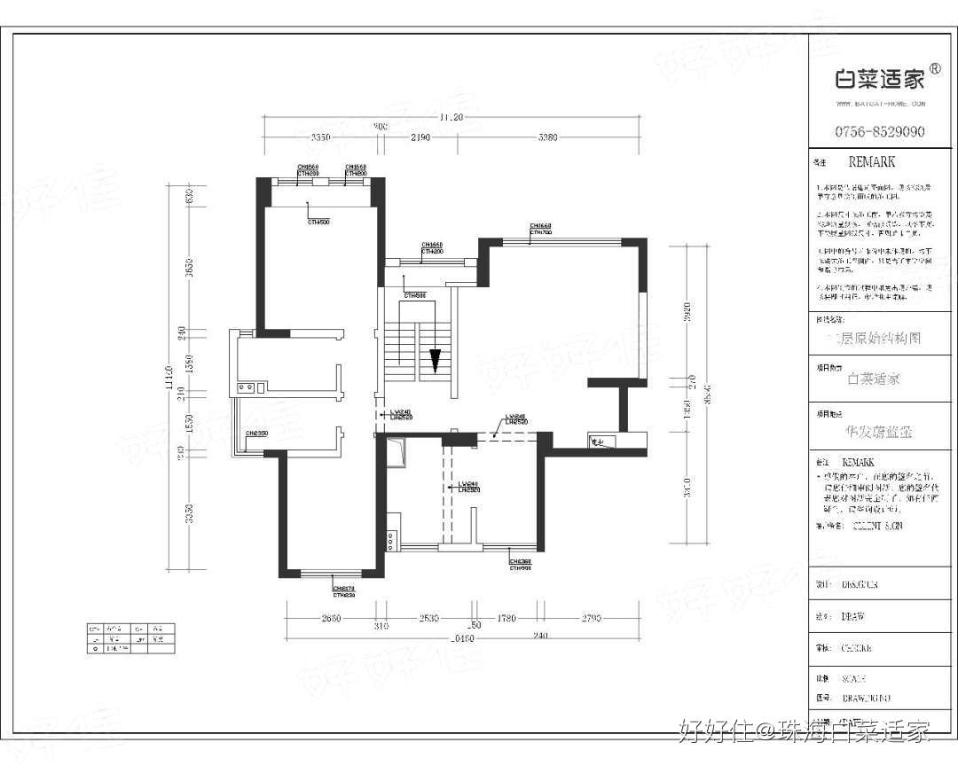
空间布局:本案比较重要的点在于结构改造。
关键之处在于楼梯位置的调整,原有常规的两跑楼梯,造成了楼梯底部使用率极低。
经过精确计算梁位重新设计楼梯,将楼梯改为L型,扩大了一楼近3个平方的实用面
积,改造后增加了一个温馨且童趣的儿童活动空间。
同时,楼梯中空位置配合局部天花的设计,瞬间大气而磅礴。其次,厨房空间的改造
将餐厅空间扩大了一倍,不仅增加了整个家的采光,也使得空间更加敞亮。 -
设计选材:在材质色彩方面,胡桃木的天然纹理、包括楼梯扶手及飘窗台面大量采用的原木质感,
以及哑光白墙面、爵士白的墙地砖,白色与原木色延续了轻日式的特色,通过两者巧
妙地运用营造出舒适而雅致的氛围,同时局部的软装跳跃色彩为这个家增加了更多趣
味。 -
用户体验:看完整套作品,你会发现每一张实景照片似乎都在叙说主人的情感投入,这也是我们
所期望的“装修”不仅仅只是“装修”,它最终能给主人带来另外一种时间,另外一种栖
托。
这,才是设计的根本。

