鸿艺源设计|桂林碧园·华骊茗城售楼处设计
974 - 项目类型:样板间/售楼处
- 项目地点:桂林市
- 建筑面积:500.0000㎡
- 项目造价:200.0000万元
- 主案设计师: 郑鸿
- 竣工时间:2019-12-10
- 设计机构:深圳市鸿艺源建筑室内设计有限公司
-
项目定位:桂林的山水,在众多词人墨客笔下,是似幻似真的仙境所在。时间的步履在这座城中是缓慢、悠哉的,城市的喧嚣在山川的浸润滋养中被吹拂散开,生活在此,尽是闲适与惬意。依托独具风格的山水资源优势,设计师意将华骊茗城打造为一处具有都市人文风情的宜居示范空间,引领桂林文旅休闲、养生宜居的舒适慢生活。
-
空间意境:设计师提倡以简约、美好且舒适的形式营建空间的美与功能,将现代设计与在地人文相融一体,以桂林山水延绵的自然毓秀化为空间的情感话语,赋予诗性的美,打造观者舒适怡然的感官体验,以此勾勒居住者的生活理想样态。
-
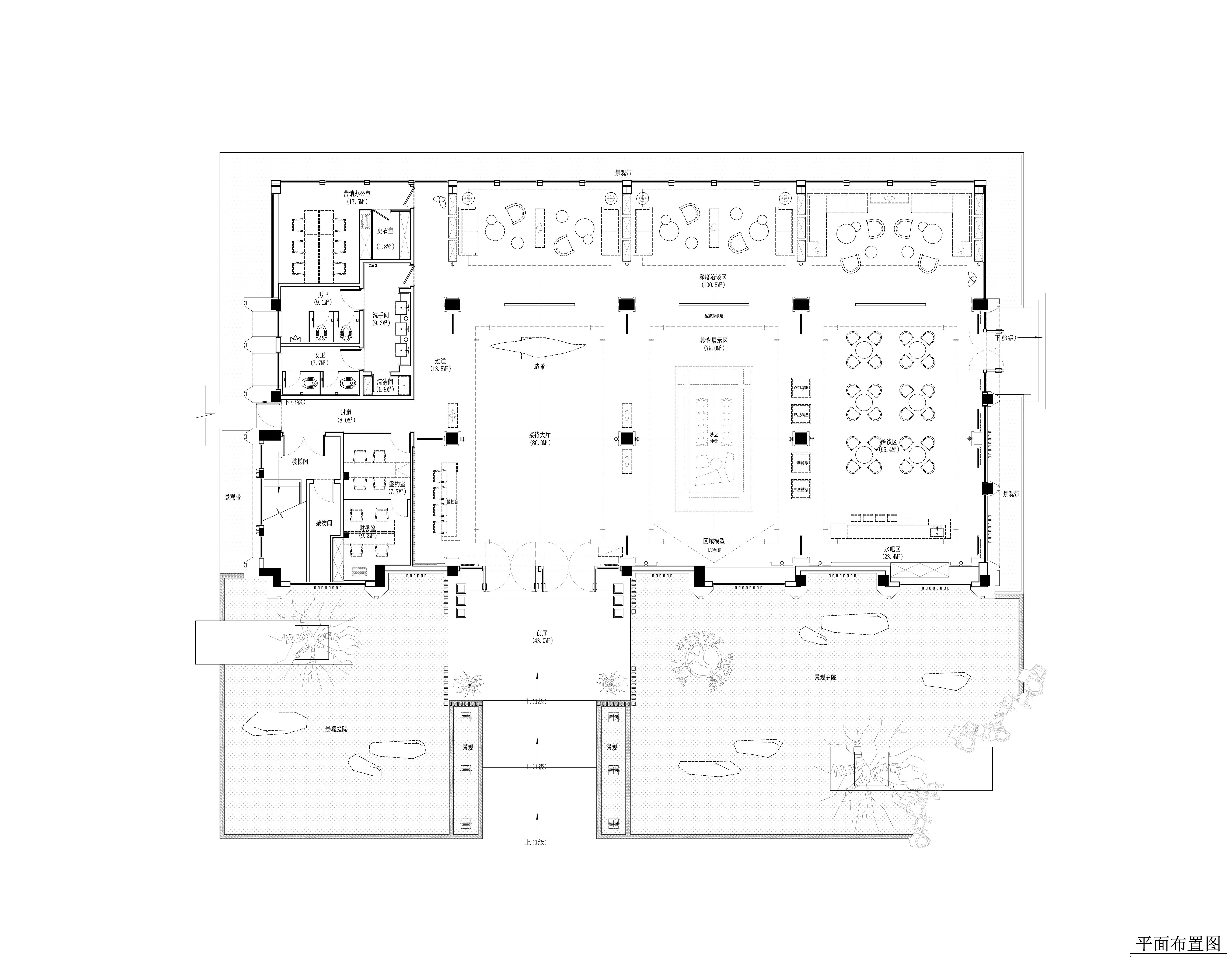
空间布局:原空间光线不够,层高优势发挥不明显;整体格局和设计都比较乱,前台区域比较拥挤;空间动线设计不合理,功能布局混乱且不清晰;整体外建筑设计陈旧、过时。
针对原有局限设计做了如下调整:在大门位置增加门厅,让室内外形成自然过渡,以增强了空间的仪式感;打通公共区域,将增加空间通透感;将建筑整体进行外扩,留出空间设计阳光房,增加室内面积,改善采光不足;重新规划人流动线,让客户动线更加清晰合理;拆除原有天花整体设计造型,以便更好的展现层高优势;秉承一切去繁从简的原则,让空间更加统一协调。 -
设计选材:整体运用木饰面、石材、黑钢等材料,保证空间设计的低碳环保性,让整体氛围更贴近自然。
-
用户体验:相较于改造前的使用而言,整个售楼空间焕然一新,提升了甲方在此空间的商业价值,也给予了来此的宾客更加舒适的空间体验。
江作青罗带,山如碧玉簪。 ——韩愈 桂林的山水,在众多词人墨客笔下,是似幻似真的仙境所在。时间的步履在这座城中是缓慢、悠哉的,城市的喧嚣在山川的浸润滋养中被吹拂散开,生活在此,尽是闲适与惬意。 依托独具风格的山水资源优势,碧园在此,携手拥有15年设计经验的鸿艺源设计,意将华骊茗城打造为一处具有都市人文风情的宜居示范空间,引领桂林文旅休闲、养生宜居的舒适慢生活。 坚持以简为美、以质为雅的鸿艺源,提倡以简约、美好且舒适的形式营建空间的美与功能,将现代设计与在地人文相融一体,以桂林山水延绵的自然毓秀化为空间的情感话语,赋予诗性的美,打造观者舒适怡然的感官体验,以此勾勒居住者的生活理想样态。 一湖新景,写境如仙 接待厅
接待厅 宛如湖景的碧色,与几何线条的错落铺排相融相生。一旁装点的玻璃艺术品,以水花的柔美卓姿,写意清透雅澹的意韵。空间在自然人文语素与现代极简形制的融合中,刚柔并蓄。
沙盘区
沙盘区 沙盘区的艺术吊灯,如云雾落入空间,又似涟漪圈圈散开,设计以现代手法演绎出山川自然的旷远与灵性、清幽与意趣,恰有一番“夫唯不争,而众美纷至沓来”的祥和静气之感。
深洽区 空间借镂空形制的屏风形成区隔的同时,亦不失通透性。屏风的意象取自轻柔的苇草,阳光穿透过其间的细缝,熹微且暖,将人的记忆点拉至田野麦浪中,光与暖并存,深入人心。
深洽区
深洽区
深洽区
设计以暖调的木色统筹,萦绕其间的氛围是美好而富有温情的。墙上的挂件如扁舟淌水,窗旁的雨帘疏密有致,通高的木制书架衔接建筑天花形态,纵向拉伸视觉效果。在这方雅座上沏杯清茶迎接来客,一同感受高雅旷达的自然人文情感。
洽谈区
洽谈区
水吧区 水吧区以粗粝与光滑相衔的材料搭建,材料丰富的表现力与层次感,在简雅的环境背景中被发挥到了极致。基于空间比例、功能使用、美学营造等考虑,鸿艺源在设计中规避不必要的繁冗杂饰,只以数只清雅的瓶樽、轻盈的水晶吊灯与清冽的小处盆景装点,恰如这座城市予人的感觉一般,含蓄悠远,闲适怡人。
水吧区
水吧区
平面图
0
0

认证 · 让您身份增值