石子九酒店



作品说明
- 项目类型:酒店
- 项目地点:重庆市
- 建筑面积:1400.0000㎡
- 项目造价:5000000.0000万元
- 竣工时间:2020-06-16
- 设计机构:薛今设计
-
项目定位:石子九酒店是一个注重交流,互动与娱乐的酒店。主要受众目标是90,00后的年轻游客们。因此我们希望这个酒店与传统酒店相比,除了为旅行者提供基本的住宿服务以外,更加可以提供一个良好的互动平台,成为一个时尚互动为一体的年轻人打卡聚集地。我们也希望酒店能够体现一些当地的民俗民风,能够让游客对重庆这个城市留下一个深刻的印象。
-
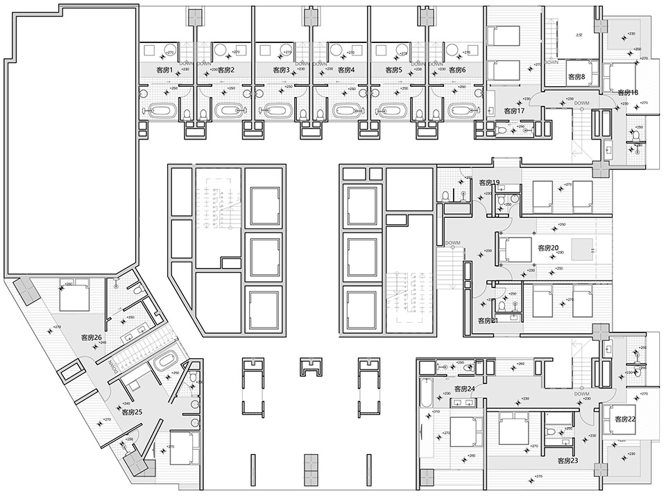
空间意境:建筑的原始平面结构是以一条狭长封闭的走廊连接各个房间与电梯楼梯间,并没有任何的公共区域可以使用,这不是我们所期待的空间形式,为了营造一个更加趣味性的酒店体验,我们尽量的精简房间内部的布局,将原本狭长的走廊变得更加宽敞和富有变化性以及功能性。我们在酒店的公共区域设置了酒吧和餐饮中心,以及散落在各个部位的众多休闲区域,让整个酒店的公共区域看起来更像是一个大型的咖啡厅或者休闲会所,使顾客的身心得到放松。而每一个酒店的房间则是以环绕的形式,分布在整个公共空间的四周,希望这样可以让顾客更想走出房间在公共区域中自由活
-
空间布局:酒店的层高只有4.8米,我们需要在这个有限的高度空间中,隔出两层来设置上下两个功能齐全的独立酒店房间,以及两层房间所需要的全部管线。为了保证两层的房间都有一个舒适合理的房间高度,我们就不能单纯的把2层的地面设定为一个固定的标高,而是仔细分析了每一个房间内不同活动所需要的合理高度,来专门设置1,2层的空间布局。例如我们将2层床的高度以下的空间都分配给一层使用,来增加一层天花的高度,而我们降低一层的厕所,床等空间的天花板高度,来增加二层房间的空间高度。这样的设计,每一个房间中就会出现各种高低不一的空间场所,居
-
设计选材:为了体现出怀旧感,我们大胆的将青砖这种室内设计中不太常见的材质直接裸露在空间里,虽然是老旧的材料,但正因为没有过多的修饰,经过特意的布局,让它在酒店中显得并不突兀,反而以刚好的方式为空间增加层次。
我们希望最大限度的使用自然光源,因此我们将公共区域的隔断做的更加的通透,并将酒店的主色调定为白色。可以更大限度的折射光源,使室内变得明亮。另外部分房间的门我们也改装成能够透光的形式,这样原本黑暗的走廊在白天自然光线照射下也变得更加的明亮。 -
用户体验:酒店和预想的一样特别漂亮,有设计感,原木色的色彩搭配,采用黑白,以及木色组合,并强调线条感,并结合了当下最流行的无主灯设计,简洁流畅。卫浴及床垫空调都用的比较好的品牌,保证了良好的使用感。卫生也做得不错,不像民宿那样敷衍。
一直不喜欢住中规中矩的酒店,从这个酒店的设计来说吧,设计师在房间中把空间利用到极致,从另一个角度来说也是压缩了成本,所以这个酒店在性价比方面肯定是优于其他酒店的,再从位置来说,酒店其实本身位置一般,没有解放碑嘈杂,没有洪崖洞夜景;但是该酒店的设计本身就是一个特点,在酒店的公共区

