双钢路旧公寓改造


作品说明
- 项目类型:住宅公寓
- 项目地点:重庆市
- 建筑面积:71.0000㎡
- 项目造价:100000.0000万元
- 参与设计师:伊莎贝尔
- 竣工时间:2020-06-16
- 设计机构:薛今设计
-
项目定位:如今,中国新建的高楼如雨后春笋般的出现,而老旧的房屋逐渐的被遗忘与淘汰,希望本案对于老公寓的改造提供一种参考,今后能有更多的设计师更好的发掘与发挥老房的改造价值。
-
空间意境:为了在有限的预算内将此公寓改造成一个在审美上功能上都更符合当代需求的新公寓,因此我们简化了整个装修的程序,将室内的很多墙面留出原始的水泥面,不做任何修饰,而在设计了的部分上保证一定的品质与精致度,让整个公寓在精致与粗狂之间形成鲜明的对比,在这种冲突感中又用设计的手法进行搭配和整合,使之看起来又充满和谐感。
-
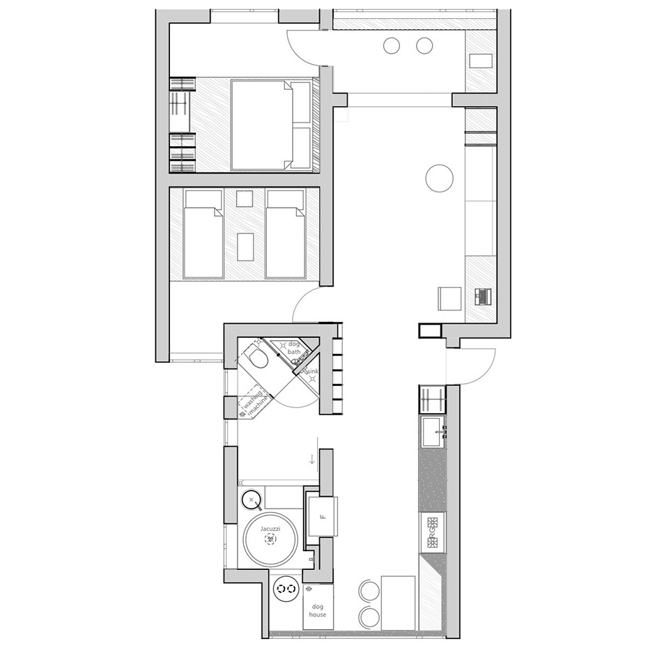
空间布局:老的卫生间和厨房面积都偏小,通风采光也达不到意向的要求,因此,厨房与厕所的扩大成为了必然。然而此居民楼房内几乎所有的墙体都是承重墙且不可拆除。因此全新的功能布局必须在不改变原始墙体结构的情况下进行设计,这无疑增加了改造的难度。整个设计的核心是在不拆除主要墙体的情况下,将厨房重新设置到一个新的空间内,并将厨房与其他功能空间共享成为一个更大的开放空间,更加宽敞,明亮以及舒适。我们也将固定的家具如沙发,书桌,柜子等组合成一个整体,并整合到同一面墙,尽可能的扩大活动空间,改善公寓原有的拥挤感。整合后的家具将会呈现
-
设计选材:我们依然是选择原始的幕僚作为设计的主要材料之一,没有经过多道程序处理的木头,造价自然是比较低廉,另外,没有处理的木材也更有触感,让人有更加环保的感受。我们简化了施工的工艺,让更多不会直接触碰到的墙面保留没有经过处理的水泥表面,例如天花板床背的墙面等,降低了施工成本的同时,也让房间有了更多的对比变化。
-
用户体验:整个家里拥有一种清新的舒适感,尤其白天,室内空间特别明亮。改造之前房间显得的别阴暗拥挤,改造之后整个空间都变的大了好多。现在还可以在公寓里跳健身操。改造以前的储物柜等家具占用了大量的空间,改造后的储物都跟其他家具整合到了一起,床下面,沙发下面到处都可以放置杂物,空间宽敞了很多。设计过后的家具和整体空间融合到了一起,不仅实用,也让房子更加的美观。

