湘厨家宴
1442
作品说明
- 项目类型:餐饮
- 项目地点:乌鲁木齐市
- 建筑面积:320.0000㎡
- 项目造价:30.0000万元
- 参与设计师:王文凯
- 竣工时间:2018-12-20
- 设计机构:搜候设计
-
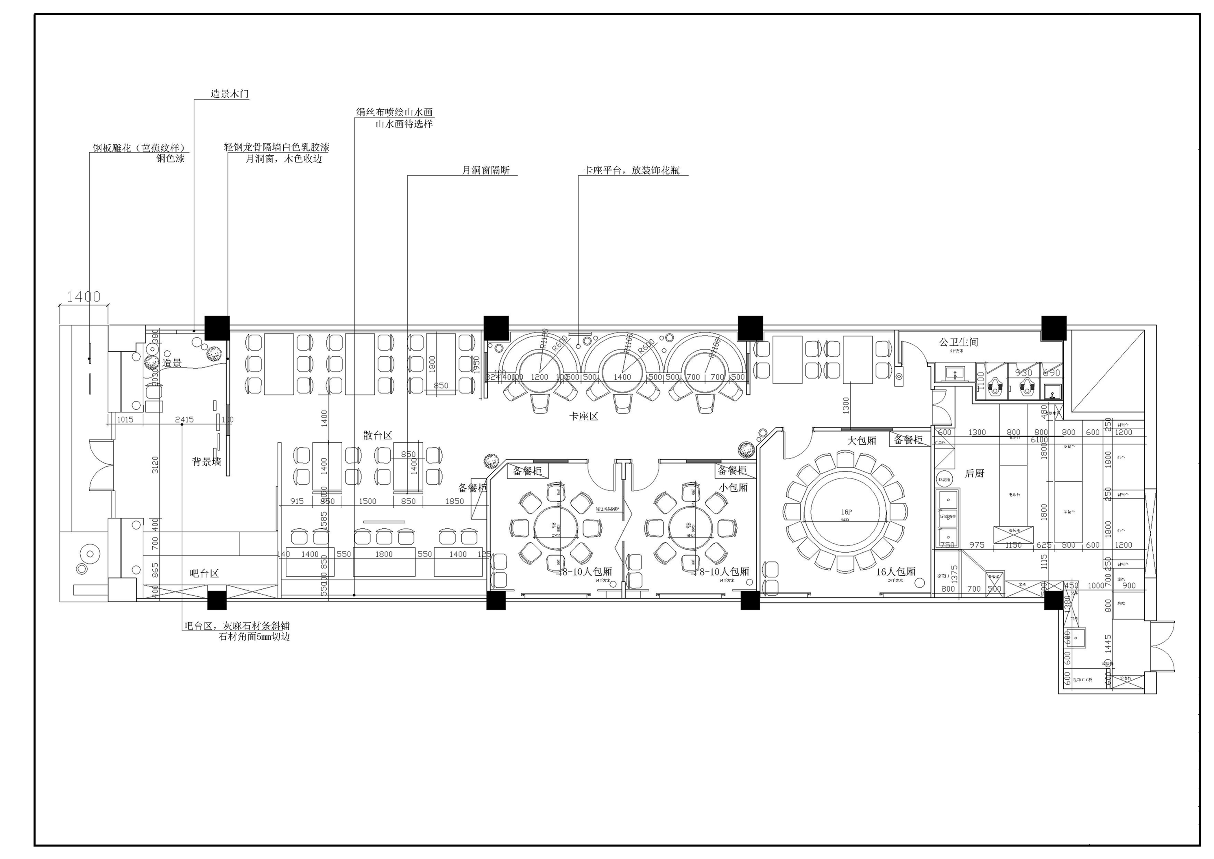
项目定位:门头左面芭蕉叶钢板雕花,在白墙的烘托下,吸引餐客,右侧芝麻灰石材中间区域做马灯,增加入口区域的氛围。
-
空间意境:进入大厅,月洞墙映入眼帘,视线透过梅花形月洞窗,扩大了空间感,映射出店内的氛围。月洞墙面采用水泥板铺贴,右上角亚克力文字做成的诗句为这副画面,题词落款,秀丽大方。左侧墙面做假景木门,增加空间,也起到了一定的装饰作用。一盏灯笼让整个空间温馨且富有诗意。右侧吧台区:吧台用材为芝麻灰石材加实木板,石材条竖向叠压铺贴,加以木色搭配。主灯为三个阵列灯笼形灯,使空间井然有序。
-
空间布局:顶面结合圆形卡座造型,做石膏板造型,上下呼应,走廊区阵列感的鸟笼,为走廊区域增加进深感,花艺与右侧的包厢墙面色彩搭配相互呼应。彰显空间主题色。
采用梅花形状作为包厢的顶面造型,暗藏槽灯,背景为绢丝布喷绘山水画,增加空间意境和视角。墙面用彩色斗笠,增加墙面造型和陈列装饰物品,朴实的食材迎合特色餐饮主题,烘托湘菜的热情与美味。
走廊区一排蓝色铜色的鸟笼吊饰,阵列排布,增强空间透视。现代装置艺术的手法植入空间氛围,吸引视线。地面用材为水泥地坪漆,走廊区域做水浪纹搂缝,工艺感的同时,对区域起到划分和引导流线的 -
设计选材:墙面用意境深远的山水画,绢丝布喷绘,加以铜色收边,扩大空间感,弥补了空间的横向宽度,木格栅斜拼做成简易屋顶几何形,遮挡顶面管道的同时,增强了空间局部氛围和围合感。
月洞隔断简洁明快,加以白色衬托,增加空间的流线转折和视觉美感。 -
用户体验:窗外芭蕉惹骤雨,门环惹铜绿。
万里思乡情,怎奈潇湘情深意浓。
缘来——湘厨。
0
0

认证 · 让您身份增值