期待
352
作品说明
- 项目类型:别墅
- 项目地点:苏州市
- 建筑面积:300㎡
- 项目造价:260万元
- 主案设计师: 王琪
- 参与设计师:王林
- 竣工时间:2019-10-20
- 设计机构:星杰国际设计
-
项目定位:本案定位现代风格,但是业主又比较喜欢法式线条,所以需要我们将两个完美结合
-
空间意境:设计上不失现代的简约,又不乏法式的浪漫
-
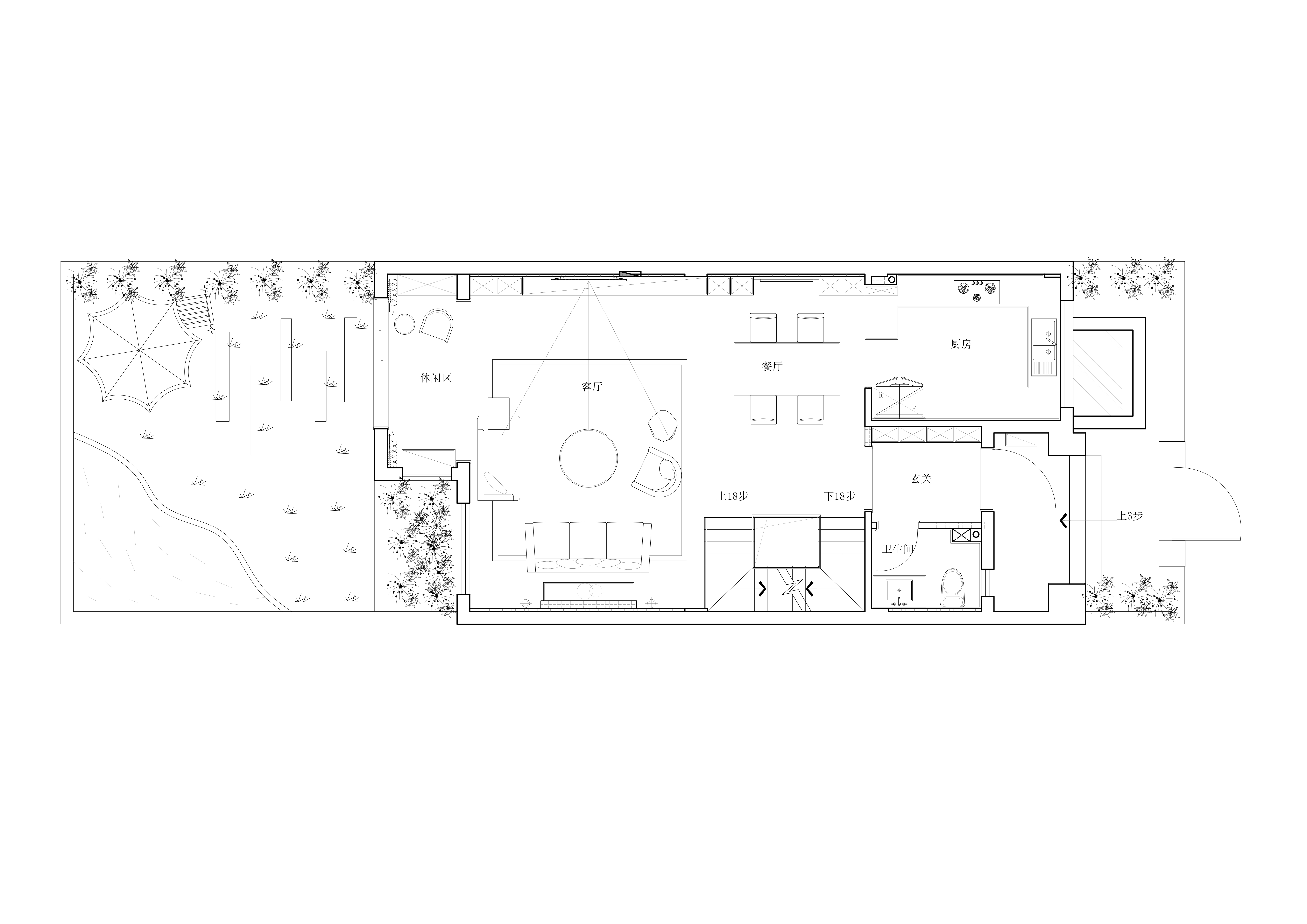
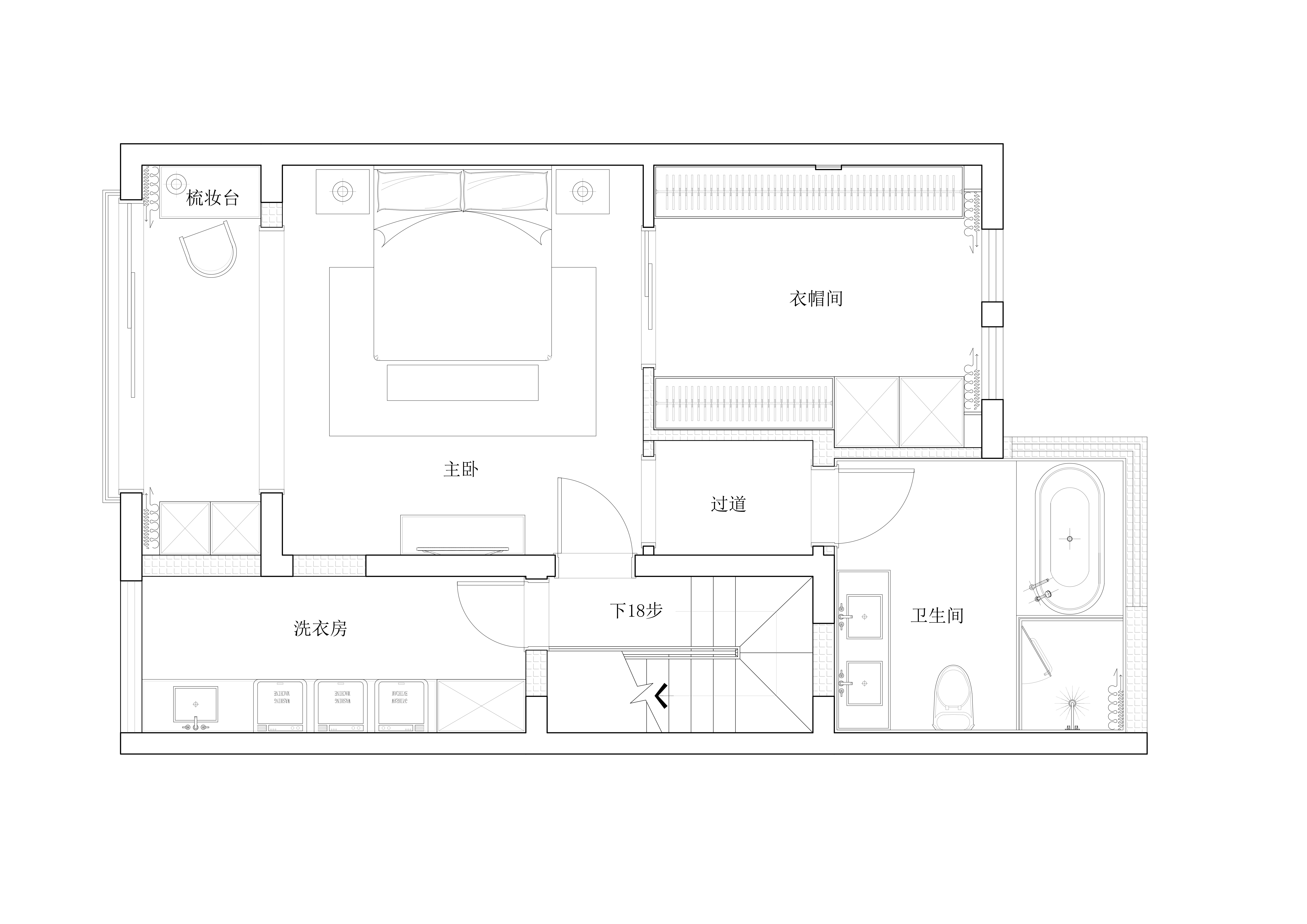
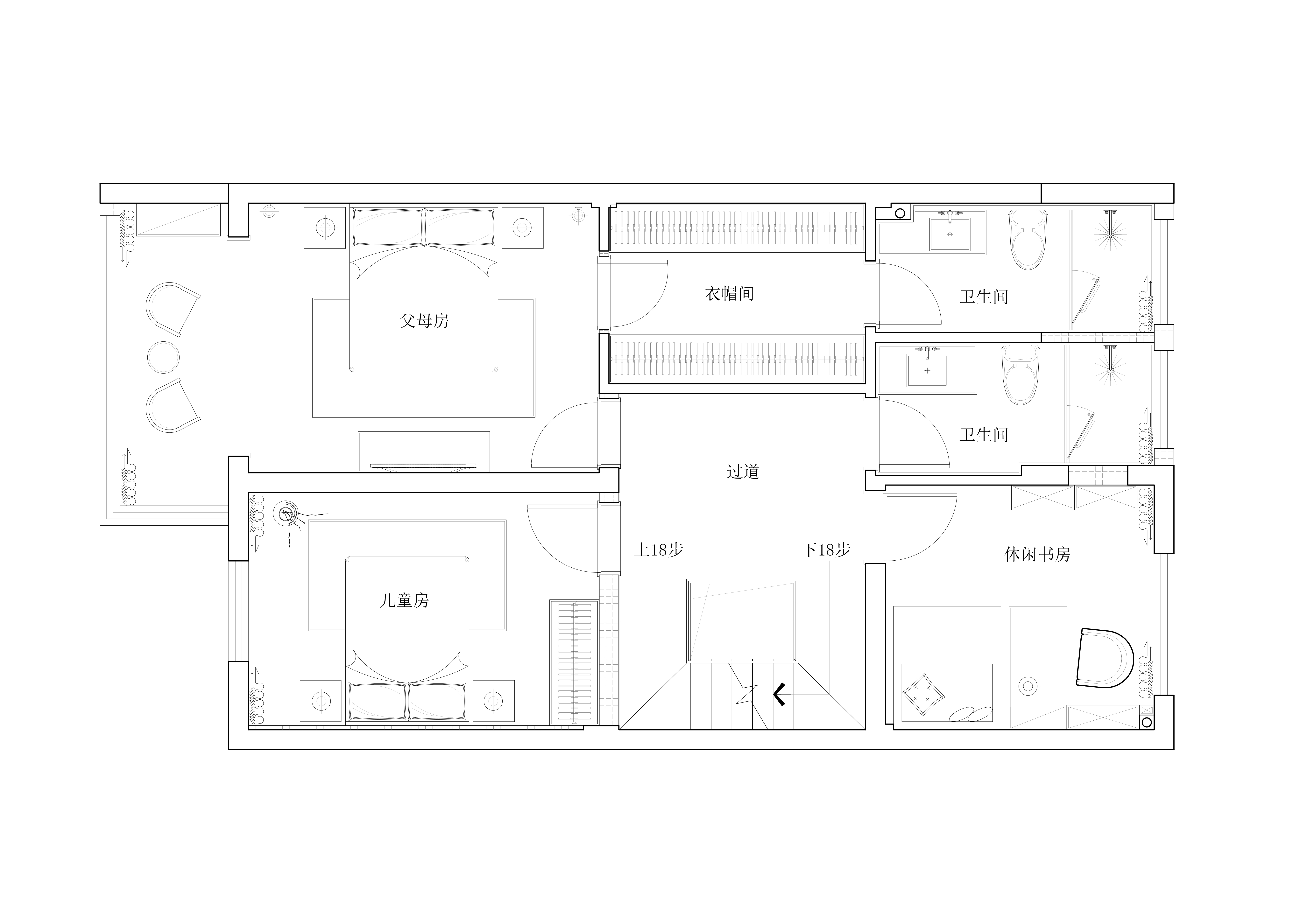
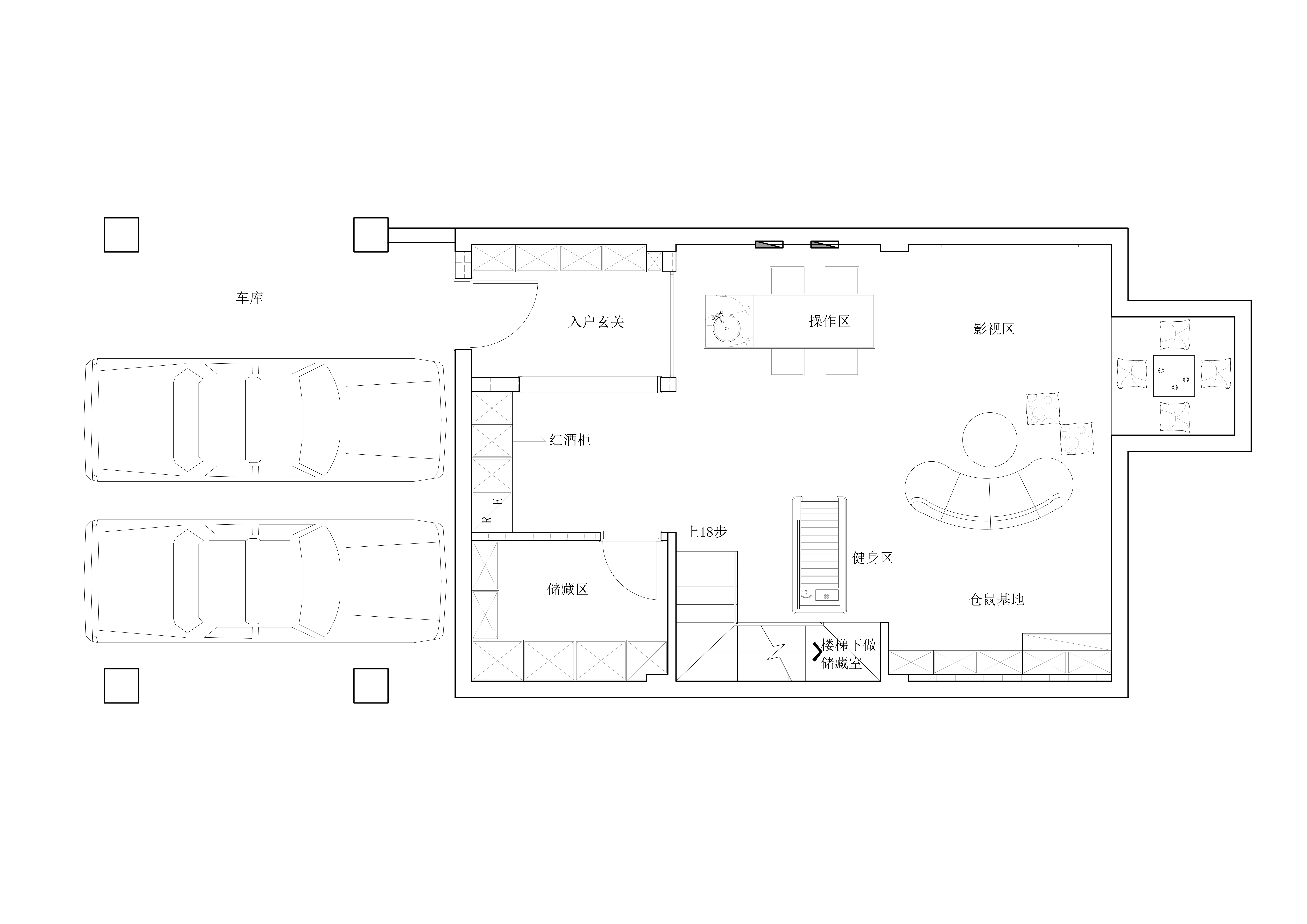
空间布局:一楼整个空间比较小,在布局上将厨房做成开放式,将空间做大,增加视觉通透力
-
设计选材:大面积使用环保涂料,局部点缀木饰面既环保又点题
-
用户体验:业主本人与父母都非常满意
0
0

认证 · 让您身份增值