-
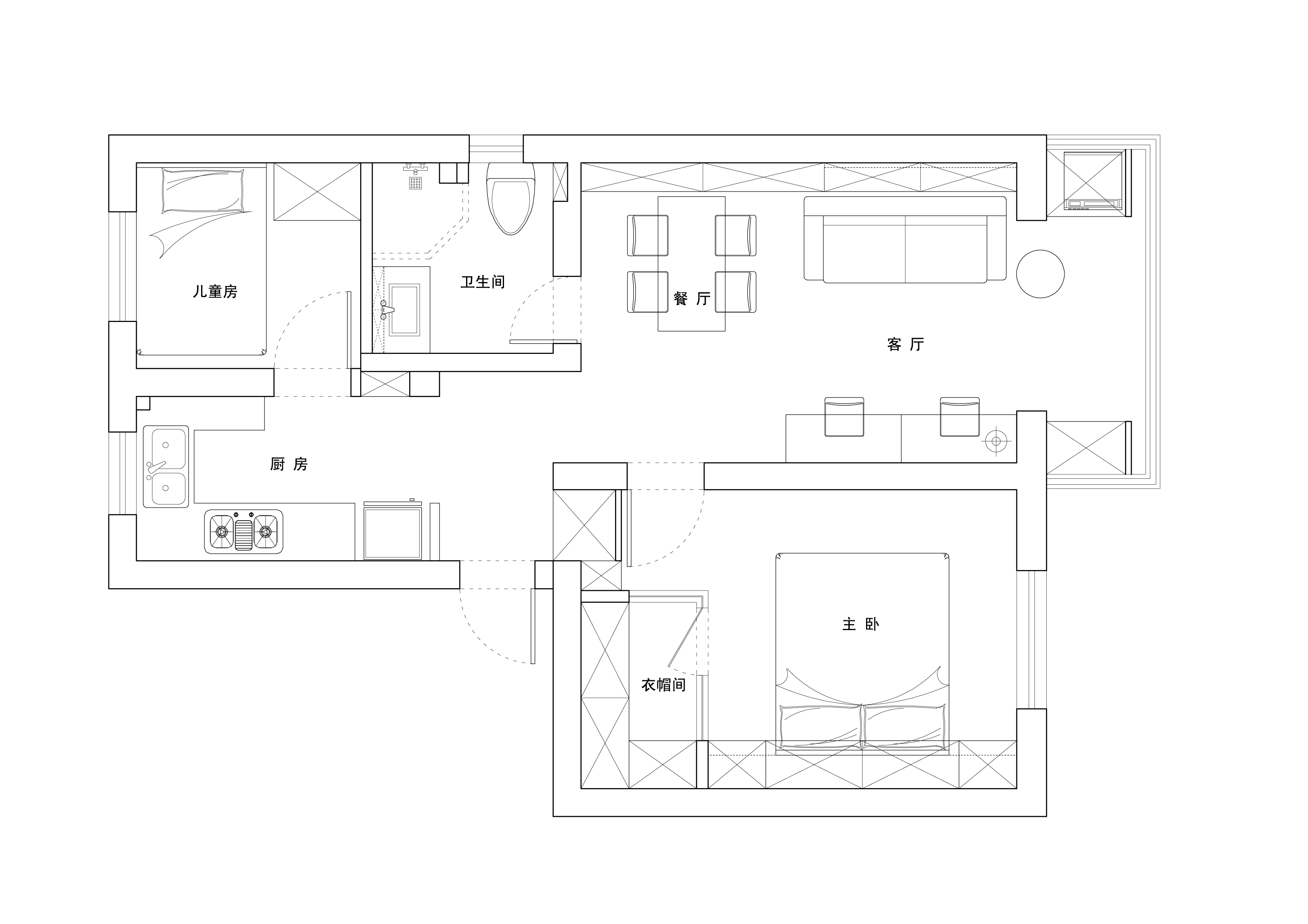
项目定位:南北通透且全明,已然是老龄学区房中不错的户型。然而原本的破旧装修、空间格局已不再适合屋主对于高品质生活的要求。将原本三房的设计改为两房,将其中一房改为多功能区,也是该房屋改造中最具个性化的空间,区别于传统客厅三件套的硬性标准,多功能的使用空间,极大地提高了空间利用率。一切都是为了孩子,70年代的学区房大变身,重新改造后比之前看起来大了一倍。
-
空间意境:内部的新和窗外的旧形成强烈对比
-
空间布局:放弃了沙发+茶几+电视背景墙的传统客厅三件套设计,客厅区域变身多功能区,满足屋主轻松、简约的生活方式。70年代学区房的采光欠缺,整个多功能区以白为主色调,辅以点光源和灯带照明设计提升整体空间的亮度。巧用镜子拉伸空间,将相对局促的空间扩展增容。集书房、休闲、睡眠于一体的多功能区,实用兼顾艺术感。家是一个放松的地方,爸爸或妈妈在沙发边看书,宝贝在书桌旁学习,最好的教育是父母的言传身教,甚至有时候连语言都不需要。一整面的书柜设计,满足了业主众多藏书的摆放需求。书柜分为上下两部分,上半部分是敞开式书架,下半部分是
-
设计选材:选用成品木皮等材料,避免现场做漆带来的环境污染
-
用户体验:从破旧的楼梯道进入家中,感觉像到了一个新世界
客厅无主灯的设计,餐厅吊灯却更适合,通过照明方式的改变来完成空间的区域分割。虽然整个餐厅占位很小,但清新、雅致。胡桃木色扑面而来的是一股浓密森林的气息,让整体白的空间更显生机、活力。
多功能区的书柜延伸到餐厅,又可以作为餐边柜来使用,多功能在这个空间被利用得淋漓尽致。
平时嵌入在书柜之中的翻板床,不占任何空间,需要时又可以随时打开使用。
户外阳光下斑驳的旧墙,与重获新生的室内空间,新与旧的碰撞,让这个70年代的学区房完美蜕变。
设计是为了更好的生活,原来的阳台被纳入多功能区,增加了室内空间的自然采光,用装饰柜将洗衣机烘干机隐藏,在具有客厅娱乐、休闲功能的同时,又兼具生活阳台功能。
胡桃木色扑面而来的是一股浓密森林的气息,让整体白的空间更显生机、活力。
胡桃木色扑面而来的是一股浓密森林的气息,让整体白的空间更显生机、活力。
新旧对比强烈
绿色植物带来的生机勃勃
洗衣机烘干机的藏身之所
洗衣机烘干机的藏身之所,打开就可使用
书柜分为上下两部分,上半部分是敞开式书架,下半部分是封闭式收纳柜和翻板床。平时嵌入在书柜之中的翻板床,不占任何空间,需要时又可以随时打开使用。
主卧室同样是灰与白的主场,空间跨度足够,在主卧室床头设计了一组储物柜作为床头背景,既增加了大量的储物空间,造型设计又不失美观。筒灯、灯带、壁灯集合的照明设计满足了各个需求不同的光照明度,整个房间显得干净、明亮。
女主人梦寐以求的步入式衣帽间,打破传统采用长虹玻璃作隔断,通透感十足。所有衣物采用悬挂式收纳,收容量大且一目了然,便于衣物的收纳和拿取,大大节约了挑选衣物的时间,让整理也变得简单。
主卧室同样是灰与白的主场,空间跨度足够,在主卧室床头设计了一组储物柜作为床头背景,既增加了大量的储物空间,造型设计又不失美观。筒灯、灯带、壁灯集合的照明设计满足了各个需求不同的光照明度,整个房间显得干净、明亮。
筒灯、灯带、壁灯集合的照明设计满足了各个需求不同的光照明度,整个房间显得干净、明亮。
集书房、休闲、睡眠于一体的多功能区,实用兼顾艺术感。家是一个放松的地方,爸爸或妈妈在沙发边看书,宝贝在书桌旁学习,最好的教育是父母的言传身教,甚至有时候连语言都不需要。
所有学习和玩耍的空间被移至公共的多功能区,儿童房主要为睡眠空间,干净而素朴,一组装饰收纳柜满足了小朋友的日常衣物收纳,整个房间洋溢着简单和童真。
空间不大,厨房U型橱柜设计最大限度地扩大了使用空间,同时又是通往儿童房的必经之地,所以采用了开放式厨房的设计,灰与白的搭配延续了客餐厅区域的色彩搭配,提升原本空间的亮度。
卫生间改造之后也焕然一新
门厅的收纳体系
集书房、休闲、睡眠于一体的多功能区,实用兼顾艺术感。家是一个放松的地方,爸爸或妈妈在沙发边看书,宝贝在书桌旁学习,最好的教育是父母的言传身教,甚至有时候连语言都不需要。
平面图

