内外之间——百利玛门窗佛山展厅



- 项目类型:展示
- 项目地点:佛山市
- 建筑面积:400.0000㎡
- 项目造价:160.0000万元
- 竣工时间:2019-08-02
- 设计机构:梵池设计
-
项目定位:产品仅仅是产品本身吗?是我们眼睛所见,手能触摸到的全部吗?还是会有更多信息的传递?梵池设计师吕林林认为:人需要在具体的环境中去认知产品,不同的环境会赋予产品不同的意义。门窗作为一种常见的建材产品,在现代生活中已不再局限于采光通风的基本功能,而更多的体现了居住者的精神诉求。透过窗户,他们表达自己对时间与空间、人与自然、自我与外界的理解和认知。百利玛门窗一直是梵池设计的战略合作门窗品牌,我们之前已有数次成功的合作经验,梵池团队对百利玛产品、品牌及团队亦有深刻的认知,而本案作为百利玛门窗总部所在地佛山的旗舰展厅
-
空间意境:此案设计师从建筑入手,通过营造空间光影、空气、流水的意境,让客人在其中不断探索,感知产品,寻求诗意的表达,强调整体的美感。
设计师在空间中营造了一处中式内庭院的场景,让客人在进行商务洽谈的时候依然能时刻感受自然之美,始终贯穿在设计者营造的空间氛围当中不曾抽离。
通往楼梯间的区域则以独立体块方式呈现,楼梯设计本身具有很强的建筑形体美,此处设计师通过材质灯光的运用,增加轻盈通透感,与门窗产品的特质协调统一。 -
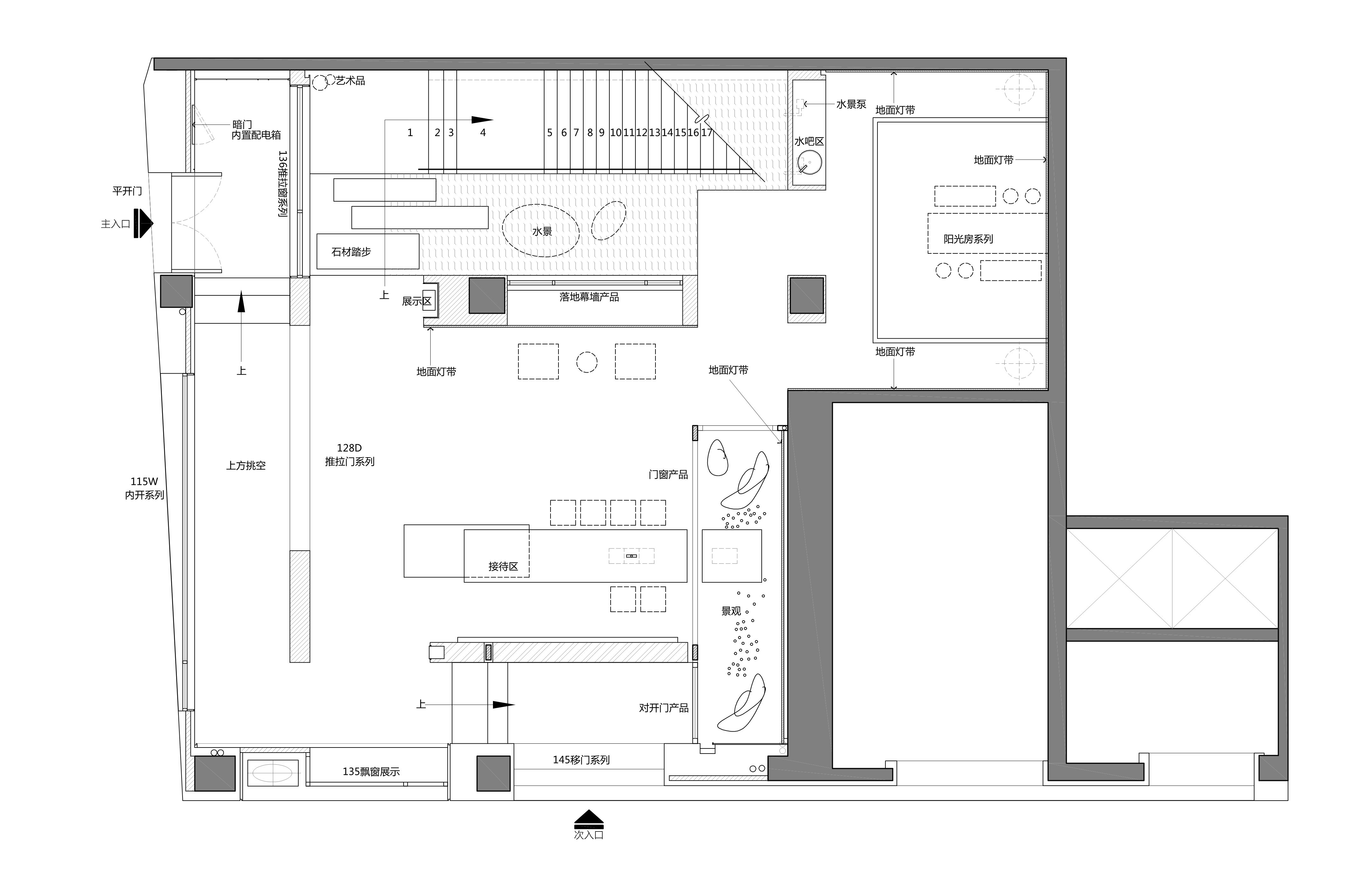
空间布局:原建筑为两层复式,中央挑空的格局,我们进行了二次改造,将挑高空间规划在了入户部分,客人进入室内,六米的层高舒适自由,拾级而下,一处八米长的窗户映入眼帘,超长的窗户装饰亦成为展厅吸引游人驻足、进入的一处亮点。
进入大厅是核心销售区,销控台与背景的结合,自然形成了前后通道。
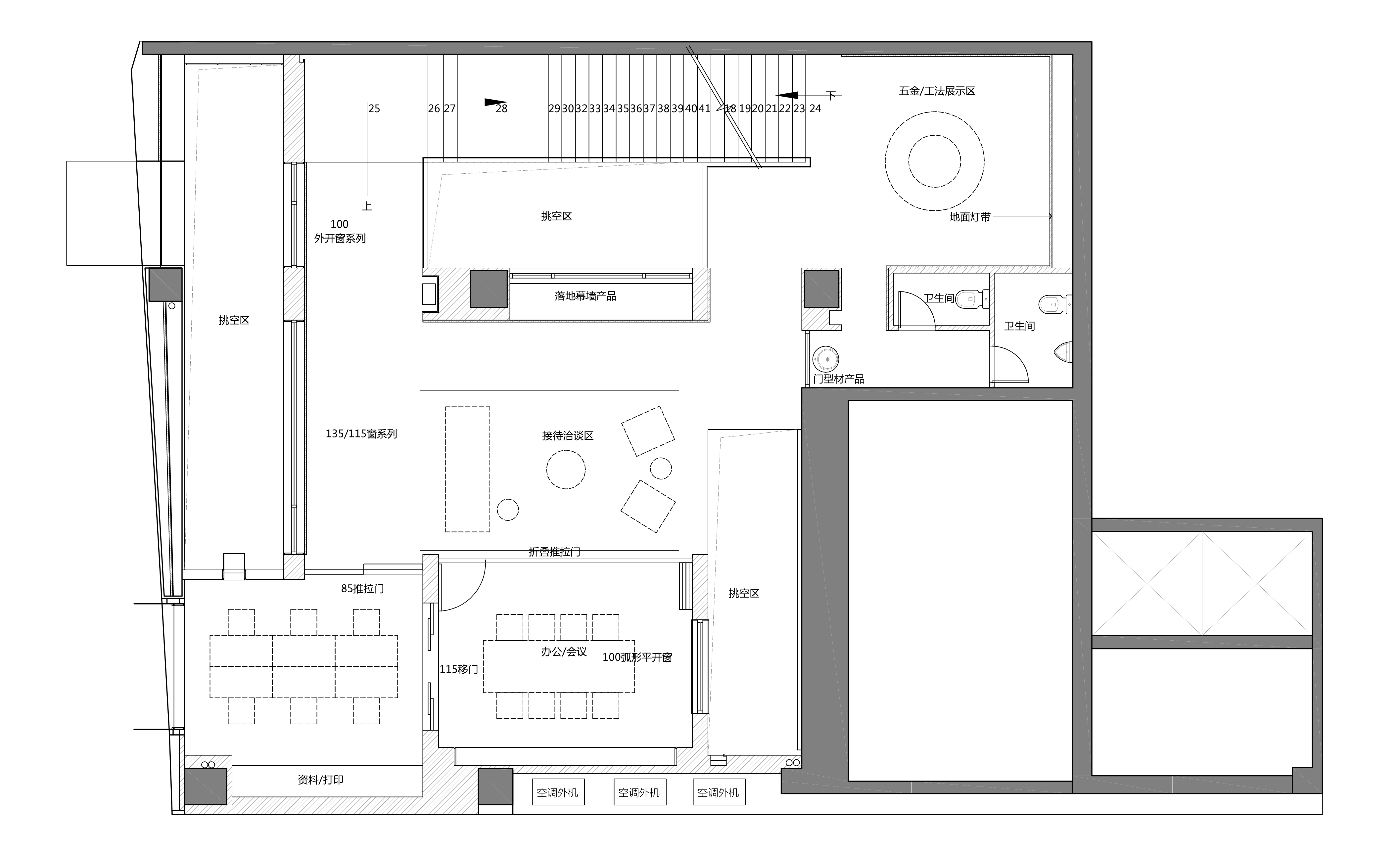
二层区域主要以办公和功能区为主,在空间规划上注重二层空间与挑空门厅以及挑空景观区之间的连接互动。整体格局灵动逸然,延续一层气质,调和光影空间关系,寻求诗意的表达。 -
设计选材:头顶上方金属网的运用,将光线再次过滤柔化,午后太阳西斜,点点光斑洒落在二楼洽谈区域,并随日光西斜在地面游走变幻,意蕴十足。
-
用户体验:阳光、空气、流水、自然,唾手可得又弥足珍贵,窗户作为人类建筑的延伸,室内外沟通的桥梁,亦跟人类一样,需要在自然当中寻找自己的意义,而设计师则很好地利用了它,展现了它,由此,建筑内外之间的界限、人与自然的界限变得模糊和暧昧。
产品仅仅是产品本身吗?是我们眼睛所见,手能触摸到的全部吗?还是会有更多信息的传递?梵池设计师吕林林认为:人需要在具体的环境中去认知产品,不同的环境会赋予产品不同的意义。
门窗作为一种常见的建材产品,在现代生活中已不再局限于采光通风的基本功能,而更多的体现了居住者的精神诉求。透过窗户,他们表达自己对时间与空间、人与自然、自我与外界的理解和认知。
百利玛门窗一直是梵池设计的战略合作门窗品牌,我们之前已有数次成功的合作经验,梵池团队对百利玛产品、品牌及团队亦有深刻的认知,而本案作为百利玛门窗总部所在地佛山的旗舰展厅,更加举足轻重且意义非凡。
此案设计师从建筑入手,通过营造空间光影、空气、流水的意境,让客人在其中不断探索,感知产品,寻求诗意的表达,强调整体的美感。
原建筑为两层复式,中央挑空的格局,我们进行了二次改造,将挑高空间规划在了入户部分,客人进入室内,六米的层高舒适自由,拾级而下,一处八米长的窗户映入眼帘,超长的窗户装饰亦成为展厅吸引游人驻足、进入的一处亮点。
而头顶上方金属网的运用,将光线再次过滤柔化,午后太阳西斜,点点光斑洒落在二楼洽谈区域,并随日光西斜在地面游走变幻,意蕴十足。
进入大厅是核心销售区,销控台与背景的结合,自然形成了前后通道。
设计师在此处营造了一处中式内庭院的场景,让客人在进行商务洽谈的时候依然能时刻感受自然之美,始终贯穿在设计者营造的空间氛围当中不曾抽离。
通往楼梯间的区域则以独立体块方式呈现,楼梯设计本身具有很强的建筑形体美,此处设计师通过材质灯光的运用,增加轻盈通透感,与门窗产品的特质协调统一。
二层区域主要以办公和功能区为主,在空间规划上注重二层空间与挑空门厅以及挑空景观区之间的连接互动。整体格局灵动逸然,延续一层气质,调和光影空间关系,寻求诗意的表达。
阳光、空气、流水、自然,唾手可得又弥足珍贵,窗户作为人类建筑的延伸,亦跟人类一样,需要在自然当中寻找自己的意义。
一层平面布置图
二层平面布置图

