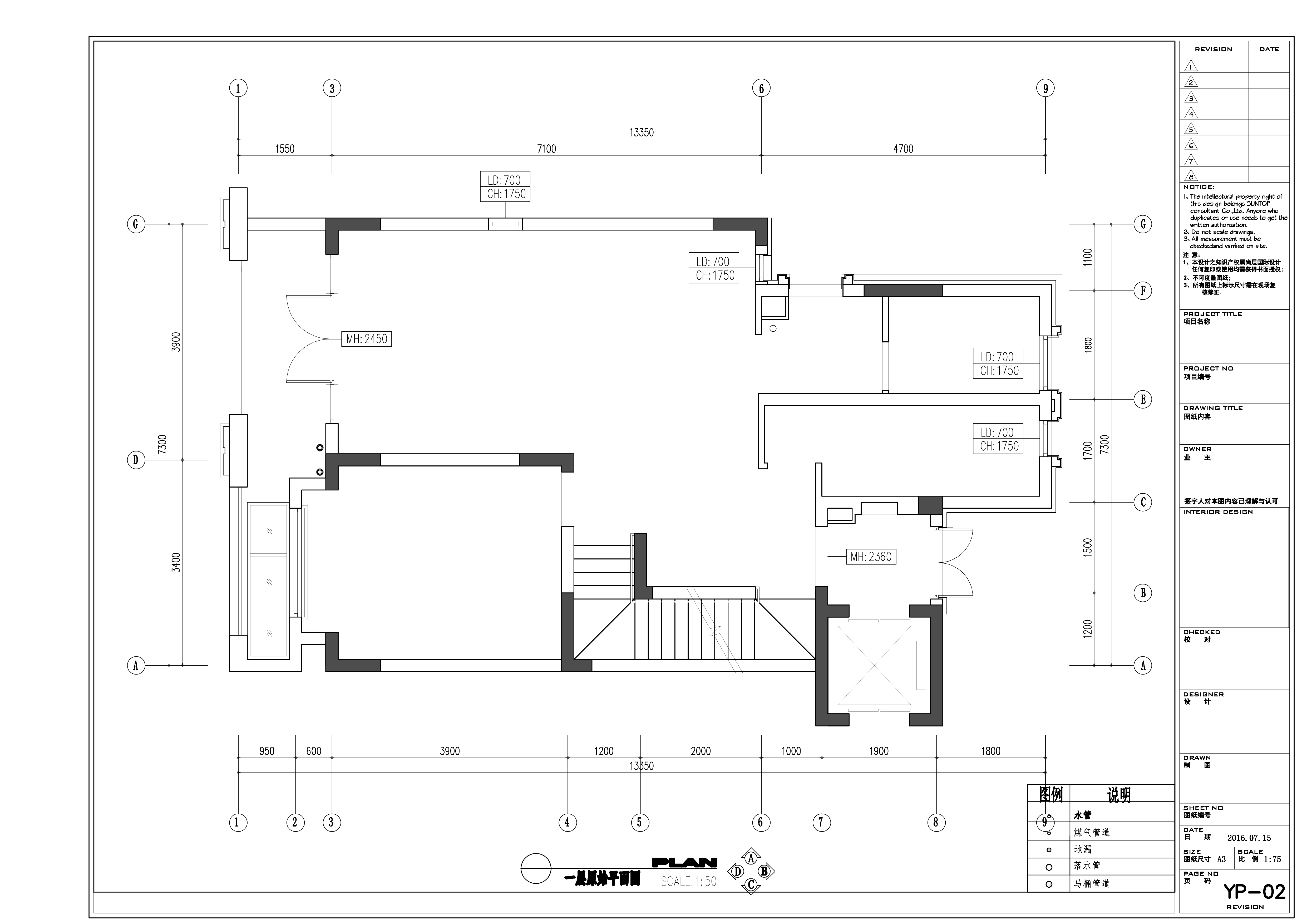
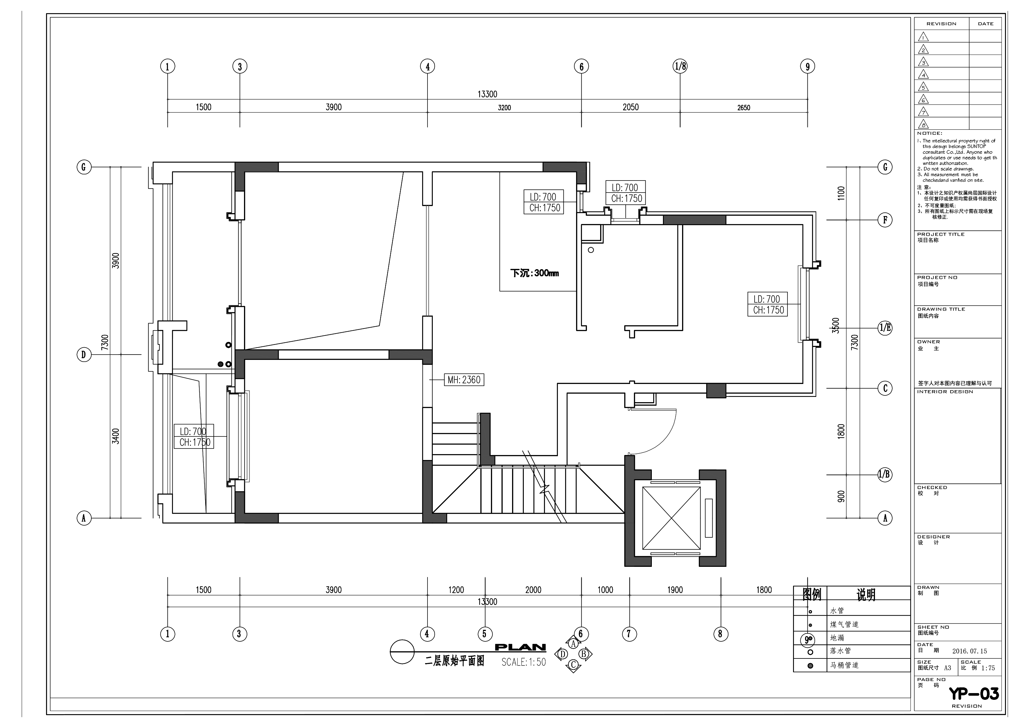
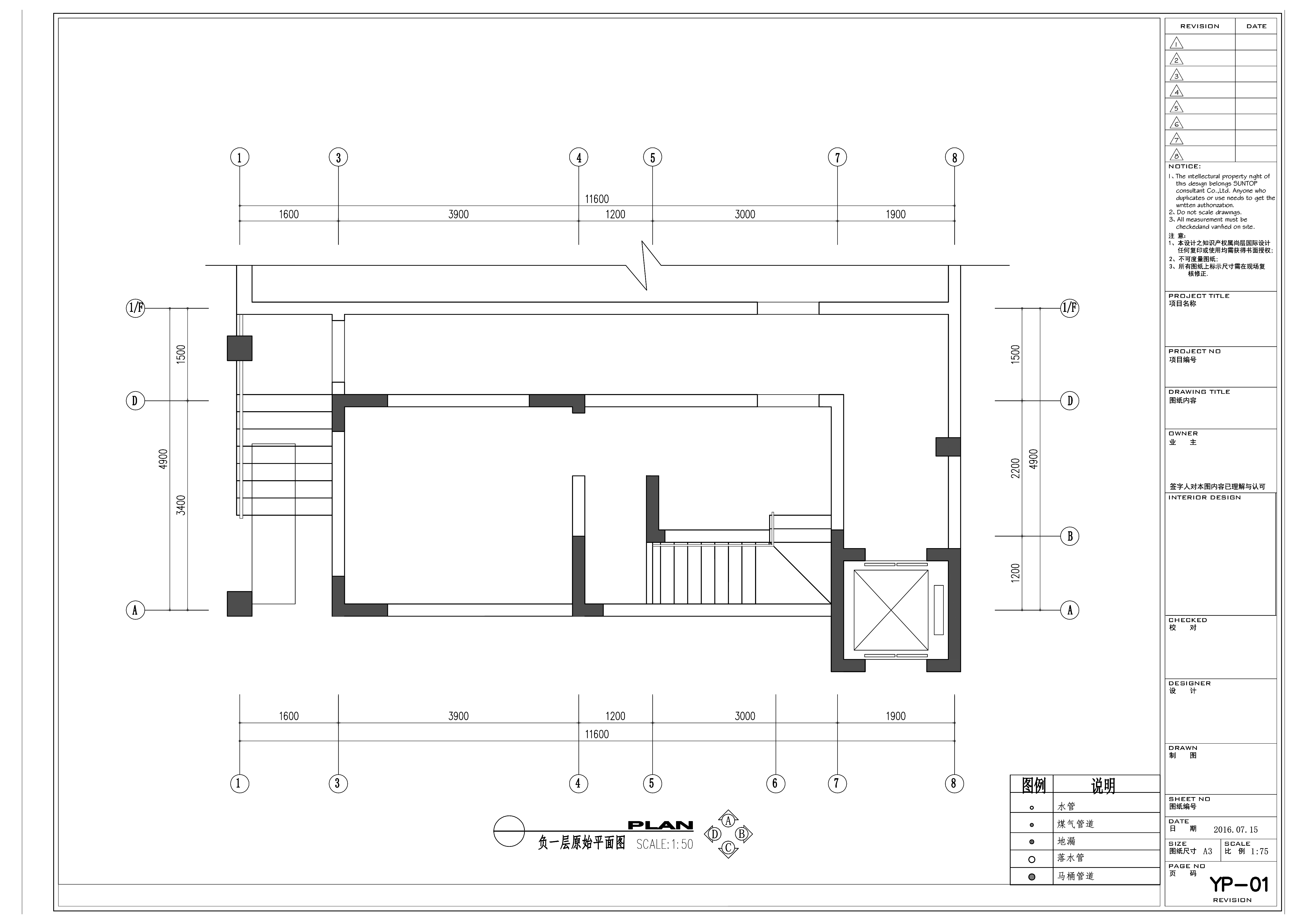
-
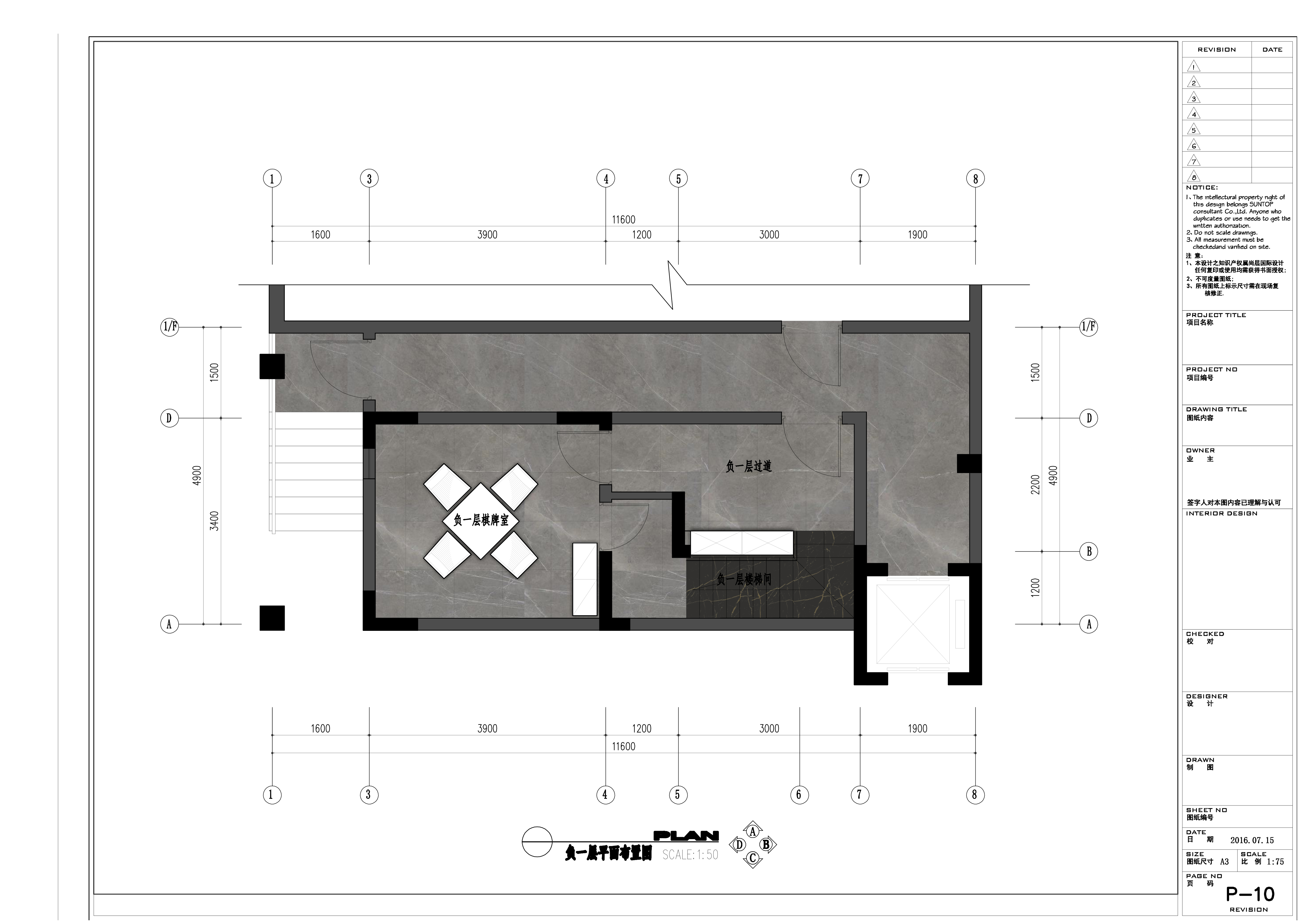
项目定位:简约深沉
-
空间意境:简单深沉
-
空间布局:本案着重于功能运用,将小空间更好的跟上当代年轻人的生活节奏,同时运用很多反差色拉伸空间张力
-
设计选材:选材尽量运用业主喜爱的材质与颜色,且注重环保大气
-
用户体验:业主很满意
5995D35F-2F20-410A-A8E6-672DDD001F75
73F6F437-6BA1-446F-90C4-4715D9EAC0B2
86E268B4-516A-4139-8BA7-29F3F48A78F0
FC24905D-5FC8-485F-90DF-ADBF4370F5CF
78AC5D25-A7B9-499A-88BE-68D083552D77
904546A1-3C0B-4736-A0C4-03EC8B01B5B0
AB03EDA8-20F7-4644-A1ED-91A72BFFA008
A9FB6970-0348-40B1-93C8-5E791B5AC98A
187DB2EF-4C34-4DAD-B8A8-C31E255B5B7C
9D2B1EB6-CC86-41D4-AF0D-541CE7478900
6D87EF4F-3458-4338-9044-1FE5C7131D05
952B07DD-D660-4E1C-92B2-A8A4586B1244
5A9B2512-DA54-4795-AAE7-38700E38B98C
648A7976-EA2C-4C58-8293-DE3A2810548D
EC2478DC-8AAA-4BFA-9C1C-EA37BAC51CA3
B5420F85-341D-4351-846D-80B4F4C80AE8
B91FCDC1-3EF6-45B1-B95E-01E6298CA1B1
CEFA5965-50D5-425B-BA70-EDBABD3BCAD4
0
1

认证 · 让您身份增值
1032