艾迩肤医疗美容门店



作品说明
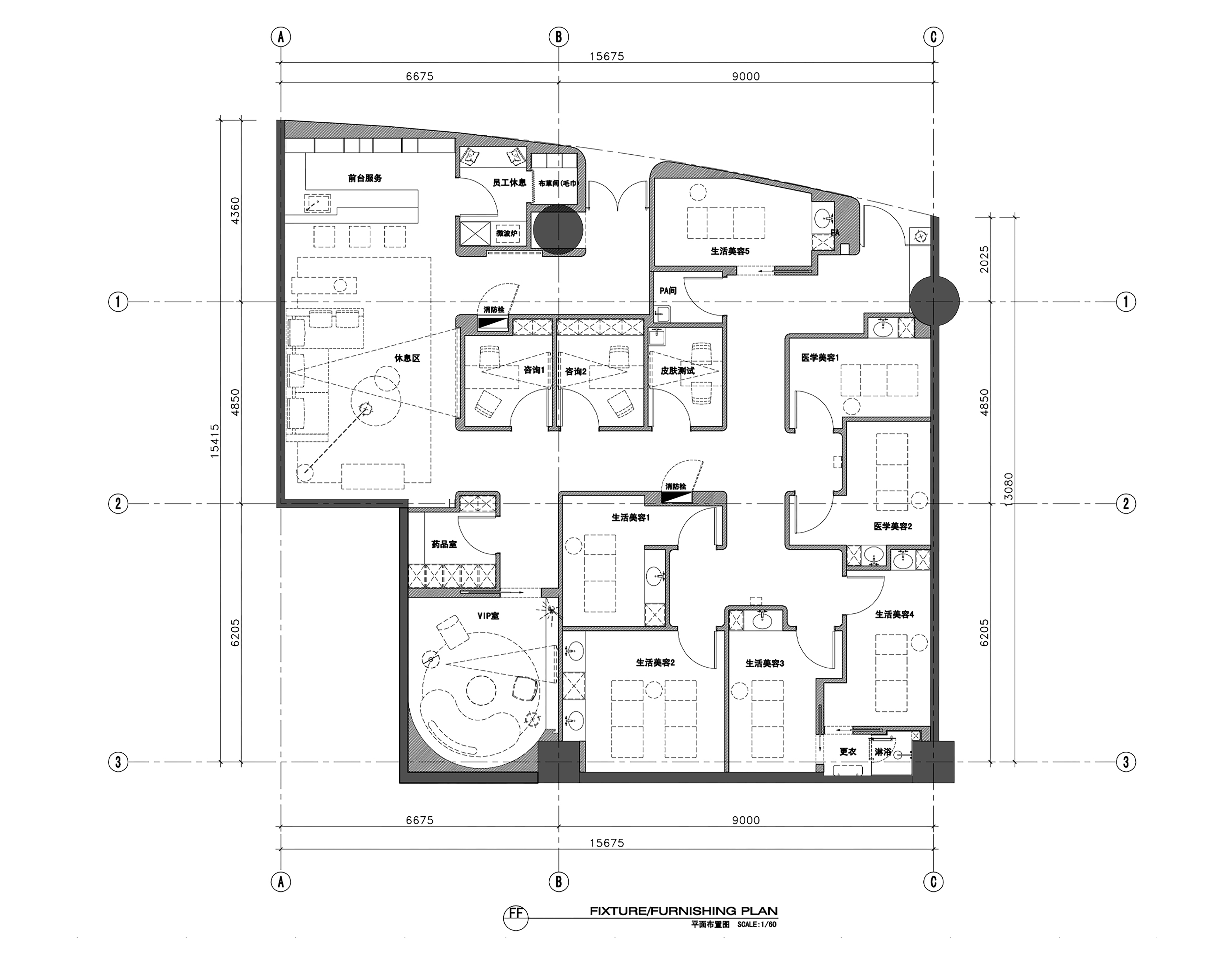
- 项目类型:零售
- 项目地点:无锡市
- 建筑面积:220.0000㎡
- 项目造价:90.0000万元
- 主案设计师: 苏阳
- 参与设计师:王海
- 竣工时间:2019-07-15
- 设计机构:南筑空间设计事务所
-
项目定位:一切设计景语,皆为情语
情感是最高级、最饱满的空间沟通与交流语言,生于形式,却不被形式拘泥。
设计以人为本,设计同时引导人的行动,情感的指引则是其中的主线。
空间的流动性串联起实用功能的自然分割,和起承转合的行走视角。情绪则内涵于每一个空间对材质、对色彩,以及对艺术性的考究。但设计的表达手法,尽量以最简洁的语言隐藏锋芒,不争不抢如水的润物无声,自然流淌出最舒适的情绪。
而艺术则是感情的表露,使用一种人人都能理解的语言,于外在上助力景语的层次,于内在上去深化空间的情感。
温和而柔软,简洁而干练,优 -
空间意境:每个空间在风格和立意上相互承接,在功能上又呈现出独立而幽静的隐秘,形式上的深沉质感,及情绪上的信任感,达成事半功倍的调和。
在最简约的撞色上,金属是增持,于设计动向的流动上,于观感和体验上,都是视能及,而意无穷的精致时尚气场。
以空间的功用属性为底层逻辑,以服务思维为设计思维,以人文情绪感悟情绪,便衍生出另一种指引与聚焦形式的表达,转角的隐秘,及曲线的弧度,定性了第一眼的观感。
极其简约的基调和色调一以贯之,营造出充满张力的气场。而更富个性的艺术品位,则而交由精致的细节来传达。
大面积留白与弧度是 -
空间布局:现代感十足的阵列,是时尚的手笔,跳脱出整体空间的秩序感,打破与相融并举,让空间更加灵动和富有节奏感。
寥寥数笔,一望而知,尽现神韵。元素上的去繁就简,是设计表达上的加分,正如空间所要传递的高端和艺术的核心调性,简单而率性。
-
设计选材:材质与设计符号的对立,对话,恰恰是在艺术感与亲和力上寻找一种微妙的平衡点,能够碰撞出花火,能够共生出和煦。
木的原色与天然肌理,与硬核的时尚肌理相遇,起承转合的柔美弧度,在碰撞中体会美与和谐。
设计应是实用性与艺术性的唱和。以材料的甄选,色块的隐喻,营造出身体和情绪都得以沉浸其中的静谧意向,又轻逸出幽芳与清雅的尊贵感。
-
用户体验:业主的客户惊讶于220平方的空间做出了远大于实际面积的空间感受,来此预约的客户均感受到了轻松的氛围,走廊比例的细节调整使空间呈现出张弛有度的节奏变化,动线合理,氛围恰当是业主用的最多的两句话

