尔雅——梅亚奇南通展厅



- 项目类型:展示
- 项目地点:南通市
- 建筑面积:400.0000㎡
- 项目造价:300.0000万元
- 竣工时间:2019-10-01
- 设计机构:梵池设计
-
项目定位:1.新展厅的设计强调了梅亚奇的产品核心,即多材质应用的充分发挥,在这里,梅亚奇品牌的上百种材质元素被重新组合与定义,它们在空间中相遇、碰撞,完成了不可思议的化学反应。这一全新模式的体验中心展现了多材质收集整合与应用的更多可能。
2.南通有相当密度的博物馆,是一个充满文化底蕴的城市,而且东西文化很早便在这里交融。所以我们希望借助梅亚奇的材质元素,让空间展现出轻盈的东方之韵。设计师结合自然、极简主义设计以及东方传统文化的特点,采用无比凝练的当代设计语言,组织出这样一个东西方设计结合的展示空间,谨慎、克制,简 -
空间意境:1.我们将梅亚奇“苦寒是梅,谦逊为亚,创新而奇”的精神内涵植入空间,并融合梵池的东方情怀,赋予了空间独特的性格魅力。
2.作为一个商业性的展示空间,设计上首要考量的是能够引起人们的好奇并吸引他们来参观,因此我们将生活中的感受和状态融入到设计中,让访客可以在这样的环境中体验到产品所带来的生活上的享受。
3.空间中,不仅有来自西方的现代极简主义设计美学,更蕴含着专属于东方的雅致、内敛、简朴与悠然。 -
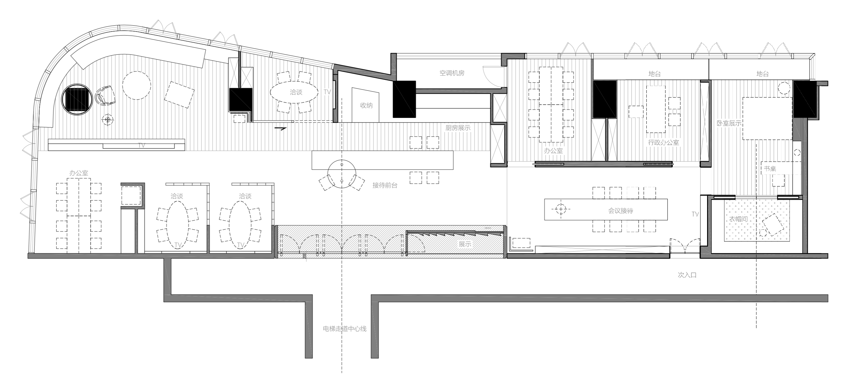
空间布局:我们在根据品牌产品种类做成各个独立模块的同时又保留了空间上的连贯性,增强了空间之间的呼应,让空间感受上更为通透、流畅与和谐。
-
设计选材:展厅悉数呈现了上百种产品元素和数十种新材质。木作、岩板、玻璃、大理石、不锈钢......在光影的交错中释放出多重语义,而绢、丝、麻则在空间中时隐时现,使得空间的猛烈气势得到缓冲与消解。
-
用户体验:梅亚奇方与用户的评价都极高,甲方更希望将此展厅进行复制,成为以后梅亚奇的标准展厅。
无论是王安石笔下“晓寒云雾连穷屿,春暖鱼龙化蛰雷”的美景,还是胡长龄记忆中“ 行过石桥西畔去,丛篁深覆读书堂”的情境,南通自古便意蕴着文化与艺术的基因。
近代以来,南通更因为张謇的推动成为东西方文化交融的象征性地标之一。梵池此次主导设计的梅亚奇南通展厅项目,位于南通市中心的圆融购物中心13层,全新模式的体验中心展现了多材质收集整合与应用的更多可能。
2018年,梵池与梅亚奇首次合作,将梅亚奇南京展厅进行了再造。展示空间在梵池的设计下焕然一新,设计师将梅亚奇“苦寒是梅,谦逊为亚,创新而奇”的精神内涵植入空间,并融合梵池的东方情怀,赋予了空间独特的性格魅力。
在这里,梅亚奇品牌的上百种材质元素被重新组合与定义,它们在空间中相遇、碰撞,完成了不可思议的化学反应。
梅亚奇南通展厅项目是梵池与梅亚奇一年内的第二次合作,在继承首次合作中彼此认同的设计观的同时,新展厅的设计进一步强调了梅亚奇的产品核心,即多材质应用的充分发挥。
“将商业转化放在首位,通过设计为产品赋能”,一直都是梵池在商业空间设计中的不二信条。
展厅悉数呈现了梅亚奇的上百种产品元素和数十种新材质。木作、岩板、玻璃、大理石、不锈钢......在光影的交错中释放出多重语义,而绢、丝、麻则在空间中时隐时现,使得空间的猛烈气势在此得到缓冲与消解。
“作为一个商业性的展示空间,设计上首要考量的是能够引起人们的好奇并吸引他们来参观,因此我们将生活中的感受和状态融入到设计中,让访客可以在这样的环境中体验到产品所带来的生活上的享受。其次,我们在根据品牌产品种类做成各个独立模块的同时又保留了空间上的连贯性,增强了空间之间的呼应,让空间感受上更为通透、流畅与和谐。”设计师如是说。
新展厅面积约400平,这里不仅有来自西方的现代极简主义设计美学,更蕴含着专属于东方的雅致、内敛、简朴与悠然。
“南通有相当密度的博物馆,是一个充满文化底蕴的城市,而且东西文化很早便在这里交融。所以我们希望借助梅亚奇的材质元素,让空间展现出轻盈的东方之韵。”
设计师结合自然、极简主义设计以及东方传统文化的特点,采用无比凝练的当代设计语言,组织出这样一个东西方设计结合的展示空间,谨慎、克制,简而不乏。
大量的东方元素被挪用到现代设计语境中。在这样的融合下,如果只是做机械的减法,就会陷入另一种极端装饰的泥沼。
此时,“凝练”的极简主义让它重新获得更纯净的审美体验,典雅的东方风韵更让它沾染上些许俊逸之气和浓浓雅正之风。
于是,果断利落的收口,明而不艳的色彩,刚柔相生的材质组合,不需要再多的矫饰便清晰诠释了“凌厉”二字。
同时,这个内敛含蓄的空间也因一些更直观的中式意趣而变得生动:真丝面料上勾着的工笔梅枝,在此时此地便摆脱了俗套,散发出超于言外的气质。
其实,无论是“极简主义”还是“东方美学”,都不应再拘泥于形式的穷尽和意象的堆砌。梵池植根于东方精神的土壤,竭力演绎空间的纯粹,可以说,这样一种审美上的自省和洗练。
平面图

