美好生活———友城名居


作品说明
- 项目类型:住宅公寓
- 项目地点:天津市
- 建筑面积:207.0000㎡
- 项目造价:110.0000万元
- 参与设计师:孙跃军 王小川
- 竣工时间:2018-10-10
- 设计机构:逸舍空间设计事务所
-
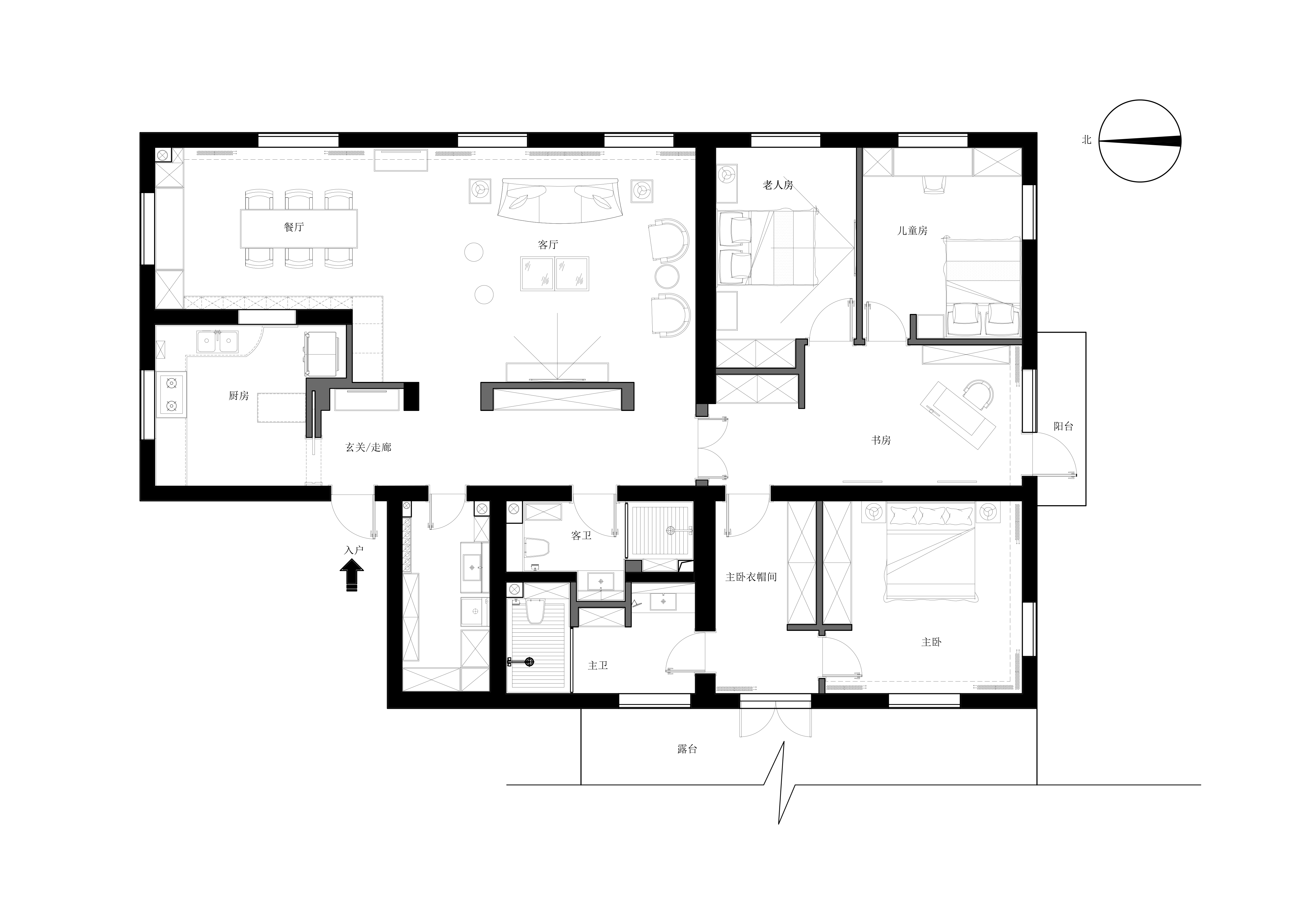
项目定位:本案坐落于喧杂的天津市中心区。
属于典型的深藏型住宅。而且是一幢老式的砖混结构。这一点对于我们后期的深化方案还是有一部分的影响。
操作本案的初衷即是居住与视觉的在升级。满足一家人其乐融融的生活需求。 -
空间意境:传统的美式风格由于地缘性的限制,其实不是很适合中国甚至天津地区。尤其是随着现代爆炸性文化的充斥,加上个人意识的觉醒。对于空间的使用及定义,愈发的趋向个人主义。不在受限于形式或者风格。对于住宅空间的机能使用也变得相对多元。所以我们在操作本案的过程中会适量的做些形式上的增减。其实更多的属于一个去风格化的过程。
并且本案属于私宅设计,我们还要更多的衡量家庭成员之间共性与个性的关系,求同存异。 -
空间布局:原始户型在布局上其实有很多的漏洞。
比如入门的更衣,鞋帽归置。个空间的相对位置也是不太协调。走廊冗长,采光要差等等。
-
设计选材:其实借用现代风格上少即是多的原则来讲,针对业主的社会定位,我们在设计阶段研究的是一个减法。
比如线型的精简,整体设计去造型化,尽量避免去做无效的视觉设计。
综合采用高质量的墙面涂料,实木地板作为选材基础。
形成能够延长审美疲劳的视觉效果,控制施工及整体材料成本的增加,达到设计的目的 -
用户体验:截止目前为止,用户评价还是相当满意的,对于使用效果及评价,我们所秉行的其实有个原则,即用户后期会不会与我们再沟通,会不会邀请我们回访。
如果以此为标准,那我们的设计就是成功的有意义的。这应该同时也是我们一直来所诉求的价值。

