和润名门世家营销中心“泉城荷韵”


- 项目类型:住宅公寓
- 项目地点:济南市
- 建筑面积:400.0000㎡
- 项目造价:600.0000万元
- 竣工时间:2019-07-17
- 设计机构:香港IN HOUSE装饰设计有限公司
-
项目定位:名门世家位于山东省济南市西部与西客站片区相邻,是唯一全山景原生态纯别墅社区。地处腊山湿地公园内、紧邻腊山公园,位于原生态的大自然包围之中。是欧式别墅建筑文明与中国传统景观文化的一次完美邂逅。
-
空间意境:设计师将有着“泉城”之称的济南特色文化和售楼处相结合,意在打造空间,融入东方文化的符号,承袭文脉将历史情怀与特有的东方审美融汇成独特的东方气质。
-
空间布局:以炭墨色和浅灰色为主体色调,创造出典雅稳重的空间氛围。
-
设计选材:整个空间和传统的形式有着明显的区别,这里没有浓郁的商业氛围,以雅致的空间色调和诗意的艺术设计语言。
-
用户体验:让人感觉像置身于现代都市中的山水景色之中。
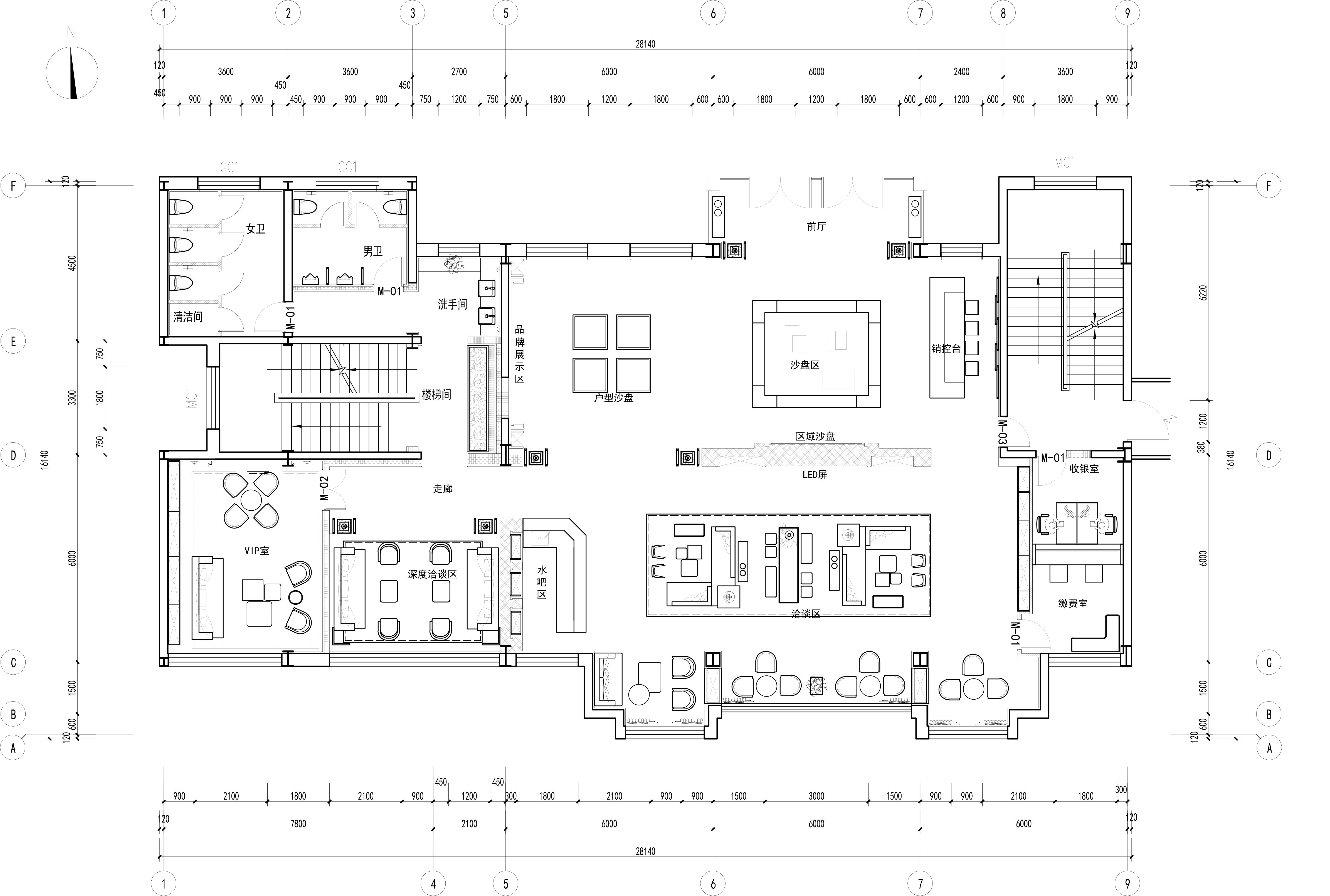
图1入口处:诗句 “一城山色半城湖”正是形容的古城济南。入口前厅的软装将湖面的水纹波光粼粼,偶尔的一粒石块便能激起千层波浪将雨滴水碰撞湖面上的的瞬间用雕塑的形式固定下來,一动一静,对比出暂时性永久,物质性的精神。
图2沙盘区:推开门,映入眼帘的是整个项目的沙盘区,沙盘区的整体设计贯穿山型元素。
图3沙盘区:灯饰由近千颗水晶珠制成。一颗颗水晶有秩序的走势与山型的木格栅相呼应,点缀了整个沙盘区域。
图4服务台
图5营销中心过道
图6水吧区:“泉源上奋,水涌若轮”,“声若隐雷”,是“泉城”——济南市的一大奇景,被称为“趵突腾空”。
图7水吧区:泉水大碗茶是济南独有的一种茶文化,每碗均用清澈的天然泉水沏泡,所用茶叶是深受老济南人喜爱的茉莉花茶,所用茶碗为青花仿古瓷碗,沏出的茶汤红润透亮,香味扑鼻。
图8水吧区:运用大碗茶的文化,营造了一个悠闲茶吧。
图9初步洽谈区:以米白色和纯白色提升空间亮度,优雅的米白色沙发于空间演绎舒适惬意,是一抹经典之色。
图10初步洽谈区:洽谈桌上都摆放了香薰炉,一炉一烟,享受静怡生活,沉浸于新中式美学生活之中。
图11初步洽谈区细节
图12洽谈区:挥洒墨如意,苍毫劲健欢。
图13洽谈区:长条桌上摆放了文房四宝、茶具,品一杯茗茶,写几手毛笔字,抒发心中的豪迈。
图14展示区:展示柜内放置了富有传统工艺的陶罐、惟妙惟肖的工艺品、赏心悦目的花艺,用优雅点缀空间。
图15展示区:择花如友,取器比邻,朝暮一瓶花,禅意思幽幽。
图16展示区:陶罐可以很强烈地感受传统的历史痕迹与浑厚的文化蕴底,同时又摒弃了过于复杂的肌理和修饰,简化了线条。
图17深度洽谈区:济南因境内泉水众多,拥有“七十二名泉”,被称为“泉城”,素有“四面荷花三面柳,一城山色半城湖”的美誉。
图18深度洽谈区:雕塑的形式取泉水流动的波纹形状赋予整个空间的灵动性。
图19深度洽谈区:一侧是巨幅大明湖畔荷韵山水画,烟云为笔墨,清风徐自来,日出而林开,云归而心静,做隐居在都市的浪漫客,着一花半叶,便得气定神闲。另一侧的毛笔字与之呼应,营造出诗意般的泉城空间。
图20VIP接待室:柜子里的饰品有节奏的给人营造了非凡的视觉体验,将空间的清肃高雅的气韵瞬间展开,增添想象与趣味的艺术语言
图21VIP接待室茶歇:古有二枭雄煮酒论英雄,今时与友茶道谈天说地
图22VIP接待室细节:得天独厚的自然资源给了项目一个设计的支点,让自然,人文,历史与设计交融一体,打造了一处赋有秩序,诗意和精神的自然文化空间
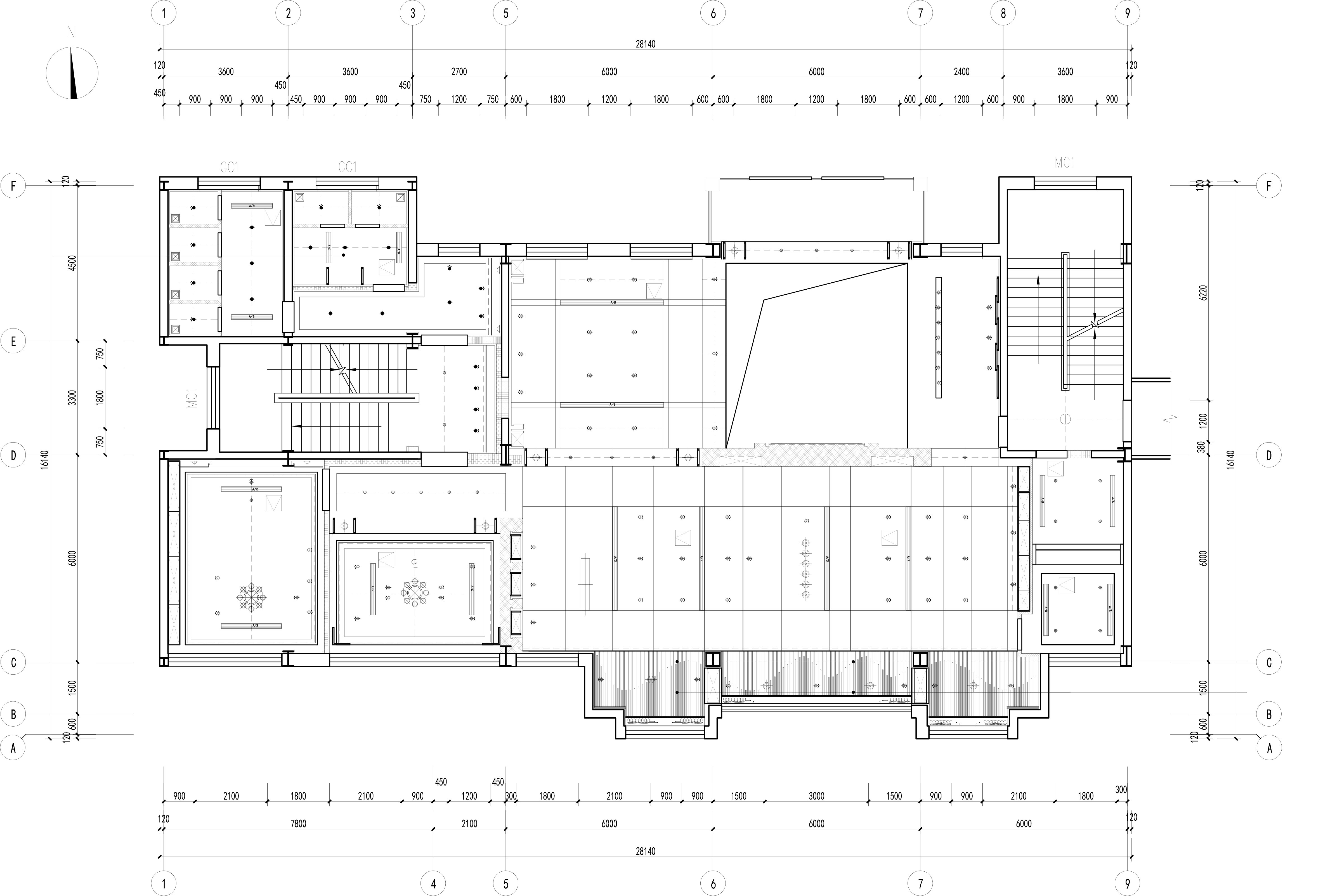
平面布局图
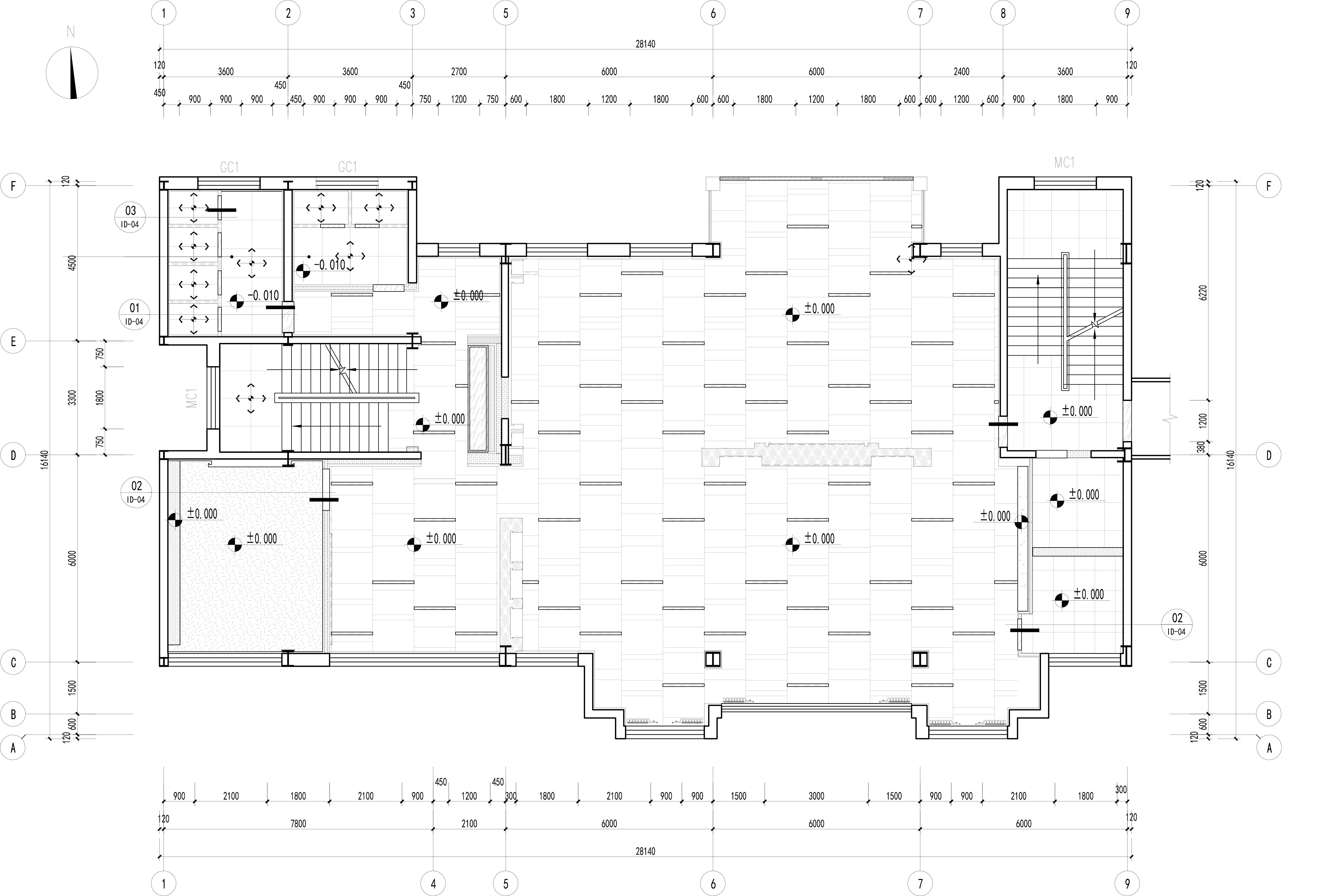
综合天花平面图
地面铺装平面图

