与闻珠宝



作品说明
- 项目类型:展示
- 项目地点:成都市
- 建筑面积:270.0000㎡
- 项目造价:200.0000万元
- 参与设计师:熊天宇,张筱锴
- 竣工时间:2019-04-20
- 设计机构:朴开十向
-
项目定位:SEEING与闻珠宝是一家集合众多优秀珠宝设计师作品的珠宝店,我们认为珠宝是时间的沉淀,是故事的见证者。比起展现珠宝的奢华,更重要的是展现每件作品背后的故事,于是希望在满足顾客审美需求的同时,塑造一个能承载故事的空间。
-
空间意境:珠宝是容器,装着矢志不渝的故事,空间亦是容器,承载并引导着故事的发生。我们建了一座“教堂”,希望让故事与空间产生对话,并帮助顾客用珠宝定格故事的形状。
-
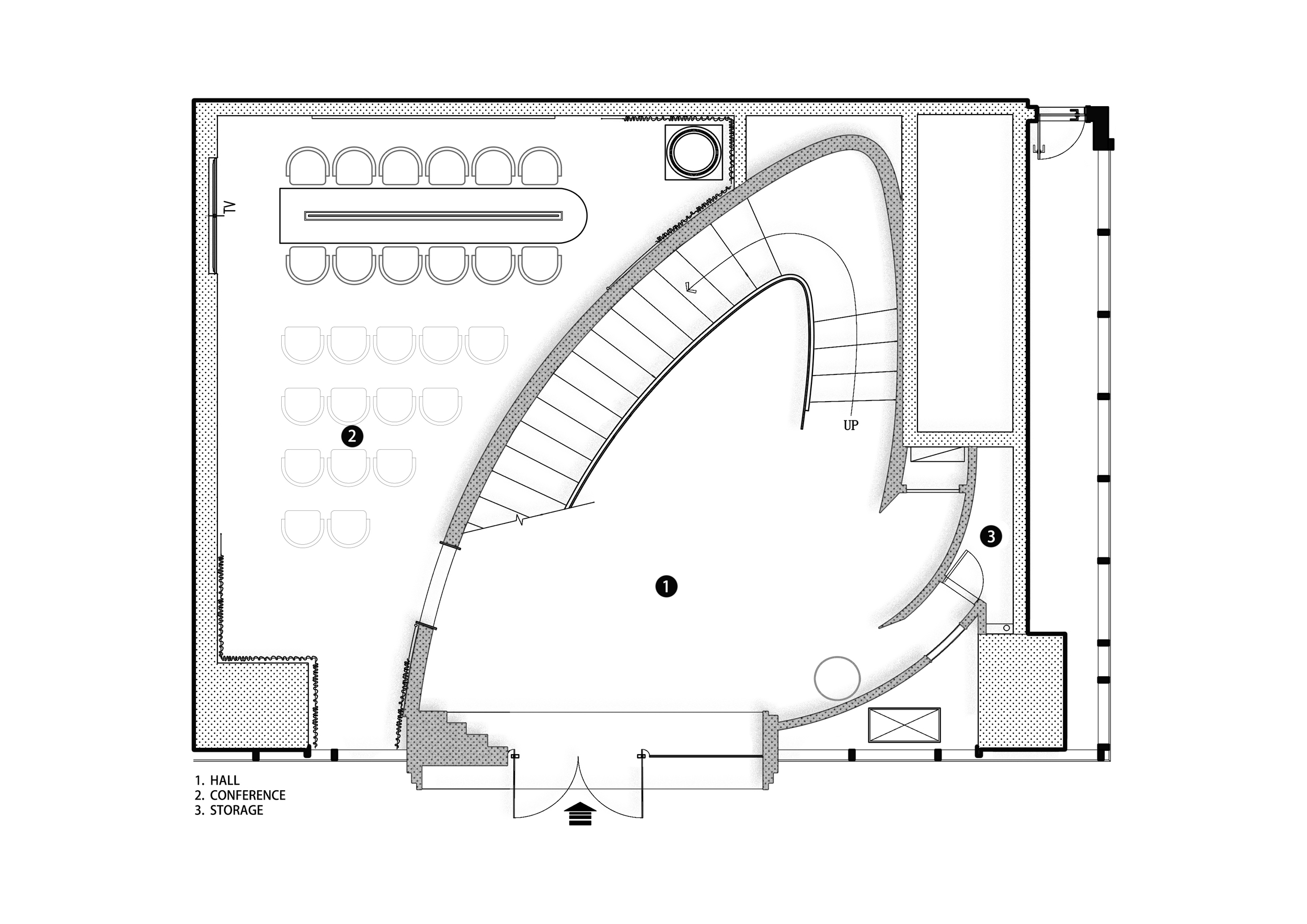
空间布局:为了更好的呈现珠宝背后的故事,我们将空间整体分为两层。一层为大厅及影音室。大厅可看作缓冲区,隔离外界干扰,引导顾客抛除杂念沉浸于空间中。二层空间形态灵感则来自于穹顶教堂,拱形造型吊顶在赋予空间宗教仪式感的同时增加视觉层高。
-
设计选材:一层空间悬挑的混凝土楼梯及来自天花的柔和顶光形成了独特的肃穆感,能很快的向使用者传递空间情绪;二层空间大面积的胡桃木格栅及长绒地毯,构筑了利于交流的舒适环境,引导顾客参与到故事中。
-
用户体验:空间氛围与品牌定位相符。方案完成度很高,超出心理预期。

