-
项目定位:力合阳光城·云谷样板房择址佛山顺德区,三套户型由Studio HBA | 赫室倾力打造室内设计,以小户型、多变空间为核心,重新思考和定义了城市的生活方式。
-
空间意境:55 m² 户型
我们用一种优雅中蕴含肆意洒脱的年轻态度、纯净且充满内涵、低调又富有个性的角度,对室内进行精心的规划并最大限度地去利用空间,来营造一种富有张力且现代时尚的栖居理想地。
以木材的柔和与金属的硬朗为主要材质,以减少材质使用的方式对小空间里做加法,以色彩统一的方式来增加空间感。利用许多的藏光、间接光源来打造视觉的丰盈感,垂落而下的吊灯让光线得以自由扩散至任何角落,将餐台部分的挑空处理让上下层空间形成对话与互动,将空间变得更有层次且有趣,整体显得更为开阔大气。 -
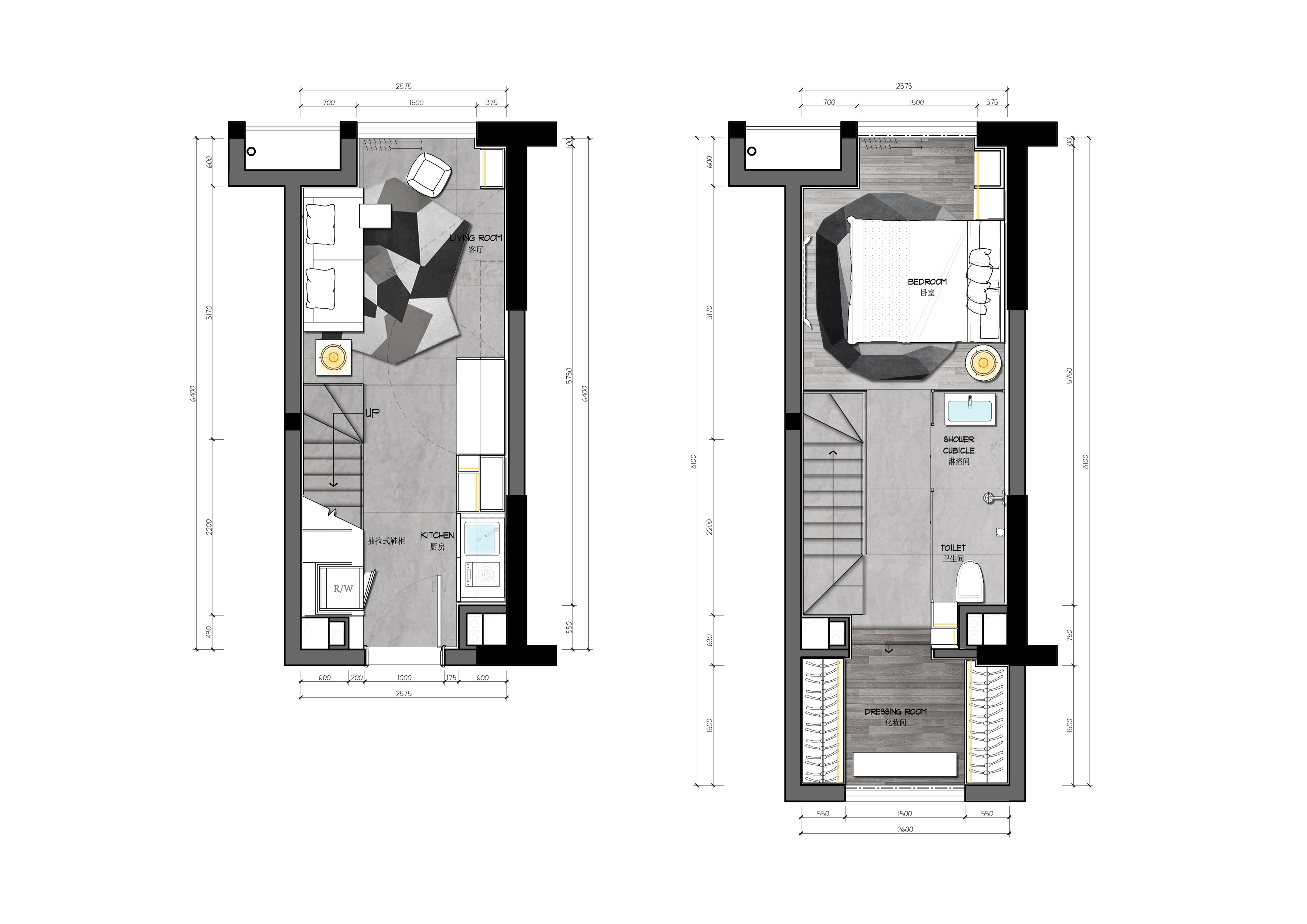
空间布局:40 m² 户型
透过镜与光的无限反射与融合,将空间打散再重组。在空间功能的多变和重合下,使人活动其中更加自由。大面墙身的发光亚克力,透过天花的水光潋滟波纹板不锈钢,在光与影变换之间交融。光影点点,涟漪般波动整个空间,捕捉着灵活变动的空间余光,诠释着虚幻的幻境空间感。各空间界限的模糊,仿佛被无限光效折叠,配以全屋的光效脚线,利用光的反射达到视线的廷伸,增加空间的无限感,令我们漫游徘徊在这个万花筒一般的梦境空间里。 -
设计选材:73 m² 户型
为凸显都市生活个性,结合现代艺术元素,以石材-魅力为灵感,打造出一个时尚舒适的名仕居所。整体以温暖的大地色系为主,低调柔和,温馨而又有力量。
挑空两层设计的餐厅,增加餐厅空间的纵深感,既满足了空间需求,又使上下两层之间构成交流互动空间。楼梯以灰色台阶与皮质金属扶手相搭,勾勒出精致的线条,引导人们拾级而上来到二层空间。二层利用玻璃趟门不同的开启方式,使得卧室与公共过道形成既独立又共享,两者并存的空间,在保证互不干扰的前提下,同时满足中国人对于家庭时间、对于亲子陪伴的需求。主卧有别 -
用户体验:在不同空间中创造一种“探索感”,将艺术融入空间、时尚与功能结合,整体保持了现代极简风格,同时最大程度释放空间体量,将空间利用最大化,融入功能,简而不减。
A户型-二层通道1
A户型-二层通道2
A户型-客厅动图1
A户型-入口处3
A户型-卧室1
A户型-卧室2
A户型-衣帽间1
A户型-客厅1
A户型-客厅2
A户型-客厅3
A户型-客厅4
A户型-入口处1
A户型-客厅动图2
A户型-入口处2
B户型-餐厅&厨房1
B户型-餐厅&厨房2
B户型-餐厅1
B户型-厨房
B户型-卫生间1
B户型-卫生间2
B户型-卧室1
B户型-卧室2
B户型-卧室3
B户型-卧室4
B户型-卧室5
B户型-卧室6
B户型-卧室7
B户型-卧室8
B户型-卧室动图
C户型-餐厅织物
C户型-餐厅织物1
C户型-二层走廊
C户型-客厅2
C户型-客厅3
C户型-客厅4
C户型-入口处1
C户型-卫生间1
C户型-卧室2
C户型-卧室3
C户型-卧室4
C户型-二层走廊2
C户型-客厅1
C户型-书房1
C户型-卧室1
A户型平面图
A户型情境模式平面图
B户型
C户型
0
0

认证 · 让您身份增值
2273