绿地·云尚公馆
3494
作品说明
- 项目类型:酒店
- 项目地点:南京市
- 建筑面积:47000.0000㎡
- 项目造价:7050.0000万元
- 主案设计师: 张长建
- 竣工时间:2019-10-12
-
项目定位:共享酒店式公寓Co-Living、目前正在成为一种趋势在全球兴起,在美国,WeWork Cos.等众多初创公司都推出了共享公寓业务,一些传统房地产商也纷纷涌进这一领域。全球最大的共享公寓Collective Old Oak已在英国趋向成熟化。Co-Living是介于学生宿舍和酒店之间共享式公寓,除了卧室这一需要隐私的空间之外,包括起居室、厨房以及浴室等功能空间均可共享。
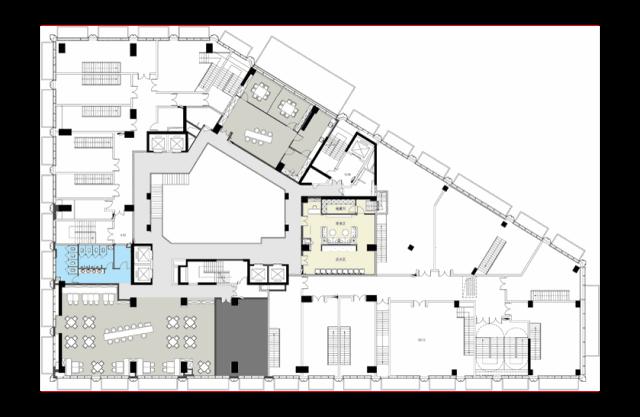
绿地·云尚公馆位于南京市雨花台区玉兰路,毗邻南京南站。是南京首个引入了“零距离社区共享空间” 服务理念的共享空间概念公寓,总建筑面积4 -
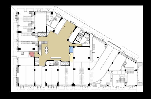
空间意境:采用新颖的垂直城市客厅设计,以“室内空间共享”的概念实现生态共享,创新设计移动办公、电子竞技、休闲娱乐、健身中心等,为公寓的住户提供更多的交流场所。
-
空间布局:简约明亮的大堂空间,一个能够传达家庭感觉的地方。同时能让住户感觉自己正走向一个充满无限可能性的世界。
【移动办公】
头脑风暴、团队,积极,IDEA,激励
走出私密空间,整齐的办公区域,单人及多人的办公工具,舒适的洽谈空间为你呈现,在这里你不仅可以享受随时随刻办公的便捷,还可以与年轻的思想邂逅。 -
设计选材:【休闲吧】
绿色,户外,亲近自然,氧吧
针对公寓居住人群的需求,打造集中休闲中心。方便会客、休息、互动交流,或闲暇时光再来一场荧幕电影,估计是再好不过的周末时光。
远足,旅行,度假,生活态度
惬意的港湾,时光驻足,在这里你可以找到志同道合的朋友,来一场曼妙的旅行,遇见更精彩的世界,也遇见了更美好的自己。
【咖啡吧】
国际、浪漫、时尚
在优雅的音乐声中,似乎让自己忘却了一切烦劳,把极致低调的品位融入慢时光里,在这里,用心享受,用美好的一切唤醒沉醉的灵魂,绽放生命的美好 -
用户体验:【健身区】
健康、有氧、快乐,运动,心跳
运动是现代生活中必不可少的一部分,忙碌了一天,待白日的尘埃落定,收拾了疲惫,来到这里,寻找属于自己的健康生活方式
拳击、健康、有氧、快乐,运动,心跳
“生命在于运动”,云尚十大中庭为你提供跑步机、动感单车、踏步机等专业健身设施满足你的身材追求,在这里,尽情燃烧卡路里。
0
0

认证 · 让您身份增值