福州院子
20601
作品说明
- 项目类型:住宅公寓
- 项目地点:福州市
- 建筑面积:150.0000㎡
- 项目造价:0.0000万元
- 主案设计师: 王跃
- 竣工时间:2019-10-12
- 设计机构:鸿大印象设计事务所
-
项目定位:本案例为四口之家,父母带两个孩子,设计策划的时候更加注重生活舒适性和包容性,男主人从事律师职业,女主人公从事教师职业,都属于比较稳重的职业,对家的定位要求传统与现代结合,让家具有中国传统文化的底蕴
-
空间意境:本案例为新中式风格,在传统中式风格的基础上融入当下简约的设计手法。深色的木饰面和家具是整个空间更加沉稳,浅米色墙面艺术漆让空间更加明亮,让沉稳的空间中多了一丝温度,空间中采用简洁的设计手法,摈弃传统中式的繁杂,使空间干净简洁更具有家的感觉
-
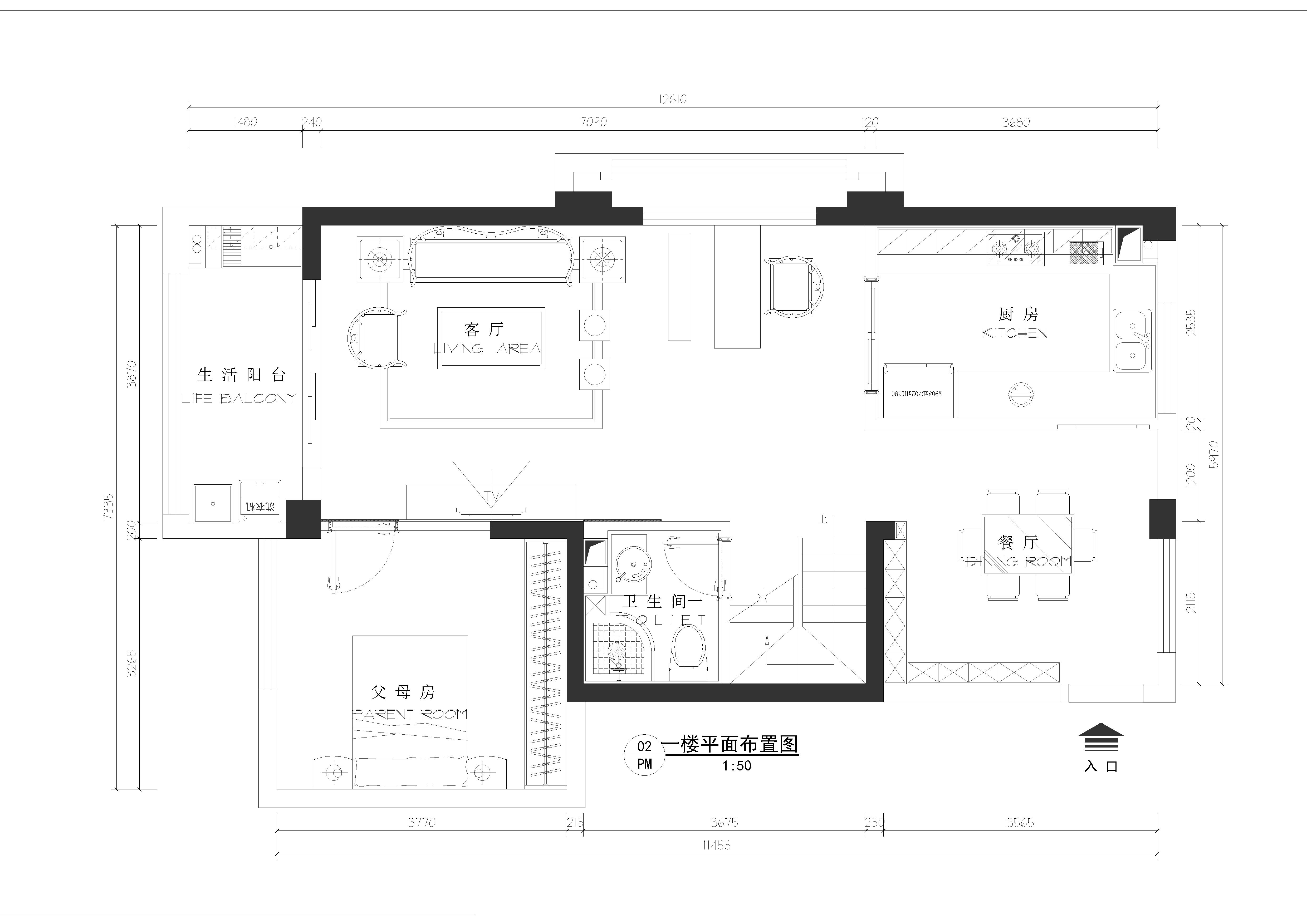
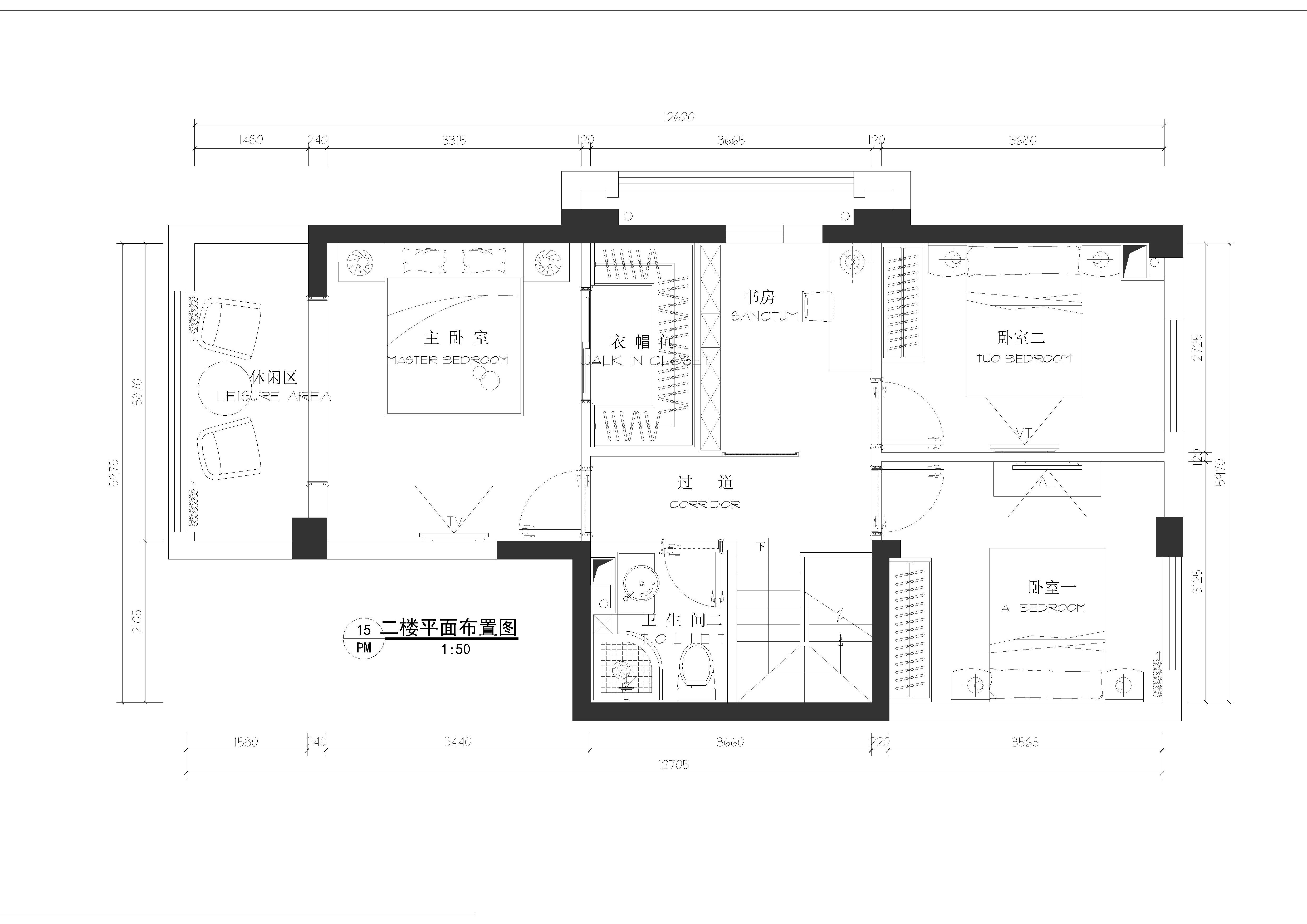
空间布局:本案例户型结构上为复式,动静分区比较明确,一楼主要是客餐厅和茶艺区,为家人互动空间,二楼为卧室和书房,主要是家人休息和学习空间动静分离明确空间划分恰当,保证家人互动的同时也强调了空间的私密性
-
设计选材:本案在选材方面,环保艺术漆,科技木,节能灯等的运用,低碳环保的同时也比较经济实惠
-
用户体验:本案投入使用后视觉冲击力强,空间沉稳大气,而且温馨舒适,空间感比较好,用户评价也非常高,是一个理想的居住空间
0
0

认证 · 让您身份增值